Kontakt
Nr oferty: 44508/3877/ODS

Dom Kochlice z prywatnym lasem

Kochlice zobacz na mapie

1 030 000 PLN

Szczegóły oferty

Cena:
1 030 000,00 zł
Powierzchnia:
239,00 m2
Cena za m2:
4 309,62 zł
Powierzchnia użytkowa:
131,34 m2
Powierzchnia działki:
1 500,00 m2
Rok budowy:
2009
Liczba pięter:
2
Liczba pokoi:
5
Stan budynku:
Bardzo dobry
Typ domu:
Wolnostojący
Ciepła woda:
tak
Id oferty:
44508/3877/ODS

Opis

NA SPRZEDAŻ dom wolnostojący o powierzchni całkowitej 239 m2 (pow. użytkowa 131,34 m2) położony na 15 arowej działce z prywatnym lasem i zagospodarowanym ogrodem. Nieruchomość położona jest na nowoczesnym osiedlu domów jednorodzinnych otoczonych lasami z bardzo dobrym dojazdem do Legnicy ok. 12 km i Lubina 13 km. Do węzła drogowego S3 Kochlice ok. 2 km. 
Dom wybudowany w 2009 roku jest w dobrym stanie technicznym i wymaga jedynie odświeżenia według uznania nowego właściciela. Bardzo ładnie zagospodarowany ogród daje możliwość wypoczynku w otoczeniu przyrody, dojazd drogą z kostki brukowej, z osiedla można udać się bezpośrednio na ścieżki leśne i trasy rowerowe.
Funkcjonalny projekt sprawia, że jest to dom dla 4 - 5 osobowej rodziny, gwarantuje funkcjonalność, a jego położenie możliwość wypoczynku i aktywnego spędzania wolnego czasu.

- ogrzewanie pompa ciepła gruntowa
- rekuperacja
- podjazd kostka granitowa
- otoczony roślinnością taras gwarantuje pełna prywatność i ciszę
- oczko wodne z fontanną
- na dachu solary

Budynek składa się z pomieszczeń:

PARTER 91,86 m2
- wiatrołap 4,77 m2
- hall 9,95 m2
- kuchnia 12,21 m2
- spiżarnia 1,81 m2
- jadalnia 6,66 m2
- pokój dzienny 16,13 m2
- gabinet 14,43 m2
- łazienka 3,53 m2
- kotłownia 4,07 m2
- garaż 18,3 m2

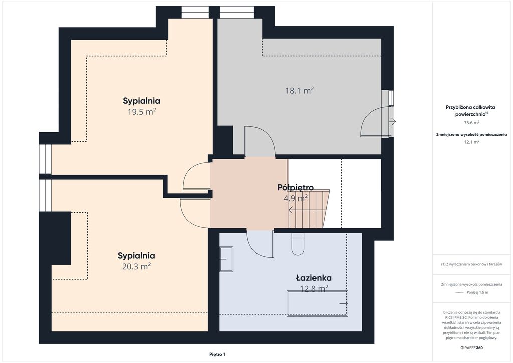
1 PIĘTRO 57,78 m2
- hall 4,72 m2
- sypialnia 14,77 m2
- sypialnia 16,64 m2
- sypialnia 15,39 m2
- łazienka 6,26 m2

Cena 1 030 000 złotych

Link do filmu: https://youtu.be/rDLjfSyvv2g?feature=shared

Po szczegółowe informacje zapraszamy na prezentację i do kontaktu.



Niniejsze ogłoszenie nie stanowi oferty w rozumieniu Kodeksu Cywilnego, lecz ma charakter informacyjny.

Przedstawione wizualizacje i grafiki mają charakter wyłącznie poglądowy i stanowią wyłącznie materiał pomocniczy, ułatwiający zorientowanie się w ogólnym wyglądzie oferowanej nieruchomości.

Niniejsze ogłoszenie wraz z jego elementami jest własnością Północ Nieruchomości Sp z o.o. lub podmiotu współpracującego. Wszelkie prawa zastrzeżone. Kopiowanie, rozpowszechnianie oraz korzystanie z niniejszych materiałów w jakikolwiek inny sposób wykraczający poza dozwolony użytek określony przepisami ustawy z 4 lutego 1994 r. o prawie autorskim i prawach pokrewnych (Dz. U. 1994, nr 24 poz. 83 z późn. zm.) bez pisemnej zgody Północ Nieruchomości Sp z o.o. lub podmiotów współpracujących jest zabronione i może stanowić podstawę odpowiedzialności cywilnej oraz karnej.

Niniejsze materiały stanowią tajemnicę przedsiębiorstwa PÓŁNOC NIERUCHOMOŚCI Sp. z o.o. w rozumieniu ustawy z dnia 16 kwietnia 1993 r. o zwalczaniu nieuczciwej konkurencji (Dz. U. z 2003 r., Nr 153, poz. 1503 z późn. zm.).

Mapa

Zapytaj o tę ofertę

Lub zadzwoń