Kontakt
Nr oferty: 2170/3877/ODW

NA WYNAJEM NA KRÓTSZY CZAS

Meszna, ul. Orzechowa zobacz na mapie

4 500 PLN

Szczegóły oferty

Cena:
4 500,00 zł
Powierzchnia:
221,00 m2
Cena za m2:
20,36 zł
Powierzchnia użytkowa:
155,00 m2
Powierzchnia działki:
1 950,00 m2
Rok budowy:
2008
Liczba pięter:
1
Liczba pokoi:
4
Stan budynku:
Bardzo dobry
Typ domu:
Wolnostojący
Ciepła woda:
tak
Id oferty:
2170/3877/ODW

Opis

Wynejmę dom w Mesznej spokój, przestrzeń i natura

Parterowy z zaadaptowanym poddaszem 

Jeśli marzysz o domu w zielonej, spokojnej okolicy – z pięknym ogrodem, dużą działką i szybkim dojazdem do Bielska i Szczyrku – ten dom w Mesznej może być dokładnie tym, czego szukasz.

 Lokalizacja: Meszna, ul. Orzechowa
Powierzchnia całkowita: 221 m²
Powierzchnia użytkowa: 155 m²
Powierzchnia działki: 1950 m²
 Rok budowy: 2008

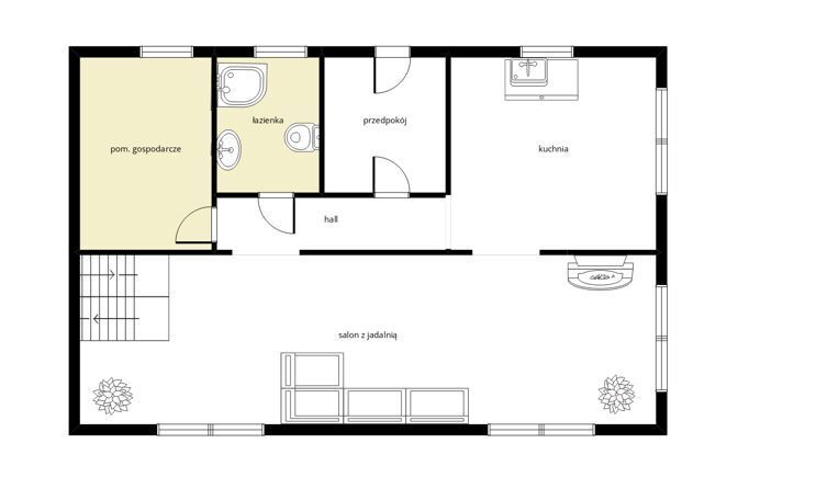
Układ pomieszczeń jest bardzo funkcjonalny:

 Parter:
– przestronny salon z kominkiem
– kuchnia z jadalnią
– łazienka z prysznicem
– kotłownia i pomieszczenie gospodarcze

Piętro:
– trzy sypialnie
– duża łazienka z wanną
– garderoba lub dodatkowy pokój

Okna PCV na parterze (z roletami elektrycznymi), a na piętrze drewniane, dwuszybowe okna dachowe.

 Media: wszystkie (gaz, prąd, woda, kanalizacja).
Dom ogrzewany gazem – koszt ogrzewania w sezonie zimowym to ok. 600–700 zł miesięcznie, z możliwością dogrzania kominkiem.

 Działka:
Przepiękna, duża (1950 m²) z dorodnym starodrzewiem – świerkami, sosnami i jodłami, które tworzą naturalną, zieloną osłonę i gwarantują prywatność.
Na terenie posesji znajduje się duża wiata na samochód oraz pomieszczenie gospodarcze.

Lokalizacja:
– 10 minut do centrum Bielska-Białej
– kilka minut do Szczyrku
– w pobliżu szkoła, przedszkole, sklepy, Lidl, przystanek autobusowy
– spokojne sąsiedztwo, luźna zabudowa jednorodzinna

Zapraszam na prezentację 
Patrycja 725 052 555
Rafał 603 922 230 

UWAGA DOM JEST TEŻ W OFERCIE NA SPRZEDAŻ ZATEM MOŻE BYĆ NAJEM TYLKO NA PÓŁ ROKU
Prowizja dla biura

Niniejsze ogłoszenie nie stanowi oferty w rozumieniu Kodeksu Cywilnego, lecz ma charakter informacyjny.

Przedstawione wizualizacje i grafiki mają charakter wyłącznie poglądowy i stanowią wyłącznie materiał pomocniczy, ułatwiający zorientowanie się w ogólnym wyglądzie oferowanej nieruchomości.

Niniejsze ogłoszenie wraz z jego elementami jest własnością Północ Nieruchomości Sp z o.o. lub podmiotu współpracującego. Wszelkie prawa zastrzeżone. Kopiowanie, rozpowszechnianie oraz korzystanie z niniejszych materiałów w jakikolwiek inny sposób wykraczający poza dozwolony użytek określony przepisami ustawy z 4 lutego 1994 r. o prawie autorskim i prawach pokrewnych (Dz. U. 1994, nr 24 poz. 83 z późn. zm.) bez pisemnej zgody Północ Nieruchomości Sp z o.o. lub podmiotów współpracujących jest zabronione i może stanowić podstawę odpowiedzialności cywilnej oraz karnej.

Niniejsze materiały stanowią tajemnicę przedsiębiorstwa PÓŁNOC NIERUCHOMOŚCI Sp. z o.o. w rozumieniu ustawy z dnia 16 kwietnia 1993 r. o zwalczaniu nieuczciwej konkurencji (Dz. U. z 2003 r., Nr 153, poz. 1503 z późn. zm.).

Mapa

Zapytaj o tę ofertę

Lub zadzwoń