Kontakt

Przestronny budynek 290 m² – Nabróż-Kolonia!

Nabróż-Kolonia zobacz na mapie

249 000 PLN

Cena:
249 000,00 zł
Powierzchnia:
290,00 m2
Cena za m2:
858,62 zł
Powierzchnia działki:
1 383,00 m2
Rok budowy:
2009
Liczba pięter:
1
Liczba pokoi:
5
Stan budynku:
Bardzo dobry
Typ domu:
Wolnostojący
Ciepła woda:
tak
Id oferty:
43377/3877/ODS
Opis

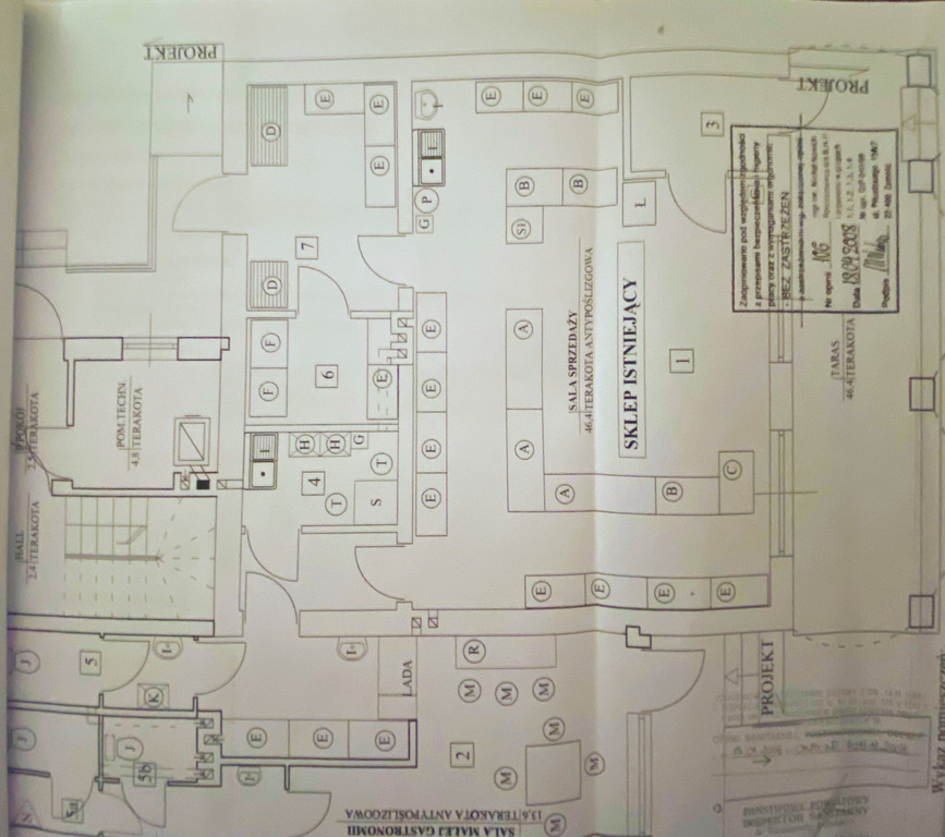
Oferuję na sprzedaż przestronny budynek  usługowo - mieszkalny o powierzchni 290 m2, który może zostać zaadaptowany na komfortowy dom w miejscowości Nabróż-Kolonia w gminie Łaszczów 
( działka nr 98/4) Nieruchomość doskonale nadaje się na mieszkanie lub połączenie funkcji mieszkalnej z działalnością gospodarczą.

Atuty obiektu:
  • Budynek o powierzchni 290 m² - Przestronny, idealny do przekształcenia na wygodny dom.
  • Możliwość adaptacji - Obiekt można łatwo dostosować do różnych potrzeb mieszkalnych, np. w formie przestronnych pokoi, salonu, kuchni, łazienek i innych pomieszczeń użytkowych.
  • Przestronny ogród i działka - Działka o powierzchni 1400 m² daje możliwość stworzenia ogrodu, miejsca na plac zabaw dla dzieci czy strefy relaksu.
  • Bardzo dobra lokalizacja - W pobliżu znajdują się szkoła, kościół, straż pożarna oraz łatwy dostęp do drogi gminnej, co zapewnia komfortowe połączenia komunikacyjne.
  • Monitoring i bezpieczeństwo - Budynek wyposażony w system monitoringu, co zapewnia dodatkowe poczucie bezpieczeństwa.
  • Nieruchomość bez obciążeń.

Instalacje:

  • Elektryczna
  • Wodociągowa
  • Kanalizacyjna (szambo)
  • C.o. (ogrzewanie z kotła stałopalnego)
  • Wentylacja grawitacyjna

Szczegóły oferty:

  • Powierzchnia działki: 1400 m²
  • Powierzchnia budynku: 290 m²
  • Kubatura: 318,2 m³

Parter:

  • Duża przestronna sala, którą można przekształcić w salon
  • Pomieszczenie socjalne (możliwość zaadaptowania na garderobę, spiżarnię, biuro)
  • WC

Piętro:

  • Przestronna przestrzeń, którą można zaadaptować na sypialnie lub dodatkowe pokoje
  • Kuchnia z możliwością przebudowy na nowoczesną strefę kuchenną
  • Łazienka

Potencjał nieruchomości:

  • Możliwość przekształcenia budynku w komfortowy dom jednorodzinny z dużym ogrodem.
  • Z uwagi na przestronność, istnieje możliwość rozbudowy o dodatkowe pomieszczenia.
  • Przekształcenie na dom weselny, pensjonat, bądź inny lokal mieszkalny, łączący przestronność z funkcjonalnością.

**ZAINWESTUJ W SWÓJ NOWY DOM Z POTENCJAŁEM!**
Jeśli szukasz przestronnej nieruchomości w doskonałej lokalizacji, która daje Ci możliwość realizacji Twoich pomysłów, zapraszam do kontaktu. Z przyjemnością pokażę Ci wszystkie atuty tego miejsca i odpowiem na wszelkie pytania. Wierzę, że znajdziesz tu przestrzeń idealną do stworzenia wymarzonego domu.

Konsultacja:
Pomagamy w formalnościach związanych z uzyskaniem kredytu na zakup nieruchomości.
Nasz doradca kredytowy bezpłatnie pomoże Ci sprawdzić zdolność kredytową i przedstawi najkorzystniejszą ofertę z ponad 10 banków!

Posiadasz podobną nieruchomość?
Zadzwoń i skorzystaj z bezpłatnej konsultacji, gdzie odpowiem na pytania dotyczące Twojej nieruchomości, jej ceny oraz procesu sprzedaży.
Nie zwlekaj, zadzwoń już teraz!


Monika Sosna
Tel. 665 752 210
msosna@polnoc.pl

ul. Żeromskiego 3
22-400 Zamość


Niniejsze ogłoszenie nie stanowi oferty w rozumieniu Kodeksu Cywilnego, lecz ma charakter informacyjny.

Przedstawione wizualizacje i grafiki mają charakter wyłącznie poglądowy i stanowią wyłącznie materiał pomocniczy, ułatwiający zorientowanie się w ogólnym wyglądzie oferowanej nieruchomości.

Niniejsze ogłoszenie wraz z jego elementami jest własnością Północ Nieruchomości Sp z o.o. lub podmiotu współpracującego. Wszelkie prawa zastrzeżone. Kopiowanie, rozpowszechnianie oraz korzystanie z niniejszych materiałów w jakikolwiek inny sposób wykraczający poza dozwolony użytek określony przepisami ustawy z 4 lutego 1994 r. o prawie autorskim i prawach pokrewnych (Dz. U. 1994, nr 24 poz. 83 z późn. zm.) bez pisemnej zgody Północ Nieruchomości Sp z o.o. lub podmiotów współpracujących jest zabronione i może stanowić podstawę odpowiedzialności cywilnej oraz karnej.

Niniejsze materiały stanowią tajemnicę przedsiębiorstwa PÓŁNOC NIERUCHOMOŚCI Sp. z o.o. w rozumieniu ustawy z dnia 16 kwietnia 1993 r. o zwalczaniu nieuczciwej konkurencji (Dz. U. z 2003 r., Nr 153, poz. 1503 z późn. zm.).

Mapa

Zapytaj o tę ofertę

Lub zadzwoń