Kontakt
Nr oferty: 43847/3877/ODS

Dom całoroczny modułowy 50m2 od Producenta Poznań

Poznań zobacz na mapie

189 000 PLN

Szczegóły oferty

Cena:
189 000,00 zł
Powierzchnia:
50,00 m2
Cena za m2:
3 780,00 zł
Rok budowy:
2025
Liczba pokoi:
3
Typ domu:
Wolnostojący
Id oferty:
43847/3877/ODS

Opis

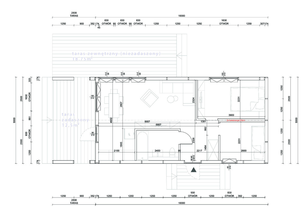
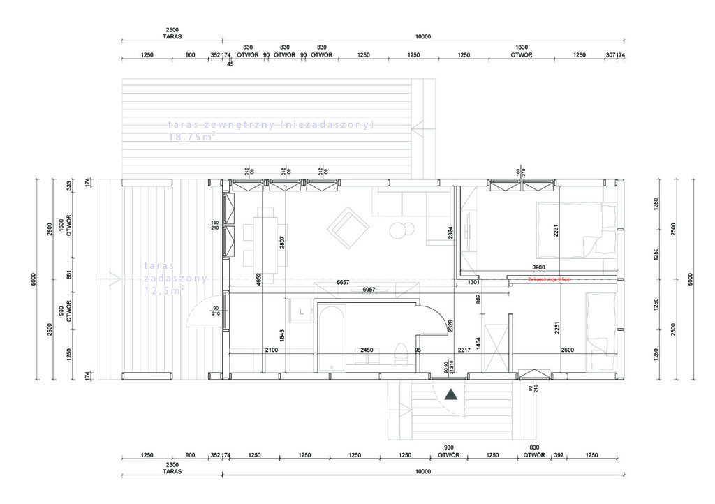
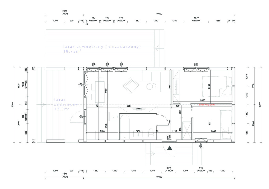
Oferujemy na sprzedaż przepiękny parterowy dom całoroczny o pow.użytkowej 50m² z tarasem zadaszonym o dodatkowej powierzchni 12,5m2.
Idealny do zamieszkania przez cały rok! Jest to dom, który wg obowiązujących polskich przepisów prawa postawisz na swojej działce dokonując jedynie zgłoszenia w urzędzie. Nie wymaga pozwolenia na budowę.
Nowoczesna elewacja niemieckiej firmy Vinylit w połączeniu z blachą na rąbek nie wymaga żadnej konserwacji i będzie pięknie prezentować się przez długie lata.
Opcjonalnie dom można powiększyć o zewnętrzny taras, który dostarczy dodatkowego miejsca na odpoczynek i relaks w gronie przyjaciół i rodziny.
Przemyślany układ pomieszczeń zapewnia przestronność i funkcjonalność.
Dom na pierwszy rzut oka zachwyca swoją prostotą i nowoczesnością i spełni oczekiwania nawet najbardziej wymagających klientów.

Poniżej przedstawiamy szczegóły nieruchomości:

KONSTRUKCJA BUDYNKU:
  • Główna konstrukcja nośna wykonana jest z drewna klejonego KVH. Wypełnienie stanowią Panele SIP (ang. Structural Insulated Panel). Jest to nowoczesny materiał budowlany, który składa się z dwóch warstw zewnętrznych wykonanych z płyt OSB (płyty wiórowe o grubości 12mm), a w środku znajduje się rdzeń termoizolacyjny z pianki polistyrenowej (EPS) szarej, o współczynniku przewodzenia ciepła (λ – lambda) = 0,033. W ścianach grubość EPS to 15cm a w podłodze i dachu 20cm.
    Dodatkowo pod podłogą zastosowano blachę ocynkowaną zabezpieczającą dom od podciągania wilgoci z ziemi oraz od ewentualnych szkodników i gryzoni.
  • Panele SIP zapewniają bardzo dobrą izolację termiczną, co przyczynia się do energooszczędności budynków. Pozwala to na utrzymanie optymalnej temperatury wewnątrz przez cały rok – latem chłodniej, a zimą cieplej.
  • Panele SIP są bardzo wytrzymałe i odporne na uszkodzenia mechaniczne. Technologia produkcji zapewnia dużą stabilność i sztywność.
  • Panele SIP mają również właściwości tłumienia dźwięków, co przyczynia się do poprawy komfortu akustycznego w budynku.
  • STROP I DACH:
  • Dach pokryty jest membraną PVC firmy Protan o dużej trwałości i długim okresie użytkowania.
    OKNA I DRZWI:
  • W domu zamontowane są okna 3-szybowe, które zapewniają świetną izolację termiczną oraz akustyczną. Drzwi zewnętrzne komponują się z całym domem, chronią przed utratą ciepła i zapewniają bezpieczeństwo.
    PODŁOGI I WYKOŃCZENIE WNĘTRZ:
  • Wykończenie ścian nośnych wewnątrz budynku stanowią płyty OSB. Ścianki działowe jednostronnie obłożono płytami OSB dla umożliwienia rozprowadzenia w nich instalacji elektrycznych i wod.-kan. Macie Państwo możliwość wykończenia ich wg własnego pomysłu i preferencji.
    INSTALACJE:
  • Instalacje można we własnym zakresie w bardzo łatwy sposób prowadzić w ściankach działowych lub pod docelowymi okładzinami ścian. Konstrukcja budynku pozwala na swobodne otworowanie przegród.
    TARAS ZADASZONY:
  • Taras zadaszony o powierzchni 12,5m2 wykonany jest z ryflowanej deski świerkowej, dwukrotnie malowanej lazurą olejową odporną na warunki atmosferyczne. Ściany tarasu wykończono deską drewnianą w jasnych odcieniach.
Drogi Kliencie, dom chcemy oddać w Twoje ręce w zewnętrznie wykończonej, nowoczesnej bryle. Wystrój wnętrza pozostawiamy do zaaranżowania według Twoich indywidualnych upodobań.

CENA DOMU:
  • 189 000 PLN + 8%VAT (w przypadku klienta indywidualnego)
  • cena nie zawiera tarasu zewnętrznego oraz schodów
  • Nie zwlekaj – skontaktuj się z nami i umów się na prezentację domu!
  • Dom stoi na placu pokazowym w Poznaniu przy ul. Jedlickiej
  • Zadzwoń pod numer:
Skontaktuj się aby umówić spotkanie i porozmawiać o szczegółach
  • Napisz: domymobilnepoznan (małpa)  
  • Polub nas na Facebook'u: domymobilnepoznan

  • DODATKOWE KOSZTY:
    • Fundamenty:
      swój dom możesz postawić, z uwagi na lekką konstrukcję, na betonowych fundamentach punktowych, wkręcanych fundamentach śrubowych (w których się specjalizujemy i możemy przedstawić indywidualną ofertę) lub tradycyjnych wylewanych ławach betonowych.
    • Transport domu:
      prezentowany dom można podzielić na dwa moduły i transportować na lawetach niskopodwoziowych na docelowe miejsce. Niezbędne jest wynajęcie dźwigu do załadunku dwóch elementów domu.
    • Wykończenie wnętrz:
      dom sprzedajemy w stanie surowym zamkniętym, z gotową elewacją. Całość wykończenia pozostaje w gestii kupującego.

    Niniejsze ogłoszenie nie stanowi oferty w rozumieniu Kodeksu Cywilnego, lecz ma charakter informacyjny.

    Przedstawione wizualizacje i grafiki mają charakter wyłącznie poglądowy i stanowią wyłącznie materiał pomocniczy, ułatwiający zorientowanie się w ogólnym wyglądzie oferowanej nieruchomości.

    Niniejsze ogłoszenie wraz z jego elementami jest własnością Północ Nieruchomości Sp z o.o. lub podmiotu współpracującego. Wszelkie prawa zastrzeżone. Kopiowanie, rozpowszechnianie oraz korzystanie z niniejszych materiałów w jakikolwiek inny sposób wykraczający poza dozwolony użytek określony przepisami ustawy z 4 lutego 1994 r. o prawie autorskim i prawach pokrewnych (Dz. U. 1994, nr 24 poz. 83 z późn. zm.) bez pisemnej zgody Północ Nieruchomości Sp z o.o. lub podmiotów współpracujących jest zabronione i może stanowić podstawę odpowiedzialności cywilnej oraz karnej.

    Niniejsze materiały stanowią tajemnicę przedsiębiorstwa PÓŁNOC NIERUCHOMOŚCI Sp. z o.o. w rozumieniu ustawy z dnia 16 kwietnia 1993 r. o zwalczaniu nieuczciwej konkurencji (Dz. U. z 2003 r., Nr 153, poz. 1503 z późn. zm.).

    Mapa