Kontakt
Nr oferty: 46773/3877/OGS

działki usług. 6ha- 7mln netto- dk 94

Legnica

7 000 000 PLN

Szczegóły oferty

Cena:
7 000 000,00 zł
Powierzchnia działki:
5,99 Ha
Cena za m2:
116,90 zł
Ukształtowanie działki:
Lekko nachylona
Ogrodzenie:
Brak
Przeznaczenie działki:
Budowlana
Kształt działki:
Nieregularny
Plan miejscowy:
Plan zagospodarowania przestrzennego
Id oferty:
46773/3877/OGS

Opis

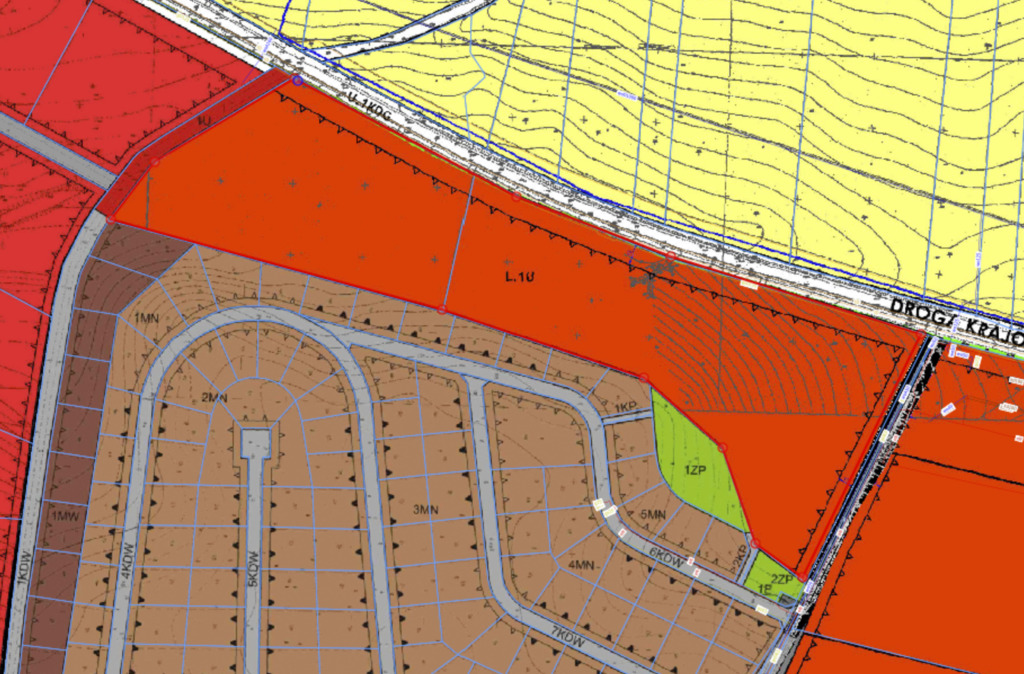
Przedstawiamy w naszej ofercie zestaw dwóch działek inwestycyjnych zlokalizowanych w Lipcach przy drodze krajowej nr 94 niedaleko budującego się szpitala 
ok. 6ha za 7mln zł netto

istnieje możliwość zakupu osobno każdej z działek w cenach 150zł netto/m2
1- 3,6579 ha- 5 486 850 zł netto
2-2,3302 ha- 3 495 300 zł netto

KOMUNIKACJA:
+ blisko DK94
+ 3min zjazd na S3
+ 8min zjazd na A4

MOŻLIWE ZAGOSPODAROWANIE TERENU:
U- tereny usług
+ usługi i/lub nieuciążliwa produkcja 
wskaźnik zabudowy 1,5
min. 10% działki - teren biologicznie czynny
budynki usługowe - h = 15m

UZBROJENIE TERENU:
- woda w drodze
- prąd w drodze
- gaz w drodze (dk94)
- kanalizacji brak

Serdecznie zapraszam na prezentację oferty
PÓŁNOC NIERUCHOMOŚCI
Legnica, ul. Środkowa 22
tel. 887141773

Niniejsze ogłoszenie nie stanowi oferty w rozumieniu Kodeksu Cywilnego, lecz ma charakter informacyjny.

Przedstawione wizualizacje i grafiki mają charakter wyłącznie poglądowy i stanowią wyłącznie materiał pomocniczy, ułatwiający zorientowanie się w ogólnym wyglądzie oferowanej nieruchomości.

Niniejsze ogłoszenie wraz z jego elementami jest własnością Północ Nieruchomości Sp z o.o. lub podmiotu współpracującego. Wszelkie prawa zastrzeżone. Kopiowanie, rozpowszechnianie oraz korzystanie z niniejszych materiałów w jakikolwiek inny sposób wykraczający poza dozwolony użytek określony przepisami ustawy z 4 lutego 1994 r. o prawie autorskim i prawach pokrewnych (Dz. U. 1994, nr 24 poz. 83 z późn. zm.) bez pisemnej zgody Północ Nieruchomości Sp z o.o. lub podmiotów współpracujących jest zabronione i może stanowić podstawę odpowiedzialności cywilnej oraz karnej.

Niniejsze materiały stanowią tajemnicę przedsiębiorstwa PÓŁNOC NIERUCHOMOŚCI Sp. z o.o. w rozumieniu ustawy z dnia 16 kwietnia 1993 r. o zwalczaniu nieuczciwej konkurencji (Dz. U. z 2003 r., Nr 153, poz. 1503 z późn. zm.).

Zapytaj o tę ofertę

Lub zadzwoń