Kontakt

Mieszkania przy ul. Wieniawskiego w Chełmie - 66m2

Chełm, ul. Henryka Wieniawskiego zobacz na mapie

510 000 PLN

Cena:
510 000,00 zł
Powierzchnia:
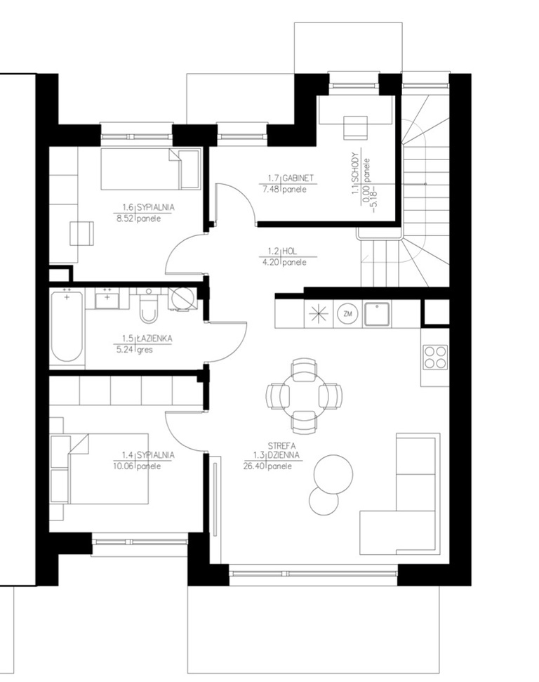
66,02 m2
Cena za m2:
7 724,93 zł
Rok budowy:
2025
Liczba pięter:
1
Piętro:
1
Garaż/Miejsca parkingowe:
tak
Rynek:
Pierwotny
Rodzaj budynku:
Niski blok
Liczba pokoi:
4
Typ kuchni:
Aneks
Id oferty:
124277/3877/OMS
Opis
Wieniawskiego 19 to wyjątkowa inwestycja w sercu Chełma – na osiedlu Słonecznym, w spokojnej okolicy z doskonałym dostępem do miasta.
Budynek obejmuje jedynie 6 komfortowych mieszkań w stanie deweloperskim o powierzchniach:
  • 66,02 m² – 510 000 zł - pierwsze piętra
  • 58,40 m² – 495 000 zł - partery


BUDYNEK ZOSTAŁ JUŻ ODDANY DO UŻYTKU!
Cały teren jest ogrodzony, a brak rozbudowanych części wspólnych oznacza minimalny czynsz i maksymalny komfort.

Mieszkanie składa się z:
- strefa dzienna- salon z aneksem- 26,4m2
- sypialnia główna - 10,6m2
- sypialnia druga- 8,52m2
- gabinet/ pokój - 7,48m2
- hol - 1,2m2
- łazienka - 5,24m2

  Standard wykończenia:
  • ogrzewanie podłogowe w całym mieszkaniu – zasilane pompą ciepła (ARISTON NIMBUS FLEX 50 S NET R32 zasobnik 200L)
  • energooszczędna stolarka okienna i drzwiowa - (okna PCV 3-szybowe, lakierowane na szerokim profilu)
  • prywatne miejsca postojowe (15 000 zł),
  • niskie koszty eksploatacyjne i ogrzewania 
  • nowoczesna architektura i funkcjonalne układy pomieszczeń
  • duże balkony z deską kompozytową oraz oświetleniem!
  • Dodatkowy BOX ROWEROWY dla mieszkań na piętrze!
  • elektryczna brama wjazdowa
  • domofon do każdego mieszkania
  • sterownik do ogrzewania
  • wyprowadzony światłowód


To inwestycja, która łączy wysoki standard z ekonomicznym utrzymaniem – idealna zarówno do zamieszkania, jak i jako zakup inwestycyjny.
Przemyślana architektura
  • mieszkanie 4-pokojowe: 66,02 m2
  • podział na strefę dzienną i prywatną,
  • duże przeszklenia gwarantujące naturalne światło,
  • duży balkon z oświetleniem!


Dla kogo Idealna propozycja dla:
  • osób szukających nowoczesnego, spokojnego miejsca do życia w centrum miasta,
  • rodzin, które chcą mieć ogródek lub balkon w bezpiecznej okolicy,
  • inwestorów – doskonała lokalizacja, niskie koszty utrzymania i energooszczędne rozwiązania to gwarancja stabilnego najmu.

  Dlaczego warto:
 - Brak podatku PCC 
- Bez prowizji pośrednika 
- Pomoc w uzyskaniu kredytu – szybka analiza zdolności kredytowej (1–2 dni)
- Wsparcie na każdym etapie zakupu – bez stresu, z pełnym bezpieczeństwem transakcji
- Nowy budynek 2025 r. – wysoki standard, niskie koszty i nowoczesne rozwiązania
-Pompa ciepła i niskie opłaty – realne oszczędności na ogrzewaniu i czynszu


Skontaktuj się już dziś!
 Patrycja Szmagalska
Autoryzowany przedstawiciel dewelopera
tel. 518 524 828


Niniejsze ogłoszenie nie stanowi oferty w rozumieniu Kodeksu Cywilnego, lecz ma charakter informacyjny.

Przedstawione wizualizacje i grafiki mają charakter wyłącznie poglądowy i stanowią wyłącznie materiał pomocniczy, ułatwiający zorientowanie się w ogólnym wyglądzie oferowanej nieruchomości.

Niniejsze ogłoszenie wraz z jego elementami jest własnością Północ Nieruchomości Sp z o.o. lub podmiotu współpracującego. Wszelkie prawa zastrzeżone. Kopiowanie, rozpowszechnianie oraz korzystanie z niniejszych materiałów w jakikolwiek inny sposób wykraczający poza dozwolony użytek określony przepisami ustawy z 4 lutego 1994 r. o prawie autorskim i prawach pokrewnych (Dz. U. 1994, nr 24 poz. 83 z późn. zm.) bez pisemnej zgody Północ Nieruchomości Sp z o.o. lub podmiotów współpracujących jest zabronione i może stanowić podstawę odpowiedzialności cywilnej oraz karnej.

Niniejsze materiały stanowią tajemnicę przedsiębiorstwa PÓŁNOC NIERUCHOMOŚCI Sp. z o.o. w rozumieniu ustawy z dnia 16 kwietnia 1993 r. o zwalczaniu nieuczciwej konkurencji (Dz. U. z 2003 r., Nr 153, poz. 1503 z późn. zm.).

Mapa

Zapytaj o tę ofertę

Lub zadzwoń