Kontakt

Meszkanie M3 z garażem Chełm

Chełm, ul. Podgórze zobacz na mapie

245 000 PLN

Cena:
245 000,00 zł
Powierzchnia:
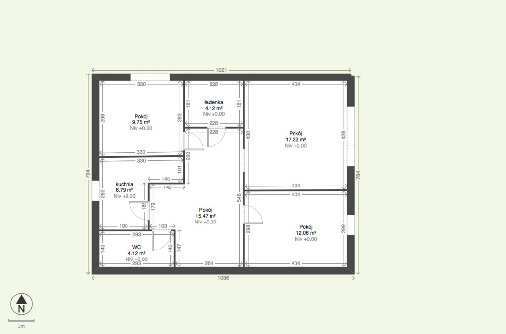
70,00 m2
Cena za m2:
3 500,00 zł
Liczba pięter:
2
Piętro:
2
Garaż/Miejsca parkingowe:
tak
Rynek:
Wtórny
Rodzaj budynku:
Niski blok
Liczba pokoi:
3
Typ kuchni:
Widna
Id oferty:
106996/3877/OMS
Opis
Mieszkanie znajduje się na Podgórzu w Chełmie.

Powierzchnia mieszkania to 70m2, znajdują się tam:
- trzy przestronne pokoje, w tym dwa z balkonami
- oddzielna widna kuchnia
- łazienka
- duży korytarz
-WC
Do mieszkania przynależy piwnica o wielkości aż 8m2.

Dużym atutem mieszkania jest także oddzielny garaż, który znajduje się tuż pod blokiem.
Cena obejmuję mieszkanie razem z garażem i piwnicą.

Założona Księga Wieczysta, wolna od obciążeń
Mieszkanie wymaga remontu.
Niski czynsz tylko 170zł miesięcznie!

W pobliżu znajduję się aqua park, centrum handlowe czy okoliczne lasy przy Kumowej Dolinie i Janowie.
Mieszkanie jest więc dobrym wyborem dla rodziny (plac zabaw, Szkoły Podstawowe nr 3,7) lub dla osób starszych, którzy znajdą tu ciszę i spokój.
Może stać się ono także doskonałą alternatywą na inwestycję - robiąc dwa oddzielne mieszkania.

Polecam i zapraszam do oglądania.

Kupujący nie płaci prowizji!

Patrycja Szmagalska
tel. 518-524-828
e-mail: pszmagalska@polnoc.pl
Północ Nieruchomości oddział Chełm

strona internetowa:
https://polnoc.pl/oddzialy/chelm/

Niniejsze ogłoszenie nie stanowi oferty w rozumieniu Kodeksu Cywilnego, lecz ma charakter informacyjny.

Przedstawione wizualizacje i grafiki mają charakter wyłącznie poglądowy i stanowią wyłącznie materiał pomocniczy, ułatwiający zorientowanie się w ogólnym wyglądzie oferowanej nieruchomości.

Niniejsze ogłoszenie wraz z jego elementami jest własnością Północ Nieruchomości Sp z o.o. lub podmiotu współpracującego. Wszelkie prawa zastrzeżone. Kopiowanie, rozpowszechnianie oraz korzystanie z niniejszych materiałów w jakikolwiek inny sposób wykraczający poza dozwolony użytek określony przepisami ustawy z 4 lutego 1994 r. o prawie autorskim i prawach pokrewnych (Dz. U. 1994, nr 24 poz. 83 z późn. zm.) bez pisemnej zgody Północ Nieruchomości Sp z o.o. lub podmiotów współpracujących jest zabronione i może stanowić podstawę odpowiedzialności cywilnej oraz karnej.

Niniejsze materiały stanowią tajemnicę przedsiębiorstwa PÓŁNOC NIERUCHOMOŚCI Sp. z o.o. w rozumieniu ustawy z dnia 16 kwietnia 1993 r. o zwalczaniu nieuczciwej konkurencji (Dz. U. z 2003 r., Nr 153, poz. 1503 z późn. zm.).

Mapa

Zapytaj o tę ofertę

Lub zadzwoń