Kontakt
Nr oferty: 124821/3877/OMS

3 oddzielne pokoje, Czechów Południowy

Czechów Dolny zobacz na mapie

469 000 PLN

Szczegóły oferty

Cena:
469 000,00 zł
Powierzchnia:
56,60 m2
Cena za m2:
8 286,22 zł
Rok budowy:
1977
Liczba pięter:
10
Piętro:
8
Rynek:
Wtórny
Rodzaj budynku:
Wieżowiec
Liczba pokoi:
3
Typ kuchni:
Oddzielna
Winda:
tak
Piwnica:
tak
Id oferty:
124821/3877/OMS

Opis

Sprzedam trzypokojowe mieszkanie do remontu położone na Czechowie (osiedle Moniuszki).

Nieruchomość znajduje się na 8 piętrze w 10-piętrowym wieżowcu z dwiema windami.

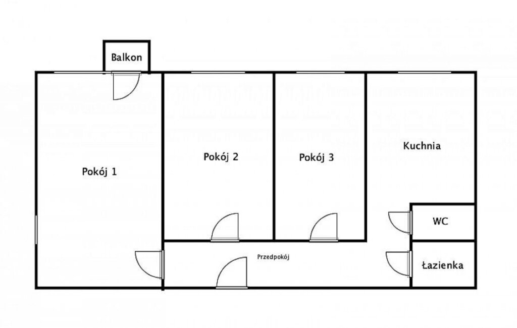
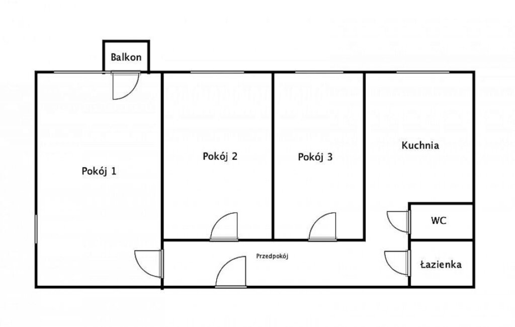
Na powierzchni 56,6 m2 znajdują się:
  • Pokój o powierzchni ok. 20 m2,
  • Pokój o powierzchni ok. 10 m2,
  • Pokój o powierzchni ok. 8 m2
  • Oddzielna kuchnia z oknem o powierzchni ok. 8,5 m2
  • Łazienka o powierzchni ok. 2,5 m2
  • WC o powierzchni ok. 1 m2
  • Przedpokój o powierzchni ok. 9 m2

Do mieszkania przynależy balkon oraz piwnica ok. 2,8 m2.

Na podłogach panele i terakota.
Okna PCV. Mieszkanie narożne z wystawą okien na północ i wschód.

Czynsz wynosi 750 zł (zawiera zaliczkę na wodę, C.O. fundusz remontowy, wywóz śmieci i sprzątanie klatki schodowej).
Opłaty dodatkowe to prąd i gaz.

Ciepła woda oraz ogrzewanie z sieci miejskiej.

Lokalizacja jest jednym z największych atutów nieruchomości (w pobliżu szkoła, przedszkole, liczne sklepy).
Pod blokiem znajduje się duży, ogólnodostępny parking dla mieszkańców.

Świetna inwestycja pod wynajem - możliwość wydzielenia 5 pokoi (patrz zdjęcia).
Zapraszam na prezentację.
Marcin Stępniak 571-241-152


Niniejsze ogłoszenie nie stanowi oferty w rozumieniu Kodeksu Cywilnego, lecz ma charakter informacyjny.

Przedstawione wizualizacje i grafiki mają charakter wyłącznie poglądowy i stanowią wyłącznie materiał pomocniczy, ułatwiający zorientowanie się w ogólnym wyglądzie oferowanej nieruchomości.

Niniejsze ogłoszenie wraz z jego elementami jest własnością Północ Nieruchomości Sp z o.o. lub podmiotu współpracującego. Wszelkie prawa zastrzeżone. Kopiowanie, rozpowszechnianie oraz korzystanie z niniejszych materiałów w jakikolwiek inny sposób wykraczający poza dozwolony użytek określony przepisami ustawy z 4 lutego 1994 r. o prawie autorskim i prawach pokrewnych (Dz. U. 1994, nr 24 poz. 83 z późn. zm.) bez pisemnej zgody Północ Nieruchomości Sp z o.o. lub podmiotów współpracujących jest zabronione i może stanowić podstawę odpowiedzialności cywilnej oraz karnej.

Niniejsze materiały stanowią tajemnicę przedsiębiorstwa PÓŁNOC NIERUCHOMOŚCI Sp. z o.o. w rozumieniu ustawy z dnia 16 kwietnia 1993 r. o zwalczaniu nieuczciwej konkurencji (Dz. U. z 2003 r., Nr 153, poz. 1503 z późn. zm.).

Mapa

Zapytaj o tę ofertę

Lub zadzwoń