Kontakt
Nr oferty: 124807/3877/OMS

LSM - 3 oddzielne pokoje.

LSM, Balladyny zobacz na mapie

430 000 PLN

Szczegóły oferty

Cena:
430 000,00 zł
Powierzchnia:
46,00 m2
Cena za m2:
9 347,83 zł
Rok budowy:
1968
Liczba pięter:
3
Piętro:
2
Rynek:
Wtórny
Rodzaj budynku:
Blok
Liczba pokoi:
3
Typ kuchni:
Widna
Id oferty:
124807/3877/OMS

Opis

Sprzedam trzypokojowe mieszkanie do remontu w dzielnicy Rury- spółdzielnia mieszkaniowa LSM.
Lokal o powierzchni 46 m2 usytuowany jest na 2 piętrze w niskim bloku bez windy.

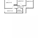
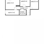
W skład mieszkania wchodzi:
- pokój 14 m2 + balkon ok. 2 m2,
- pokój 9,5 m2,
- pokój 8,5 m2,
- kuchnia z oknem 5,3 m2,
- łazienka z wc 2,5 m2,
- przedpokój 6 m2.

Do mieszkania przynależy piwnica ok. 8 m2.

Opłaty:
- czynsz 500 zł. (w czynszu CO),
- woda (według wskazań wodomierzy),
- prąd (według wskazań licznika),
- gaz (według wskazań licznika).

W bliskiej odległości znajduje się szkoła, przedszkole, plac zabaw dla dzieci, centrum handlowe i hipermarket E`Leclerc, targowisko.

Zapraszam na prezentację
Marcin Stępniak
tel. 571-241-152


Niniejsze ogłoszenie nie stanowi oferty w rozumieniu Kodeksu Cywilnego, lecz ma charakter informacyjny.

Przedstawione wizualizacje i grafiki mają charakter wyłącznie poglądowy i stanowią wyłącznie materiał pomocniczy, ułatwiający zorientowanie się w ogólnym wyglądzie oferowanej nieruchomości.

Niniejsze ogłoszenie wraz z jego elementami jest własnością Północ Nieruchomości Sp z o.o. lub podmiotu współpracującego. Wszelkie prawa zastrzeżone. Kopiowanie, rozpowszechnianie oraz korzystanie z niniejszych materiałów w jakikolwiek inny sposób wykraczający poza dozwolony użytek określony przepisami ustawy z 4 lutego 1994 r. o prawie autorskim i prawach pokrewnych (Dz. U. 1994, nr 24 poz. 83 z późn. zm.) bez pisemnej zgody Północ Nieruchomości Sp z o.o. lub podmiotów współpracujących jest zabronione i może stanowić podstawę odpowiedzialności cywilnej oraz karnej.

Niniejsze materiały stanowią tajemnicę przedsiębiorstwa PÓŁNOC NIERUCHOMOŚCI Sp. z o.o. w rozumieniu ustawy z dnia 16 kwietnia 1993 r. o zwalczaniu nieuczciwej konkurencji (Dz. U. z 2003 r., Nr 153, poz. 1503 z późn. zm.).

Mapa

Zapytaj o tę ofertę

Lub zadzwoń