Kontakt

4 pokoje/ 77,1 m2/ Czuby / 3 niezależne sypialnie

Lublin, ul. Watykańska zobacz na mapie

499 000 PLN

Cena:
499 000,00 zł
Powierzchnia:
77,10 m2
Cena za m2:
6 481,00 zł
Rok budowy:
1993
Liczba pięter:
10
Piętro:
2
Garaż/Miejsca parkingowe:
tak
Rynek:
Wtórny
Rodzaj budynku:
Wysoki blok
Liczba pokoi:
4
Typ kuchni:
Oddzielna
Winda:
tak
Id oferty:
113546/3877/OMS
Opis
Północ Nieruchomości ma przyjemność zaprezentować Państwu nieruchomość zlokalizowaną na lubelskich Czubach, przy ul. Watykańskiej.
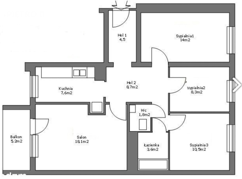
Czteropokojowe mieszkanie znajdujące się w otoczeniu zieleni usytuowane jest na drugim piętrze w wieżowcu z windą.

Dwustronne, rozkładowe mieszkanie o pow. 77,1 m2 składa się z:
- kuchni o pow. 7,6 m2;
- salonu o pow. 18,1 m2;
- pokoju o pow. 10,5 m2;
- pokoju o pow. 14 m2;
- pokoju o pow. 8,3 m2;
- przedpokoju o pow. 8,7 m2;
- łazienki o pow. 3,6 m2;
- wc o pow. 1,8 m2;
- balkonu o pow. 5,2 m2.
Możliwość wyburzenia ściany tworząc przestronny salon z aneksem kuchennym.

Osiedle znajduje się w świetnym miejscu, pod względem komunikacyjnym.
Nieopodal znajduje się przystanek autobusowy, który umożliwia bardzo dogodny dojazd do każdej dzielnicy.
W pobliżu Wąwóz, który jest idealnym miejsce do spędzania czasu na świeżym powietrzu.
Z okien mieszkania rozprzestrzenia się widok na tereny zielone osiedla, okolica jest spokojna oraz cicha, nie brak miejsc parkingowych.

Na miejscu znajdą Państwo liczne udogodnienia tj.:

Dla osób mających dzieci :
- szkoła podstawowa
- przedszkole
- liczne place zabaw

Dla osób lubiących aktywnie spędzać czas:
- ścieżki rowerowe, prowadzące nad Zalew lub np do Rezerwatu "Stary Las"
- Miejska stacja do wypożyczania rowerów
- siłownia
- boisko do gry w piłkę

Dodatkowo bardzo dobrze rozwinięta infrastruktura:
- liczne sklepy w odległości do 400m (Stokrotna, Biedronka, Rossmann itd)
- Spa Orkana ok 1km
- kościół
- przychodnia zdrowia
- restauracje i punkty usługowe
- bardzo dobre połączenie Komunikacją Miejską
- szybki dojazd do obwodnicy miasta
- duża ilość terenów zielonych

Idealne dla rodziny, jak i pod inwestycję, ze względu na 3 niezależne sypialnie.
Mieszkanie nie wymaga wysokich nakładów finansowych, jedynie drobne odświeżenie.

Zapraszam do kontaktu oraz na prezentacje.
Oferujemy również Państwu możliwość konsultacji z naszym ekspertem kredytowym, który pomoże we wszelkich formalnościach.

Agnieszka Welenc
+48 789 563 578
awelenc@polnoc.pl

Niniejsze ogłoszenie nie stanowi oferty w rozumieniu Kodeksu Cywilnego, lecz ma charakter informacyjny.

Przedstawione wizualizacje i grafiki mają charakter wyłącznie poglądowy i stanowią wyłącznie materiał pomocniczy, ułatwiający zorientowanie się w ogólnym wyglądzie oferowanej nieruchomości.

Niniejsze ogłoszenie wraz z jego elementami jest własnością Północ Nieruchomości Sp z o.o. lub podmiotu współpracującego. Wszelkie prawa zastrzeżone. Kopiowanie, rozpowszechnianie oraz korzystanie z niniejszych materiałów w jakikolwiek inny sposób wykraczający poza dozwolony użytek określony przepisami ustawy z 4 lutego 1994 r. o prawie autorskim i prawach pokrewnych (Dz. U. 1994, nr 24 poz. 83 z późn. zm.) bez pisemnej zgody Północ Nieruchomości Sp z o.o. lub podmiotów współpracujących jest zabronione i może stanowić podstawę odpowiedzialności cywilnej oraz karnej.

Niniejsze materiały stanowią tajemnicę przedsiębiorstwa PÓŁNOC NIERUCHOMOŚCI Sp. z o.o. w rozumieniu ustawy z dnia 16 kwietnia 1993 r. o zwalczaniu nieuczciwej konkurencji (Dz. U. z 2003 r., Nr 153, poz. 1503 z późn. zm.).

Mapa

Zobacz również w okolicy