Kontakt

Pokazowe Mieszkanie 144,3m2 | Marki | Promocja

Marki, ul. Gliniecka zobacz na mapie

1 100 000 PLN

Cena:
1 100 000,00 zł
Powierzchnia:
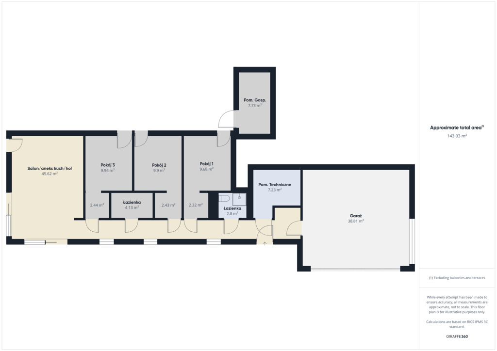
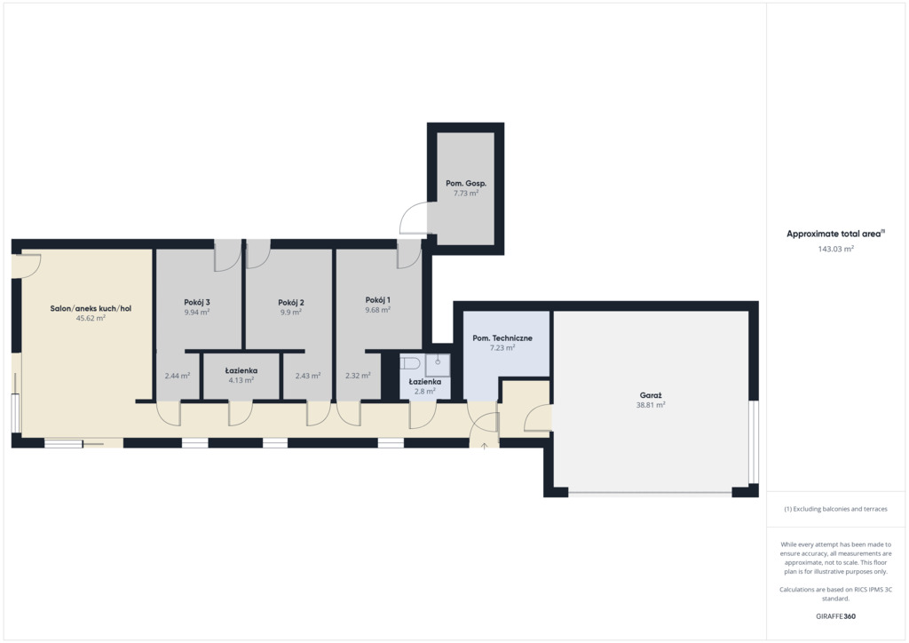
144,30 m2
Cena za m2:
7 623,01 zł
Rok budowy:
2024
Liczba pięter:
1
Garaż/Miejsca parkingowe:
tak
Rynek:
Pierwotny
Rodzaj budynku:
Budynek apartamentowy
Liczba pokoi:
4
Typ kuchni:
Aneks
Id oferty:
121989/3877/OMS
Opis
Zakup bez prowizji i bez podatku PCC 2%

 Skorzystaj z promocyjnej oferty zakupu mieszkania pokazowego  0 powierzchni 144,3m2 z ogrodem 237m2.

Nowoczesne mieszkanie na kameralnym osiedlu w Markach – połączenie natury, komfortu i ekologii

Osiedle "EkoLake" to wyjątkowe miejsce, gdzie nowoczesność spotyka się z naturą.
Mieszkania zlokalizowane są na terenie inwestycji, która oferuje unikalną strefę rekreacyjną
własny las oraz bezpośredni dostęp do malowniczej linii brzegowej jeziora Czarnego.
To idealne miejsce dla tych, którzy cenią spokój, bliskość przyrody i komfort życia.

Kluczowe zalety mieszkań:
Duże ogródki: Każde mieszkanie posiada przestronny ogród o powierzchni od 180 do 261 m²,
który staje się idealnym miejscem do relaksu, spotkań z rodziną czy urządzania letnich przyjęć.

Przestrzeń i funkcjonalność:
Mieszkania zaprojektowano z myślą o wygodzie – 4 pokoje,
w tym przestronny pokój dzienny z aneksem kuchennym (27,64 m²), trzy sypialnie oraz dwie łazienki.
Dodatkowo, w skład nieruchomości wchodzą pomieszczenia gospodarcze oraz dwu stanowiskowy garaż.

Kameralność i prywatność:
 Osiedle składa się z zaledwie 9 budynków w zabudowie bliźniaczej,
co gwarantuje spokój i intymność. Każde mieszkanie ma odrębne wejście, a układ budynków został zaprojektowany tak,
aby zapewnić maksymalną ciszę – mieszkania na piętrze nie znajdują się bezpośrednio nad lokalami na parterze.

Wyjątkowa strefa rekreacyjna:
Własny las i jezioro: Mieszkańcy mogą cieszyć się bliskością natury
– drewniany pomost, hamaki, ławeczki oraz miejsce na grill i ognisko to tylko niektóre atrakcje.

Rezerwat Przyrody "Horowe Bagno": W bezpośrednim sąsiedztwie osiedla znajduje się rezerwat,
a także liczne ścieżki rowerowe, idealne dla miłośników aktywnego wypoczynku.

Ekologia i oszczędność:
Odnawialne źródła energii: Budynki wyposażono w pompy ciepła
Panasonic oraz instalacje fotowoltaiczne produkujące łącznie 12 500 kWh/dom, co znacząco obniża koszty eksploatacji.

Doskonała izolacja:
Ściany zewnętrzne, wewnętrzne, strop i dach zostały wykonane
 z materiałów o wysokiej izolacji termicznej i akustycznej, zapewniając komfort przez cały rok.

Dogodna lokalizacja:
Szybki dojazd do Warszawy: Osiedle znajduje się zaledwie 1,5 km od trasy S8,
co pozwala na dotarcie do centrum stolicy w około 20 minut.

Infrastruktura w zasięgu ręki:
szkoła podstawowa 1300m
przedszkole 700m
sklepy, restauracje, centra handlowe oraz obiekty sportowe.

Pomoc w uzyskaniu kredytu hipotecznego

Spotkajmy się w tym wyjątkowym miejscu  - zapraszam do kontaktu !


Niniejsze ogłoszenie nie stanowi oferty w rozumieniu Kodeksu Cywilnego, lecz ma charakter informacyjny.

Przedstawione wizualizacje i grafiki mają charakter wyłącznie poglądowy i stanowią wyłącznie materiał pomocniczy, ułatwiający zorientowanie się w ogólnym wyglądzie oferowanej nieruchomości.

Niniejsze ogłoszenie wraz z jego elementami jest własnością Północ Nieruchomości Sp z o.o. lub podmiotu współpracującego. Wszelkie prawa zastrzeżone. Kopiowanie, rozpowszechnianie oraz korzystanie z niniejszych materiałów w jakikolwiek inny sposób wykraczający poza dozwolony użytek określony przepisami ustawy z 4 lutego 1994 r. o prawie autorskim i prawach pokrewnych (Dz. U. 1994, nr 24 poz. 83 z późn. zm.) bez pisemnej zgody Północ Nieruchomości Sp z o.o. lub podmiotów współpracujących jest zabronione i może stanowić podstawę odpowiedzialności cywilnej oraz karnej.

Niniejsze materiały stanowią tajemnicę przedsiębiorstwa PÓŁNOC NIERUCHOMOŚCI Sp. z o.o. w rozumieniu ustawy z dnia 16 kwietnia 1993 r. o zwalczaniu nieuczciwej konkurencji (Dz. U. z 2003 r., Nr 153, poz. 1503 z późn. zm.).

Mapa

Zapytaj o tę ofertę

Lub zadzwoń