Kontakt

49,55m2, 2 pokoje, ogródek, bez prowizji, bez PCC!

Zieleniec zobacz na mapie

580 000 PLN

Cena:
580 000,00 zł
Powierzchnia:
49,55 m2
Cena za m2:
11 705,35 zł
Rok budowy:
2025
Liczba pięter:
2
Garaż/Miejsca parkingowe:
tak
Rynek:
Pierwotny
Rodzaj budynku:
Dom wielolokalowy
Liczba pokoi:
2
Typ kuchni:
Otwarta
Id oferty:
124427/3877/OMS
Opis
BEZ PROWIZJI, BEZ PCC !!!

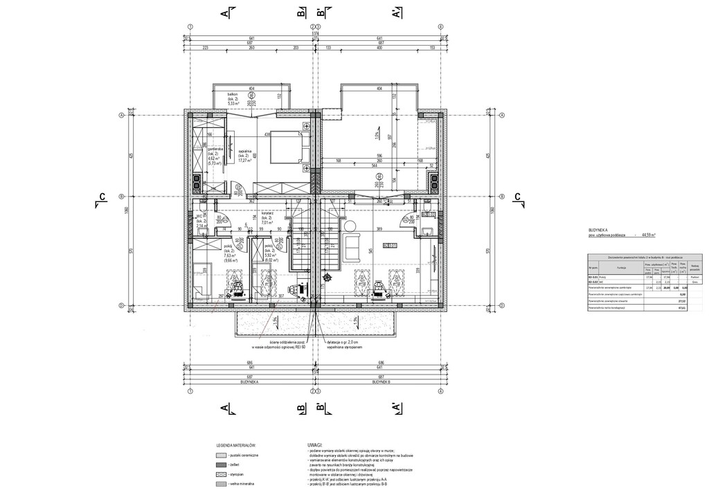
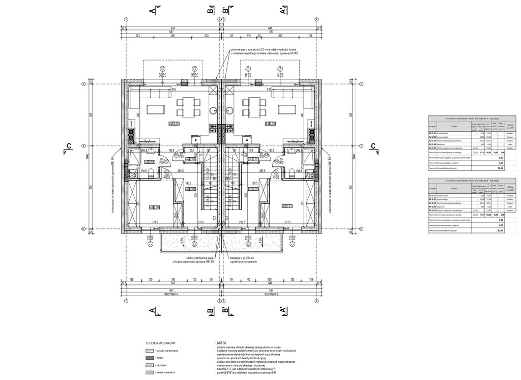
Na sprzedaż  bezczynszowe mieszkanie dwupokojowe 49,55m2 z ogródkiem, zlokalizowane w Markach na Zieleńcu. 
Zdjęcia przedstawiają stan zaawansowania inwestycji na 8.09.2025r. 
Inwestycja oddana do użytkowania.
 
- parter
- 2 pokoje
- ogródek
- ogrzewanie podłogowe w całym mieszkaniu
- możliwość instalacji kominka
- 2 miejsca postojowe (w cenie mieszkania)
- zamknięte osiedle 
- rozprowadzona instalacja do podłączenia światłowodu
- rozprowadzona instalacja alarmowa

METRAŻ:

*Salon z kuchnią– 23,99 m2
*Pokój -9,84 m2
*Wiatrołap - 4,05 m2
*Łazienka – 5,21 m2
*Hol – 5,22 m2
*Spiżarnia - 1,24m2

* W inwestycji jest do sprzedania ostatnie mieszkanie dwupoziomowe o metrażu ok. 97m2, z dwoma miejscami postojowymi i ogródkiem w cenie 690 000zł.


*spokojna okolica
*autobus (20 minut do metra na Trockiej)
*blisko las
*doskonały dostęp do trasy S8.


* Oferuję również kompleksową i profesjonalną pomoc w pozyskaniu kredytu hipotecznego na zakup
* Rozmawiam po rosyjsku i po angielsku


Serdecznie polecam i zachęcam do kontaktu w celu uzyskania dodatkowych informacji.

Niniejsze ogłoszenie nie stanowi oferty w rozumieniu Kodeksu Cywilnego, lecz ma charakter informacyjny.

Przedstawione wizualizacje i grafiki mają charakter wyłącznie poglądowy i stanowią wyłącznie materiał pomocniczy, ułatwiający zorientowanie się w ogólnym wyglądzie oferowanej nieruchomości.

Niniejsze ogłoszenie wraz z jego elementami jest własnością Północ Nieruchomości Sp z o.o. lub podmiotu współpracującego. Wszelkie prawa zastrzeżone. Kopiowanie, rozpowszechnianie oraz korzystanie z niniejszych materiałów w jakikolwiek inny sposób wykraczający poza dozwolony użytek określony przepisami ustawy z 4 lutego 1994 r. o prawie autorskim i prawach pokrewnych (Dz. U. 1994, nr 24 poz. 83 z późn. zm.) bez pisemnej zgody Północ Nieruchomości Sp z o.o. lub podmiotów współpracujących jest zabronione i może stanowić podstawę odpowiedzialności cywilnej oraz karnej.

Niniejsze materiały stanowią tajemnicę przedsiębiorstwa PÓŁNOC NIERUCHOMOŚCI Sp. z o.o. w rozumieniu ustawy z dnia 16 kwietnia 1993 r. o zwalczaniu nieuczciwej konkurencji (Dz. U. z 2003 r., Nr 153, poz. 1503 z późn. zm.).

Mapa

Zapytaj o tę ofertę

Lub zadzwoń