Kontakt
Nr oferty: 123321/3877/OMS

Wilda, 2-Pokojowe, 41,77m2 - 0% prowizji

Poznań, ul. 28 Czerwca 1956 r. zobacz na mapie

399 000 PLN

Szczegóły oferty

Cena:
399 000,00 zł
Powierzchnia:
41,77 m2
Cena za m2:
9 552,31 zł
Liczba pięter:
2
Piętro:
1
Rynek:
Wtórny
Rodzaj budynku:
Kamienica
Liczba pokoi:
2
Id oferty:
123321/3877/OMS

Opis

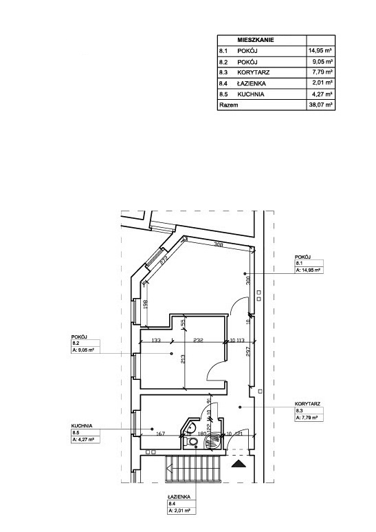
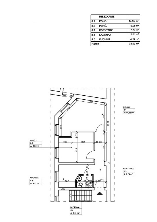
Na sprzedaż mieszkanie 2-pokojowe o powierzchni użytkowej 41,77m2 ,zlokalizowane na pierwszym piętrze, w odnowionej kamienicy przy ulicy 28 Czerwca 156R. w Poznaniu.

PEŁNA WŁASNOŚĆ z KW

-Mieszkanie bardzo dobrze doświetlone
-Wystawa okien na ciche podwórze od strony południowej.
-Budynek po termomodernizacji.
-Do mieszkania przynależy piwnica 4 m2
-Okna PCV.
-Ogrzewanie gazowe
-Internet światłowodowy

Nieruchomość położona na poznańskiej Wildzie.
Sąsiedztwo terenów zielonych (Park Św. Jana Pawła II).
W okolicy liczne sklepy handlowo-usługowe, ryneczek Wildecki gdzie znajdziecie świeże warzywa owoce, 100m do parku.
Blisko do centrum handlowego Stary Browar oraz Centrum handlowego Avenida.
Dogodny dojazd do centrum miasta i jak na wylotówkę na A2.

Niniejsze ogłoszenie nie stanowi oferty w rozumieniu Kodeksu Cywilnego, lecz ma charakter informacyjny.

Przedstawione wizualizacje i grafiki mają charakter wyłącznie poglądowy i stanowią wyłącznie materiał pomocniczy, ułatwiający zorientowanie się w ogólnym wyglądzie oferowanej nieruchomości.

Niniejsze ogłoszenie wraz z jego elementami jest własnością Północ Nieruchomości Sp z o.o. lub podmiotu współpracującego. Wszelkie prawa zastrzeżone. Kopiowanie, rozpowszechnianie oraz korzystanie z niniejszych materiałów w jakikolwiek inny sposób wykraczający poza dozwolony użytek określony przepisami ustawy z 4 lutego 1994 r. o prawie autorskim i prawach pokrewnych (Dz. U. 1994, nr 24 poz. 83 z późn. zm.) bez pisemnej zgody Północ Nieruchomości Sp z o.o. lub podmiotów współpracujących jest zabronione i może stanowić podstawę odpowiedzialności cywilnej oraz karnej.

Niniejsze materiały stanowią tajemnicę przedsiębiorstwa PÓŁNOC NIERUCHOMOŚCI Sp. z o.o. w rozumieniu ustawy z dnia 16 kwietnia 1993 r. o zwalczaniu nieuczciwej konkurencji (Dz. U. z 2003 r., Nr 153, poz. 1503 z późn. zm.).

Mapa

Zapytaj o tę ofertę

Lub zadzwoń