Kontakt
Nr oferty: 124876/3877/OMS

3pok*64.02mkw*obok Kampinosu*oddzielna kuchnia

Bielany, ul. Loteryjki zobacz na mapie

813 054 PLN

Szczegóły oferty

Cena:
813 054,00 zł
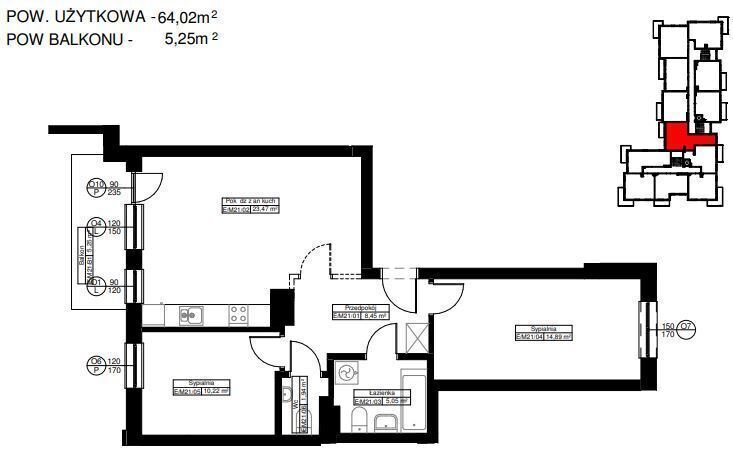
Powierzchnia:
64,02 m2
Cena za m2:
12 700,00 zł
Rok budowy:
2025
Liczba pięter:
3
Piętro:
2
Garaż/Miejsca parkingowe:
tak
Rynek:
Pierwotny
Rodzaj budynku:
Niski blok
Liczba pokoi:
3
Winda:
tak
Id oferty:
124876/3877/OMS

Opis

GOTOWE DO ODBIORU

BEZ PODATKU PCC
BEZ PROWIZJI

3 pokojowe mieszkanie w dogodnej lokalizacji
Warszawa, ulica Loteryjki (Bielany)

Ustawne mieszkanie, na które składa się:
Salon z aneksem - 23,47mkw
Sypialnia - 10,22mkw
Sypialnia - 14,89mkw
Łazienka - 5,05mkw
WC - 1,94mkw
Przedpokój - 8,45mkw

Do mieszkania przynależy balkon o dodatkowej powierzchni 5,25mkw.

Do mieszkania można dokupić  miejsce postojowe naziemne za 30tys.

Nowe osiedle składające się z 7 kameralnych budynków oddanych do użytku. Można wchodzić i wykańczać według swoich preferencji.
Budynki są kameralne, 2 lub 3 piętrowe.

Świetna lokalizacja. Wokół sklepy i punkty usługowe. W odległości ponad 4km od osiedla znajduje się największa Galeria handlowa w Warszawie - Galeria Młociny.
Mnóstwo terenów zielonych i place zabaw. Kilkaset metrów od osiedla znajduje się Kampinoski Park Narodowy.

Komunikacja: Niecałe 500m od osiedla przystanek z linią 110, którą dojedziemy np. do Metra Marymont. Metra Słodowiec lub Metra Młociny. W dalszej odległości (około 700m) kolejny przystanek z 4 liniami autobusowymi.

Zachęcam do kontaktu i oglądania mieszkań od wewnątrz.

Niniejsze ogłoszenie nie stanowi oferty w rozumieniu Kodeksu Cywilnego, lecz ma charakter informacyjny.

Przedstawione wizualizacje i grafiki mają charakter wyłącznie poglądowy i stanowią wyłącznie materiał pomocniczy, ułatwiający zorientowanie się w ogólnym wyglądzie oferowanej nieruchomości.

Niniejsze ogłoszenie wraz z jego elementami jest własnością Północ Nieruchomości Sp z o.o. lub podmiotu współpracującego. Wszelkie prawa zastrzeżone. Kopiowanie, rozpowszechnianie oraz korzystanie z niniejszych materiałów w jakikolwiek inny sposób wykraczający poza dozwolony użytek określony przepisami ustawy z 4 lutego 1994 r. o prawie autorskim i prawach pokrewnych (Dz. U. 1994, nr 24 poz. 83 z późn. zm.) bez pisemnej zgody Północ Nieruchomości Sp z o.o. lub podmiotów współpracujących jest zabronione i może stanowić podstawę odpowiedzialności cywilnej oraz karnej.

Niniejsze materiały stanowią tajemnicę przedsiębiorstwa PÓŁNOC NIERUCHOMOŚCI Sp. z o.o. w rozumieniu ustawy z dnia 16 kwietnia 1993 r. o zwalczaniu nieuczciwej konkurencji (Dz. U. z 2003 r., Nr 153, poz. 1503 z późn. zm.).

Mapa

Zapytaj o tę ofertę

Lub zadzwoń