Kontakt
Nr oferty: 44463/3877/ODS

Duży dom w Błudowie

Błudowo zobacz na mapie

400 000 PLN

Szczegóły oferty

Cena:
400 000,00 zł
Powierzchnia:
204,80 m2
Cena za m2:
1 953,13 zł
Powierzchnia użytkowa:
160,00 m2
Powierzchnia działki:
3 400,00 m2
Liczba pięter:
1
Liczba pokoi:
5
Stan budynku:
Do remontu
Typ domu:
Wolnostojący
Ciepła woda:
tak
Id oferty:
44463/3877/ODS

Opis

W sercu spokojnej, otoczonej naturą miejscowości Błudowo prezentujemy nieruchomość, która łączy klimat dawnej architektury z potencjałem do stworzenia miejsca wyjątkowego — rodzinnego domu, kameralnego pensjonatu, przestrzeni rekreacyjnej lub komfortowych kwater. Ta nieruchomość posiada funkcjonalny układ pomieszczeń i spory teren, który można wykorzystać na wiele sposobów.
Działka o powierzchni 0,3400 ha, w większości ogrodzona, daje realne możliwości stworzenia dużego ogrodu, przestrzeni rekreacyjnej, rozwoju działalności agroturystycznej, myśliwskiej lub sezonowej. 
Budynek w standardzie podstawowym, wymaga modernizacji, ale zapewnia pełną funkcjonalność na obecnym etapie. Konstrukcja tradycyjna, użytkowana całorocznie. Budynek przeszedł częściową modernizację, został ocieplony, wymieniono okna i parapety, wykonano izolację dachu i przełożono dachówkę, wykonano częściowy remont pomieszczeń.
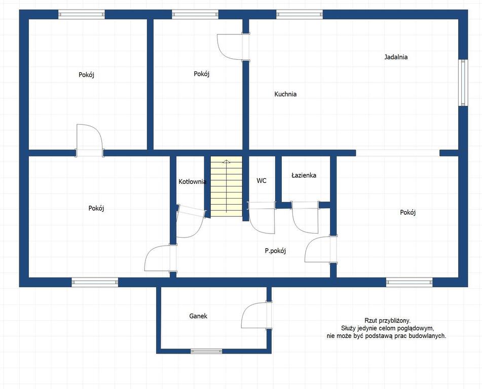
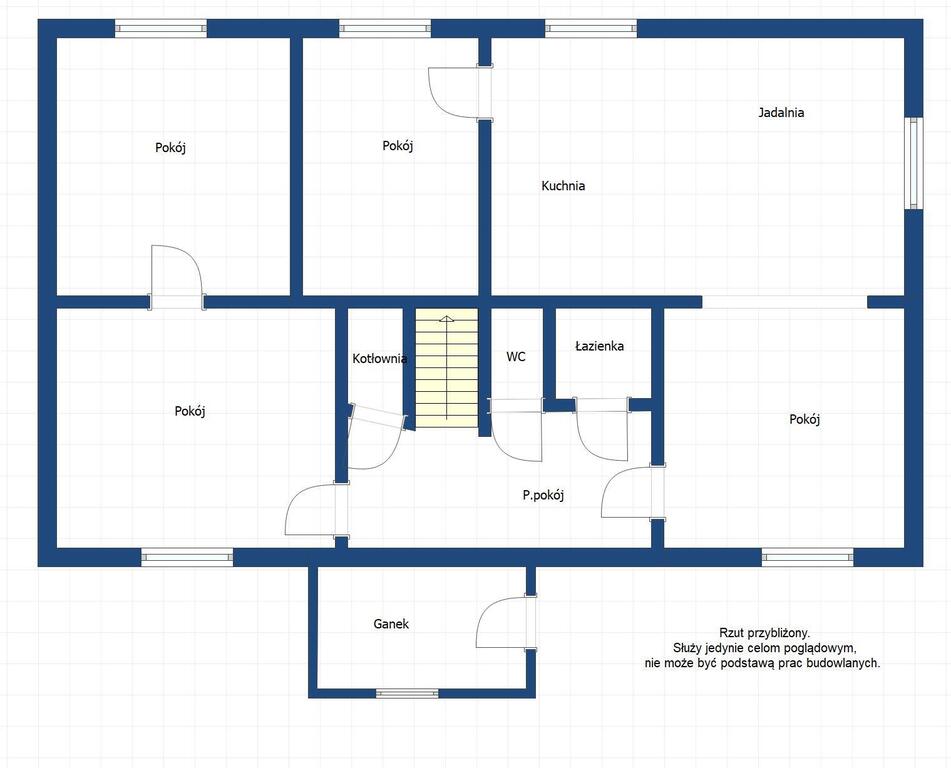
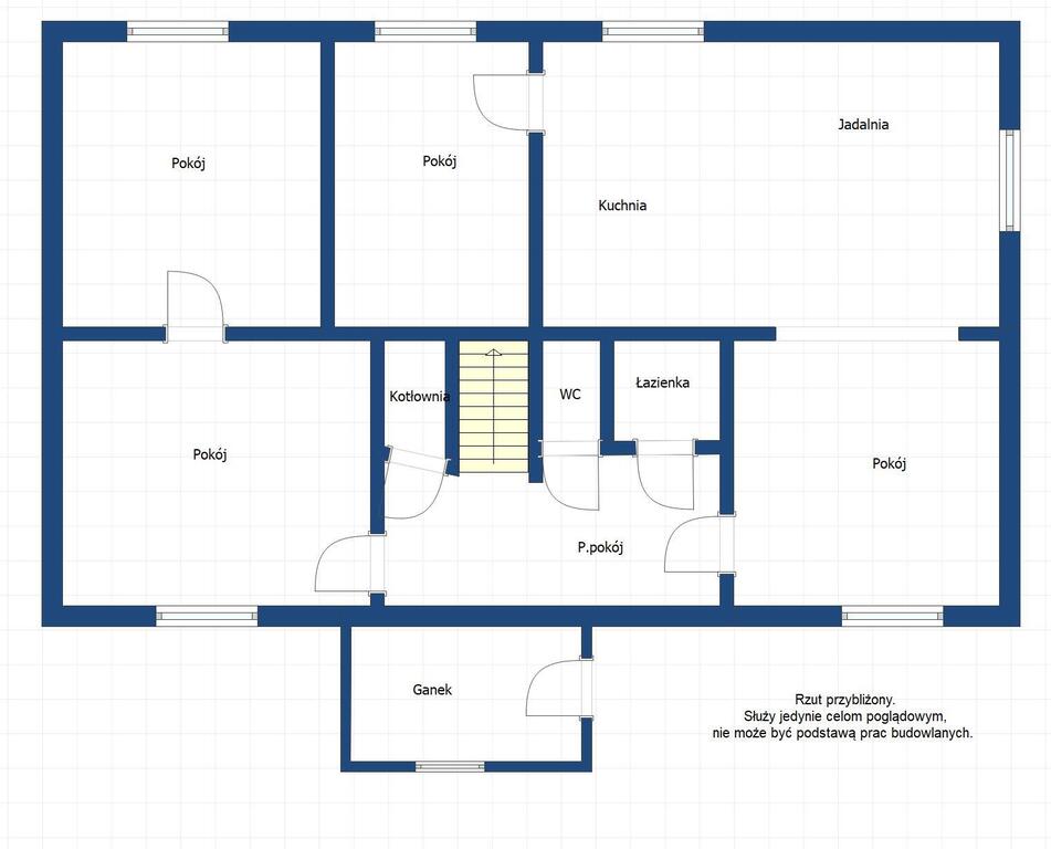
W skład budynku wchodzą pomieszczenia:
  • 5 pokoi
  • kuchnia z jadalnią i częścią wypoczynkową
  • 3 łazienki
  • 1 WC
  • kotłownia wyposażona w piec na ekogroszek z podajnikiem.
  • komunikacja (korytarz i schody).
Powierzchnia użytkowa budynku: 160 m2.
Media: instalacja elektryczna, ogrzewanie centralne z grzejnikami panelowymi, woda z sieci gminnej, zbiornik bezodpływowy na nieczystości.
ATUTY NIERUCHOMOŚCI
  • duża działka z altaną i drewutnią, dająca swobodę zagospodarowania (ogród, rekreacja, hodowla, zabudowa towarzysząca),
  • spokojna lokalizacja, idealna dla osób ceniących ciszę i prywatność,
  • układ pomieszczeń pozwalający na prowadzenie działalności noclegowej,
  • dostęp do pełnej infrastruktury wewnętrznej (łazienki, kuchnia, ogrzewanie).

Błudowo to spokojna miejscowość położona w gminie Młynary, otoczona polami i lasami. To idealne miejsce dla osób szukających harmonii, naturalnego krajobrazu i komfortowej odległości od miejskiego zgiełku, z jednoczesnym dobrym dojazdem do Elbląga, Pasłęka, Braniewa i Młynar.

Takie oferty długo nie czekają — zadzwoń i umów się na prezentację, zanim ktoś Cię ubiegnie!
Zapraszam!
Agnieszka Zgórzyńska
Północ Nieruchomości
tel. 500 55 88 81

Nie masz wkładu własnego? To nie problem!
Kupno mieszkania to ważna decyzja – dlatego oferujemy kompleksowe wsparcie nie tylko przy zakupie, ale również przy finansowaniu.
Współpracujemy z doświadczonym doradcą finansowym, który:

  • bezpłatnie przeanalizuje Twoją sytuację,
  • pomoże dobrać najkorzystniejszy kredyt hipoteczny,
  • przedstawi oferty z wielu banków,
  • znajdzie rozwiązanie nawet bez wkładu własnego – w ramach dostępnych programów i możliwości finansowych.
Dzięki temu możesz szybciej wprowadzić się do własnego M, niż myślisz!
Skontaktuj się z nami – pomożemy Ci przejść przez cały proces zakupu sprawnie i bez stresu.

Przy zakupie należy uwzględnić dodatkowe koszty związane z zakupem nieruchomości, obejmujące opłaty notarialne i wynagrodzenie biura nieruchomości w wysokości 1,5% ceny transakcyjnej.

Niniejsze ogłoszenie nie stanowi oferty w rozumieniu Kodeksu Cywilnego, lecz ma charakter informacyjny.

Przedstawione wizualizacje i grafiki mają charakter wyłącznie poglądowy i stanowią wyłącznie materiał pomocniczy, ułatwiający zorientowanie się w ogólnym wyglądzie oferowanej nieruchomości.

Niniejsze ogłoszenie wraz z jego elementami jest własnością Północ Nieruchomości Sp z o.o. lub podmiotu współpracującego. Wszelkie prawa zastrzeżone. Kopiowanie, rozpowszechnianie oraz korzystanie z niniejszych materiałów w jakikolwiek inny sposób wykraczający poza dozwolony użytek określony przepisami ustawy z 4 lutego 1994 r. o prawie autorskim i prawach pokrewnych (Dz. U. 1994, nr 24 poz. 83 z późn. zm.) bez pisemnej zgody Północ Nieruchomości Sp z o.o. lub podmiotów współpracujących jest zabronione i może stanowić podstawę odpowiedzialności cywilnej oraz karnej.

Niniejsze materiały stanowią tajemnicę przedsiębiorstwa PÓŁNOC NIERUCHOMOŚCI Sp. z o.o. w rozumieniu ustawy z dnia 16 kwietnia 1993 r. o zwalczaniu nieuczciwej konkurencji (Dz. U. z 2003 r., Nr 153, poz. 1503 z późn. zm.).

Mapa

Zapytaj o tę ofertę

Lub zadzwoń