CO SPRZEDAJEMY?Dom wolnostojący o powierzchni użytkowej ok.
81,1 m², położony na dużej, ogrodzonej działce o powierzchni
14 ar (1400 m²).
Nieruchomość z potencjałem do dalszego rozwoju – istnieje możliwość adaptacji poddasza na cele mieszkalne. Dom idealny dla rodziny, jak również dla osób poszukujących przestrzeni pod działalność lub warsztat.
GDZIE ZNAJDUJE SIĘ NIERUCHOMOŚĆ? Dom zlokalizowany jest w miejscowości Kotowice – w spokojnej okolicy, z zabudową mieszkaniową i dużą ilością zieleni. Lokalizacja zapewnia ciszę oraz prywatność.
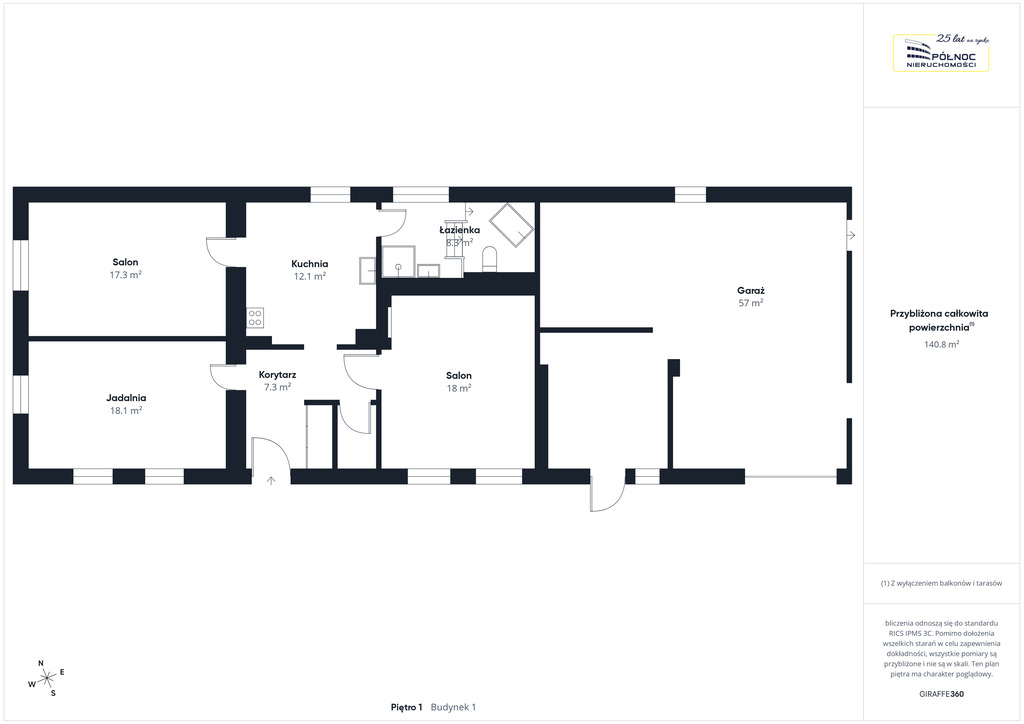
Z JAKICH POMIESZCZEŃ SKŁADA SIĘ DOM?- jadalnia – 18,1 m²,
- pokój – 17,3 m²,
- pokój – 18,0 m²,
- kuchnia – 12,1 m²,
- łazienka – 8,3 m²,
- przedpokój – 7,3 m²,
- poddasze – możliwość adaptacji na dodatkową powierzchnię mieszkalną.
JAKIE SĄ MEDIA?:- prąd, woda z wodociągu miejskiego,
- szambo (z możliwością podłączenia do kanalizacji miejskiej, infrastruktura doprowadzona kilka miesięcy temu),
- dodatkowo na działce: studnia głębinowa,
- ogrzewanie: ekogroszek, podgrzewanie wody: bojler.
FUNKCJONALNOŚĆ I STANDARD: - powierzchnia użytkowa: ok. 81,1 m²,
- remont kuchni w 2017 r.,
- umeblowanie: do uzgodnienia,
- dach wymieniony w 2009 r. – dachówka ceramiczna,
- strop ocieplony wełną mineralną,
- wymieniona w całości instalacja elektryczna oraz wodno-kanalizacyjna,
- dom ocieplony i otynkowany,
- ogrzewanie: piec na ekogroszek,
- podgrzewanie wody: bojler,
- garaż w bryle budynku,
- dom częściowo podpiwniczony,
- niewielki taras przed wejściem – wykonany niedawno.
DZIAŁKA I OTOCZENIE
- teren ogrodzony,
- na działce znajduje się budynek gospodarczy oraz stodoła – idealne rozwiązanie dla osób poszukujących miejsca pod warsztat, działalność lub magazyn,
- na końcu działki teren zagospodarowany pod ogródek warzywny.
Nieruchomość znajduje się w niewielkiej, spokojnej wsi
Kotowice, która charakteryzuje się ciszą, kameralną zabudową oraz przyjaznym otoczeniem. Miejscowość położona jest w dogodnej odległości od większych miast: ok. 17 km od Głogowa, 14 km od Rudnej, 30 km od Lubina, 4 km od Trzęsowa oraz 8 km od Pęcławia.
Lokalizacja ta łączy komfort życia w spokojnej okolicy z dobrym dojazdem do okolicznych miejscowościUmów się na prezentację i poznaj potencjał tej nieruchomości na żywo.
Prezentacja nieruchomości wiąże się z okazaniem danych osobowych Oglądających oraz pokwitowania udostępnienia adresu prezentowanej nieruchomości na "potwierdzeniu wskazania adresu (udostępnieniu adresu)".
Przy zakupie nieruchomości należy wziąć pod uwagę koszty podatku PCC- 2%, opłaty sądowe, notarialne oraz wynagrodzenie pośrednika.
OFERUJEMY :- bezpieczny obrót prawny nieruchomości,
- kompleksową obsługę klienta,
- uczestniczymy w negocjacjach cenowych,
- współpracę z ekspertem kredytowym oraz obsługę w zakresie doboru optymalnej oferty kredytowej,
- pomoc w kompletowaniu dokumentów niezbędnych do zawarcia umowy notarialnej,
- współpracę z kancelariami notarialnymi.
Jeśli są Państwo zainteresowani ofertą, proszę o kontakt i umówienie się na prezentację.
Natalia SabatDoradca ds. nieruchomościtel komórkowy:
797-333-591e-mail:
nsabat@polnoc.pl
PÓŁNOC Nieruchomości Głogówul. Grodzka 7
67-200 Głogów
Niniejsze ogłoszenie nie stanowi oferty w rozumieniu Kodeksu Cywilnego, lecz ma charakter informacyjny.
Przedstawione wizualizacje i grafiki mają charakter wyłącznie poglądowy i stanowią wyłącznie materiał pomocniczy, ułatwiający zorientowanie się w ogólnym wyglądzie oferowanej nieruchomości.
Niniejsze ogłoszenie wraz z jego elementami jest własnością Północ Nieruchomości Sp z o.o. lub podmiotu współpracującego. Wszelkie prawa zastrzeżone. Kopiowanie, rozpowszechnianie oraz korzystanie z niniejszych materiałów w jakikolwiek inny sposób wykraczający poza dozwolony użytek określony przepisami ustawy z 4 lutego 1994 r. o prawie autorskim i prawach pokrewnych (Dz. U. 1994, nr 24 poz. 83 z późn. zm.) bez pisemnej zgody Północ Nieruchomości Sp z o.o. lub podmiotów współpracujących jest zabronione i może stanowić podstawę odpowiedzialności cywilnej oraz karnej.
Niniejsze materiały stanowią tajemnicę przedsiębiorstwa PÓŁNOC NIERUCHOMOŚCI Sp. z o.o. w rozumieniu ustawy z dnia 16 kwietnia 1993 r. o zwalczaniu nieuczciwej konkurencji (Dz. U. z 2003 r., Nr 153, poz. 1503 z późn. zm.).
Niniejsze ogłoszenie nie stanowi oferty w rozumieniu Kodeksu Cywilnego, lecz ma charakter informacyjny.
Przedstawione wizualizacje i grafiki mają charakter wyłącznie poglądowy i stanowią wyłącznie materiał pomocniczy, ułatwiający zorientowanie się w ogólnym wyglądzie oferowanej nieruchomości.
Niniejsze ogłoszenie wraz z jego elementami jest własnością Północ Nieruchomości Sp z o.o. lub podmiotu współpracującego. Wszelkie prawa zastrzeżone. Kopiowanie, rozpowszechnianie oraz korzystanie z niniejszych materiałów w jakikolwiek inny sposób wykraczający poza dozwolony użytek określony przepisami ustawy z 4 lutego 1994 r. o prawie autorskim i prawach pokrewnych (Dz. U. 1994, nr 24 poz. 83 z późn. zm.) bez pisemnej zgody Północ Nieruchomości Sp z o.o. lub podmiotów współpracujących jest zabronione i może stanowić podstawę odpowiedzialności cywilnej oraz karnej.
Niniejsze materiały stanowią tajemnicę przedsiębiorstwa PÓŁNOC NIERUCHOMOŚCI Sp. z o.o. w rozumieniu ustawy z dnia 16 kwietnia 1993 r. o zwalczaniu nieuczciwej konkurencji (Dz. U. z 2003 r., Nr 153, poz. 1503 z późn. zm.).