Kontakt
Nr oferty: 44603/3877/ODS

Dom- segment środkowy, Konstantynów

Konstantynów zobacz na mapie

950 000 PLN

Szczegóły oferty

Cena:
950 000,00 zł
Powierzchnia:
216,00 m2
Cena za m2:
4 398,15 zł
Powierzchnia użytkowa:
163,06 m2
Powierzchnia działki:
175,00 m2
Rok budowy:
1983
Liczba pięter:
2
Liczba pokoi:
9
Stan budynku:
Dobry
Typ domu:
Segment środkowy
Gaz:
tak
Piwnica:
tak
Ciepła woda:
tak
Id oferty:
44603/3877/ODS

Opis

Sprzedam dom w zabudowie szeregowej o powierzchni 163 m2 (216 m2 powierzchni całkowitej) położony na ul. Romanowskiego w dzielnicy Konstantynów.

Budynek murowany z 1983 roku, ocieplony styropianem. Dach kryty blachą.
Dom jest bardzo zadbany, wszystkie naprawy robione są na bieżąco.
Cała instalacja elektryczna została wymieniona w 2018 roku.
W pokojach zrobione gładzie.
Łazienka na drugim piętrze jest po remoncie.
W 2019 roku został wymieniony zasobnik na wodę, a w 2025 roku piec dwufunkcyjny gazowy.

Rozkład pomieszczeń:

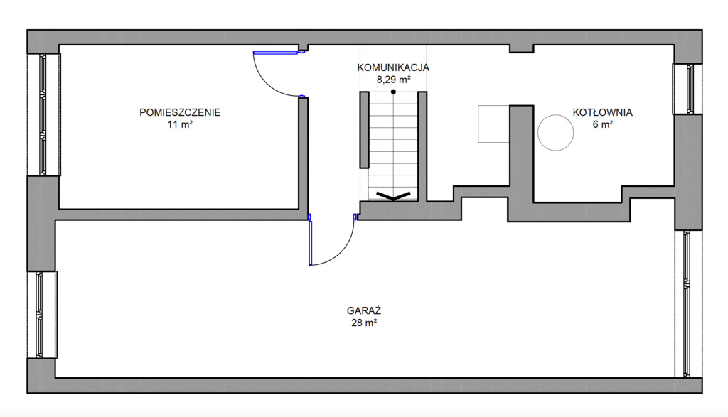
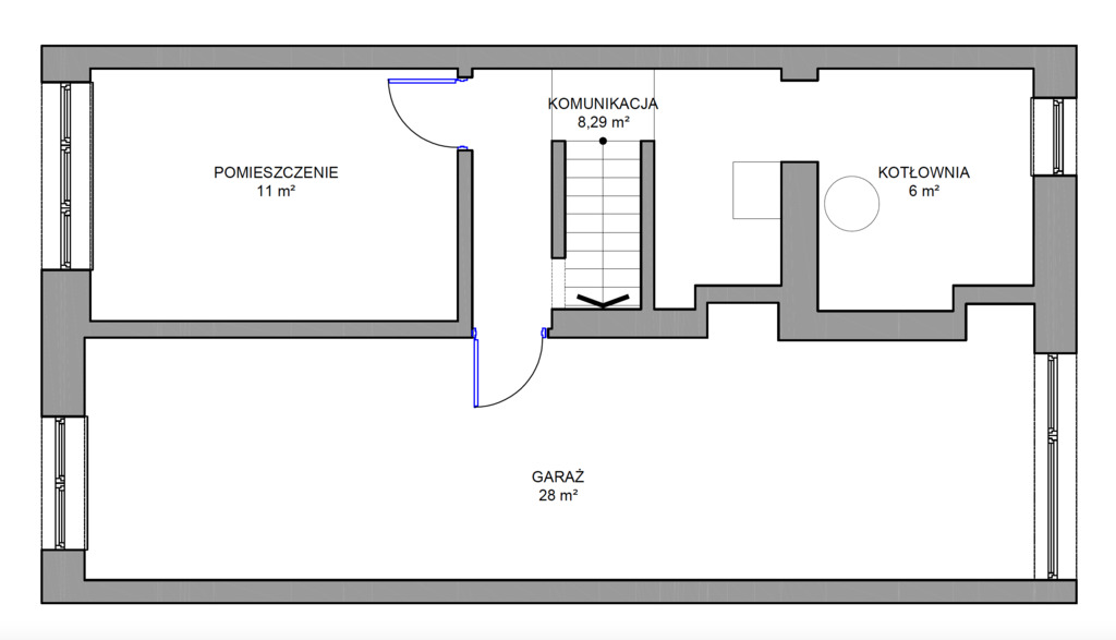
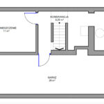
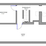
PIWNICA
- GARAŻ Z KANAŁEM 28 m2 (2 stanowiska jedno za drugim);
- POMIESZCZENIE GOSPODARCZE 11 m2;
- KOTŁOWNIA 6 m2;
- KOMUNIKACJA I SCHODY 8,29 m2;

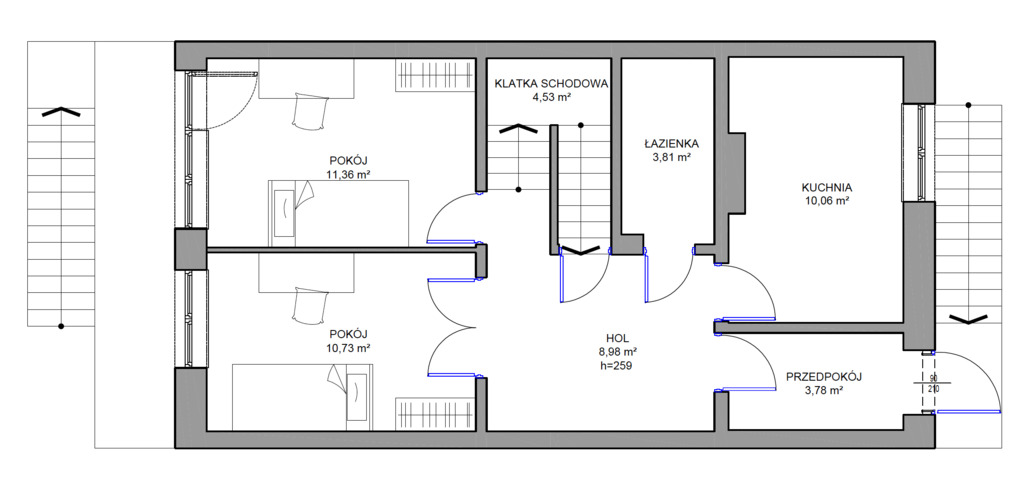
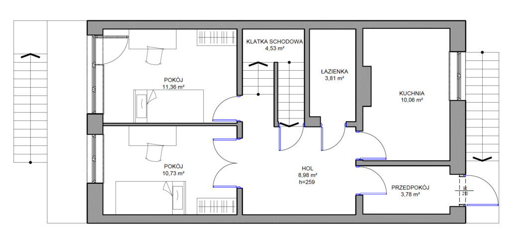
PARTER
- 2 POKOJE 11,36 m2 i 10,73 m2(obecnie oddzielone jedynie lekką konstrukcją- ścianką działową, w przeszłości całe pomieszczenie pełniło funkcję salonu)
- KUCHNIA 10,06 m2;
- ŁAZIENKA 3,81 m2;
- HOL 8,98 m2;
- SCHODY 4,53 m2;
- WIATROŁAP 3,78 m2:

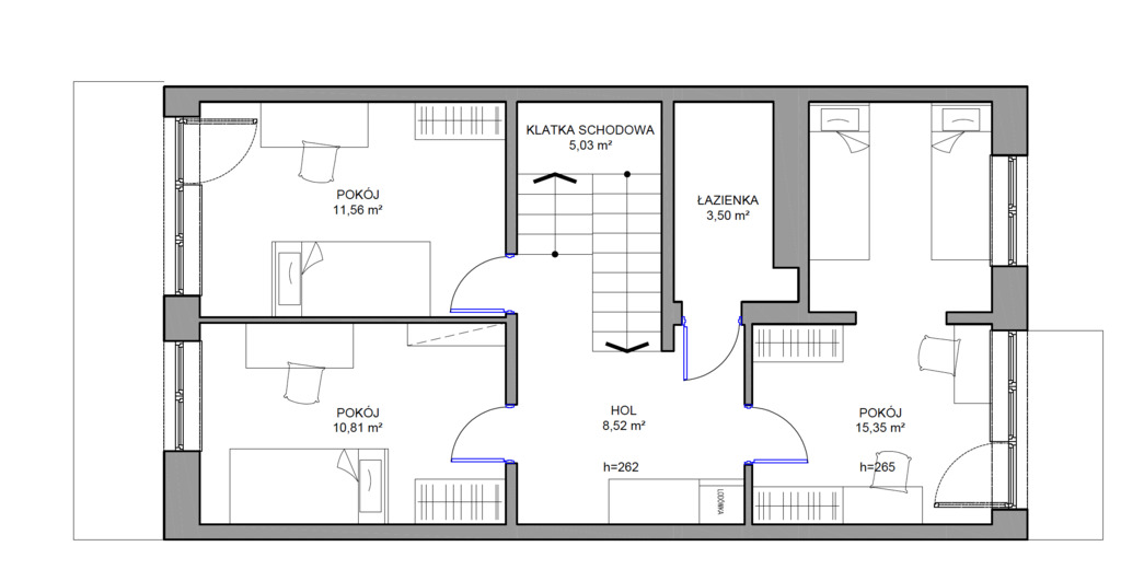
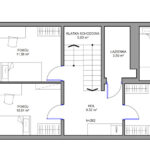
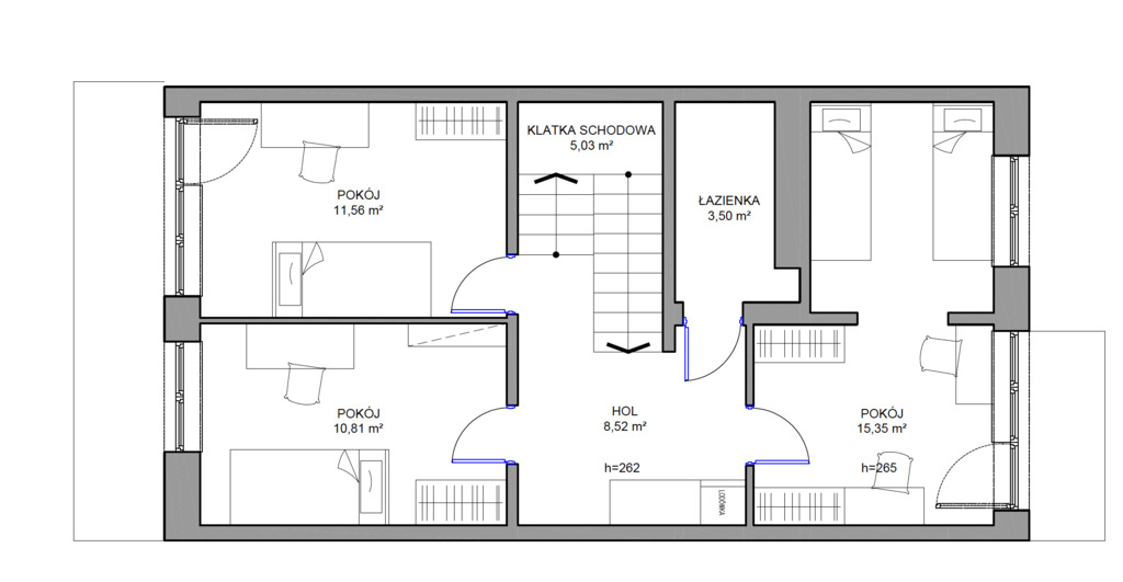
I PIĘTRO
- 3 POKOJE 11,56 m2, 10,81 m2, 15,35 m2
- ŁAZIENKA 3,50 m2;
- HOL 8,52 m2;
- SCHODY 5,03 m2;

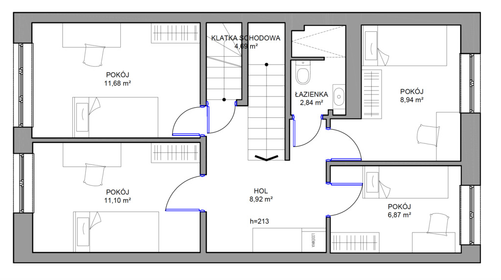
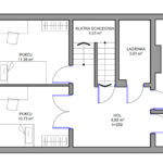
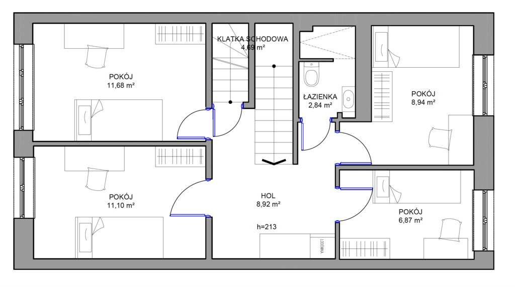
II PIĘTRO
- 4 POKOJE 11,68 m2, 11,10 m2, 8,94 m2, 6,87 m2;
- ŁAZIENKA 2,84 m2;
- HOL 8,92 m2;
- SCHODY 4,69 m2;

Obecnie nieruchomość jest wynajmowana na pokoje, co jest świetną inwestycją.
Wysoka stopa zwrotu.

Jeśli szukasz domu do zamieszkania, przy niewielkim wkładzie finansowym i nakładzie prac, można przystosować układ domu dla rodziny.

Nieruchomość położona na spokojnym osiedlu domów jednorodzinnych.
Dzielnica zapewnia bogatą infrastrukturę. W okolicy mnóstwo sklepów i lokali usługowych, szkoły, przedszkola, szpital.
W pobliżu znajdują się akademiki KUL oraz wydziały tej uczelni.
Przystanek MPK w zasięgu kilku minut piechotą.


Niniejsze ogłoszenie nie stanowi oferty w rozumieniu Kodeksu Cywilnego, lecz ma charakter informacyjny.

Przedstawione wizualizacje i grafiki mają charakter wyłącznie poglądowy i stanowią wyłącznie materiał pomocniczy, ułatwiający zorientowanie się w ogólnym wyglądzie oferowanej nieruchomości.

Niniejsze ogłoszenie wraz z jego elementami jest własnością Północ Nieruchomości Sp z o.o. lub podmiotu współpracującego. Wszelkie prawa zastrzeżone. Kopiowanie, rozpowszechnianie oraz korzystanie z niniejszych materiałów w jakikolwiek inny sposób wykraczający poza dozwolony użytek określony przepisami ustawy z 4 lutego 1994 r. o prawie autorskim i prawach pokrewnych (Dz. U. 1994, nr 24 poz. 83 z późn. zm.) bez pisemnej zgody Północ Nieruchomości Sp z o.o. lub podmiotów współpracujących jest zabronione i może stanowić podstawę odpowiedzialności cywilnej oraz karnej.

Niniejsze materiały stanowią tajemnicę przedsiębiorstwa PÓŁNOC NIERUCHOMOŚCI Sp. z o.o. w rozumieniu ustawy z dnia 16 kwietnia 1993 r. o zwalczaniu nieuczciwej konkurencji (Dz. U. z 2003 r., Nr 153, poz. 1503 z późn. zm.).

Mapa

Zapytaj o tę ofertę

Lub zadzwoń