Kontakt
Nr oferty: 44592/3877/ODS

NOWOCZESNY DOM W ZABUDOWIE BLIŻNIACZEJ Z GARAŻEM.

Nowy Krępiec zobacz na mapie

749 000 PLN

Szczegóły oferty

Cena:
749 000,00 zł
Powierzchnia:
108,56 m2
Cena za m2:
6 899,41 zł
Powierzchnia działki:
380,00 m2
Rok budowy:
2025
Liczba pięter:
1
Liczba pokoi:
5
Stan budynku:
Stan deweloperski
Typ domu:
Bliźniak
Prąd:
tak
Gaz:
tak
Id oferty:
44592/3877/ODS

Opis

Na sprzedaż nowoczesny dom w zabudowie bliźniaczej, położony w spokojnej i zielonej okolicy pod Świdnikiem - w miejscowości Nowy Krępiec. Nieruchomość usytuowana na działce o powierzchni ok. 380 m2 z bezpośrednim wjazdem z asfaltowej drogi gminnej. Dom realizowany według projektu `Dom w Murajach` (Archon) - to nowoczesny, funkcjonalny, 5-pokojowy budynek o powierzchni 108,56 m2 z garażem jednostanowiskowym (18,54m2) oraz przestronnym ogrodem.
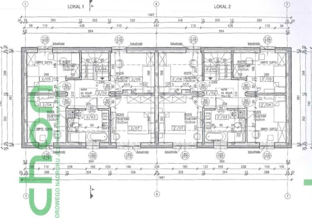
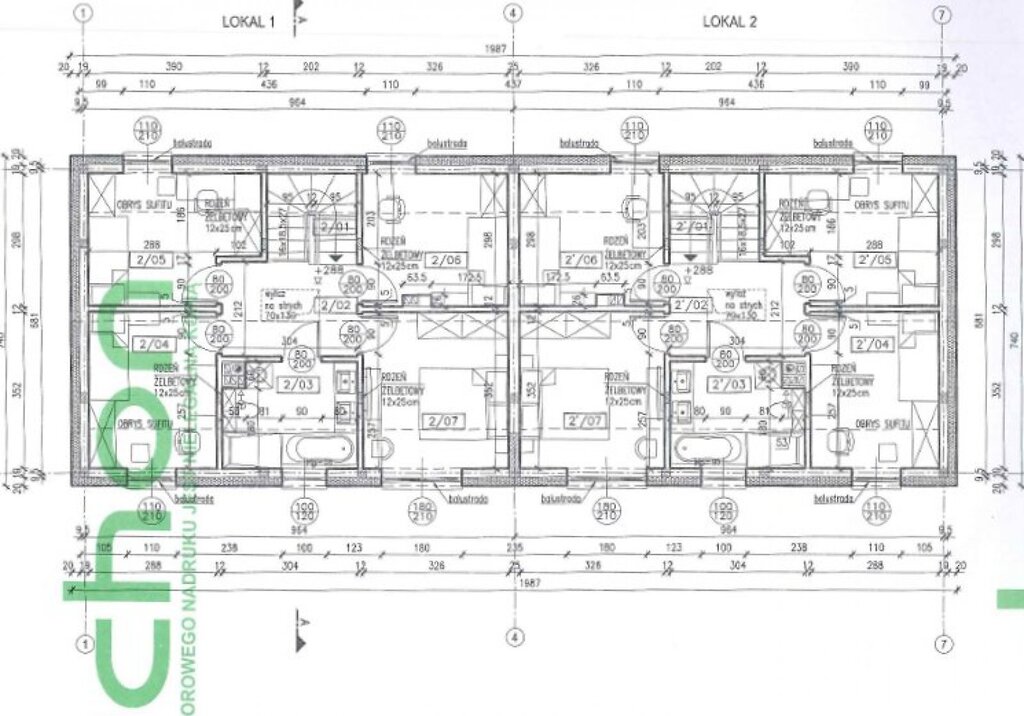
UKŁAD POMIESZCZEŃ:
PARTER - 50,95 m2:
- przestronny salon z jadalnią, otwarty na ogród i taras,
- jasna kuchnia z przyległą spiżarnią,
- toaleta pod schodami,
- wiatrołap z bezpośrednim wejściem do garażu.
PIĘTRO - 57,61 m2:
- 4 dobrze doświetlone sypialnie,
- komfortowa łazienka z miejscem na wannę i prysznic,
- brak skosów dzięki wysokiej ściance kolankowej - pełna funkcjonalność pomieszczeń.
NAJWAŻNIEJSZE ATUTY:
- Doskonała lokalizacja: tylko 5 min do centrum Świdnika, 10 min do Lublina (S17).
- Brak czynszu i niskie koszty eksploatacji - media dużo tańsze niż w mieście.
- Nowoczesne technologie .
- Bezpieczeństwo: drzwi antywłamaniowe, brama garażowa na pilota, instalacja alarmowa i wideodomofon.
- Pełne media: prąd, gaz, woda z sieci, szambo.
- Ogród z potencjałem - idealne miejsce na altanę, wiatę czy plac zabaw.
- Duże, trzyszybowe okna PCV i przeszklone drzwi tarasowe - dużo naturalnego światła.
- Dojazd asfaltowy oraz utwardzony, szybki dostęp do MParku, ścieżki rowerowe, nowa infrastruktura drogowa w okolicy.
INFORMACJE TECHNICZNE:
- Rodzaj zabudowy: bliźniak
- Materiał budowy: beton komórkowy
- Dach: skośny, pokrycie dachówką
- Ogrzewanie: gazowe
- Okna: plastikowe, trzyszybowe
- Ogrodzenie: metalowe
- Stan: deweloperski (do wykończenia wg własnego gustu)
LOKALIZACJA:
Nowy Krępiec - 5 min do Świdnika -10 min do Lublina (S17 - zjazd przy ul. Kusocińskiego)
Blisko: sklepy, szkoły, centrum handlowe MPark, ścieżki rowerowe.
Zainteresowanych zapraszam do kontaktu telefonicznego w celu uzyskania szczegółowych informacji oraz umówienia się na prezentację
Dawid Tołysz
690-470- 275

Niniejsze ogłoszenie nie stanowi oferty w rozumieniu Kodeksu Cywilnego, lecz ma charakter informacyjny.

Przedstawione wizualizacje i grafiki mają charakter wyłącznie poglądowy i stanowią wyłącznie materiał pomocniczy, ułatwiający zorientowanie się w ogólnym wyglądzie oferowanej nieruchomości.

Niniejsze ogłoszenie wraz z jego elementami jest własnością Północ Nieruchomości Sp z o.o. lub podmiotu współpracującego. Wszelkie prawa zastrzeżone. Kopiowanie, rozpowszechnianie oraz korzystanie z niniejszych materiałów w jakikolwiek inny sposób wykraczający poza dozwolony użytek określony przepisami ustawy z 4 lutego 1994 r. o prawie autorskim i prawach pokrewnych (Dz. U. 1994, nr 24 poz. 83 z późn. zm.) bez pisemnej zgody Północ Nieruchomości Sp z o.o. lub podmiotów współpracujących jest zabronione i może stanowić podstawę odpowiedzialności cywilnej oraz karnej.

Niniejsze materiały stanowią tajemnicę przedsiębiorstwa PÓŁNOC NIERUCHOMOŚCI Sp. z o.o. w rozumieniu ustawy z dnia 16 kwietnia 1993 r. o zwalczaniu nieuczciwej konkurencji (Dz. U. z 2003 r., Nr 153, poz. 1503 z późn. zm.).

Mapa

Zapytaj o tę ofertę

Lub zadzwoń