Kontakt
Nr oferty: 42927/3877/ODS

Dom z działką 27a ! - Przechód

Przechód zobacz na mapie

155 000 PLN

Szczegóły oferty

Cena:
155 000,00 zł
Powierzchnia:
185,00 m2
Cena za m2:
837,84 zł
Powierzchnia użytkowa:
185,00 m2
Powierzchnia działki:
2 700,00 m2
Rok budowy:
1965
Liczba pięter:
1
Liczba pokoi:
2
Stan budynku:
Surowy otwarty
Typ domu:
Wolnostojący
Id oferty:
42927/3877/ODS

Opis

Na sprzedaż dom 185 m² wraz z ogromnym podwórkiem 2700 i budynkami gospodarczymi.

Nieruchomość położona jest w miejscowości Przechód, województwie lubelskim, w powiecie bialskim, w gminie Sosnówka.

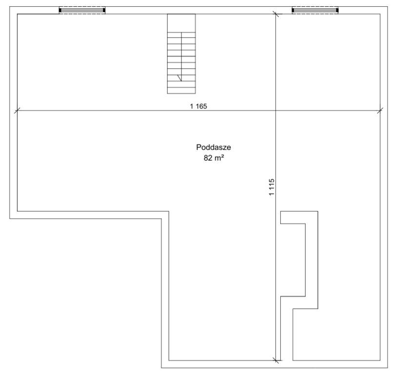
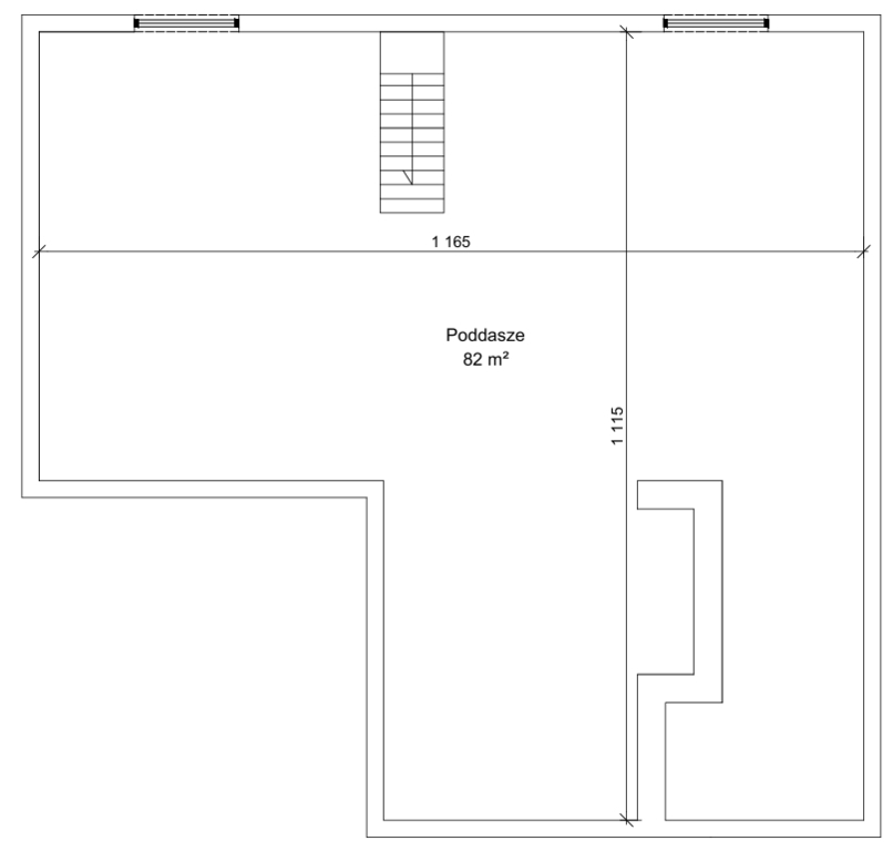
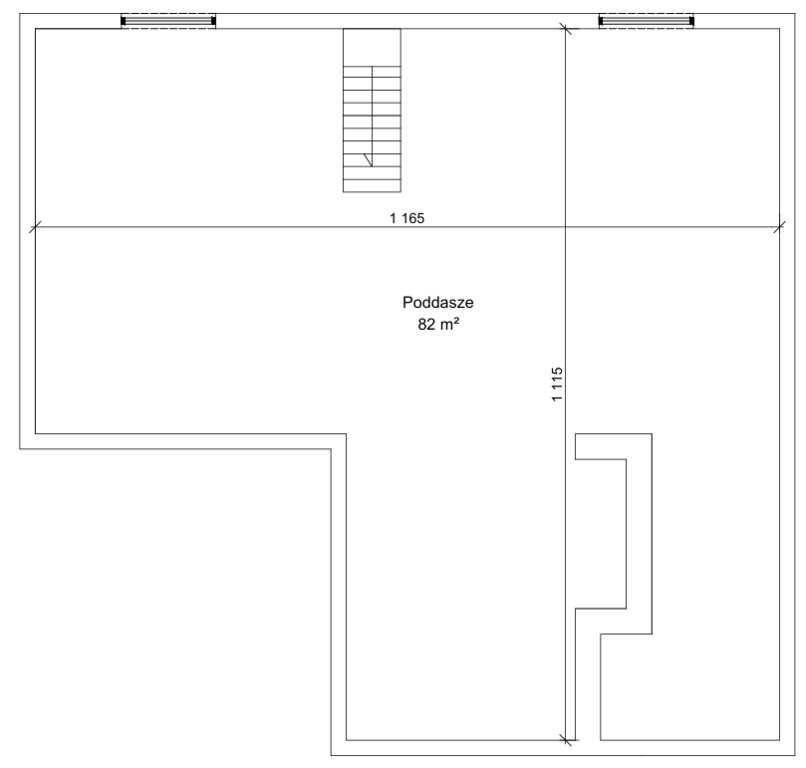
Dom jest w stanie surowym po rozbudowie z roku 2019, co daje możliwość stworzenia wymarzonego wnętrza według własnego gustu i potrzeb. Została stworzona nowa więźba i pokrycie dachu, dzięki czemu jest możliwość aranżacji poddasza.

Nieruchomość tworzy działka nr 343 o powierzchni 2700z domem oraz budynkami gospodarczymi. Według MPZP działka przeznaczona jest pod zabudowę mieszkaniową oraz tereny rolne (MR).

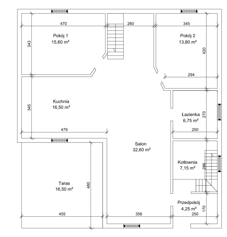
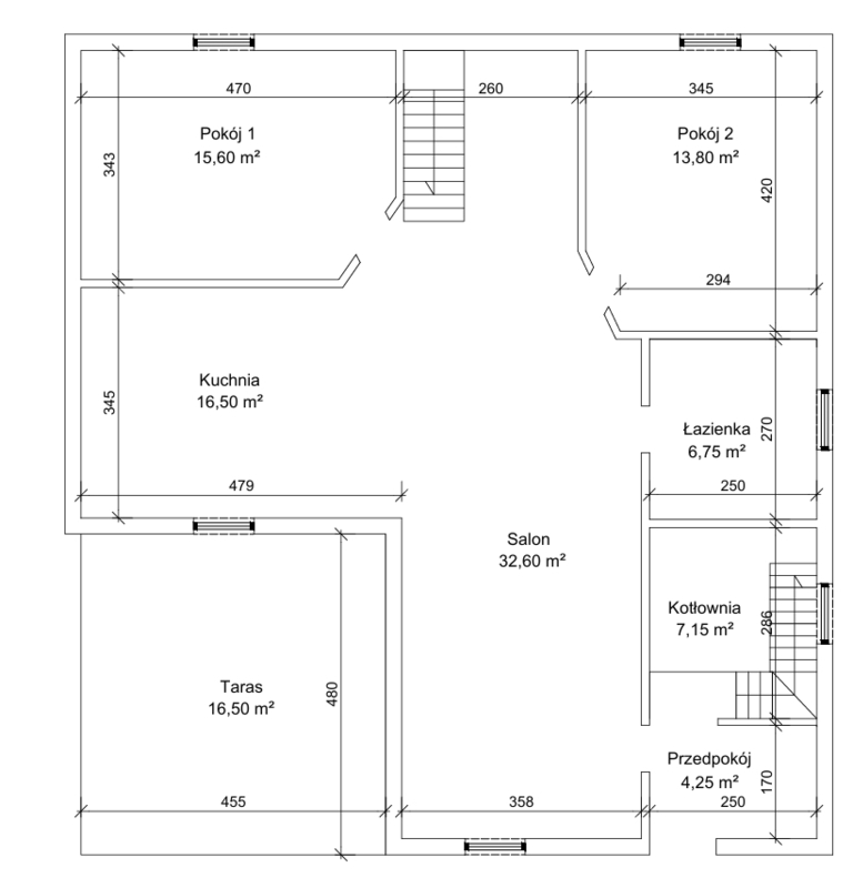
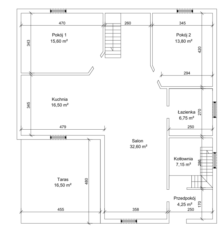
Dom składa się z :
2 pokoi,
łazienki,
ogromnej otwartej przestrzeni na stworzenie salonu i kuchni,
kotłowni
niewielkiej piwnicy przeznaczonej na opał oraz poddasze.
Atutem domu jest duży taras o powierzchni 16 m². Dodatkowo na działce znajdują się budynki gospodarcze oraz studnia. Budynek składa się z przestronnych pomieszczeń, a duża działka wokół domu zapewnia dodatkowe możliwości rozbudowy lub zagospodarowania.

Media: wodociąg, prąd (+siła), studnia na działce, światłowód.

Lokalizacja pozwala na łatwy dostęp do większych miejscowości:
Wisznice – około 15 km, Łomazy – około 20 km, Biała Podlaska – około 35 km. Dzięki temu istnieje łatwy dostęp do szerszej infrastruktury, jak sklepy, szkoły, czy urzędy.

Cena: 155 000zł


Zapraszam na prezentację.

Pomagamy w formalnościach związanych z uzyskaniem kredytu na zakup nieruchomości.
Nasz doradca kredytowy bezpłatnie pomoże Ci sprawdzić zdolność kredytową i przedstawi najkorzystniejszą ofertę z ponad 10 banków!

Posiadasz podobną nieruchomość?
Zadzwoń i skorzystaj z bezpłatnej konsultacji, gdzie odpowiem na pytania dotyczące Twojej nieruchomości, jej ceny oraz procesu sprzedaży.

Nie zwlekaj, zadzwoń już teraz!


Mateusz Szymczuk
Doradca ds. nieruchomości
tel. 885 851 160
e-mail: mszymczuk@polnoc.pl
Północ Nieruchomości oddział Biała Podlaska


Niniejsze ogłoszenie nie stanowi oferty w rozumieniu Kodeksu Cywilnego, lecz ma charakter informacyjny.

Przedstawione wizualizacje i grafiki mają charakter wyłącznie poglądowy i stanowią wyłącznie materiał pomocniczy, ułatwiający zorientowanie się w ogólnym wyglądzie oferowanej nieruchomości.

Niniejsze ogłoszenie wraz z jego elementami jest własnością Północ Nieruchomości Sp z o.o. lub podmiotu współpracującego. Wszelkie prawa zastrzeżone. Kopiowanie, rozpowszechnianie oraz korzystanie z niniejszych materiałów w jakikolwiek inny sposób wykraczający poza dozwolony użytek określony przepisami ustawy z 4 lutego 1994 r. o prawie autorskim i prawach pokrewnych (Dz. U. 1994, nr 24 poz. 83 z późn. zm.) bez pisemnej zgody Północ Nieruchomości Sp z o.o. lub podmiotów współpracujących jest zabronione i może stanowić podstawę odpowiedzialności cywilnej oraz karnej.

Niniejsze materiały stanowią tajemnicę przedsiębiorstwa PÓŁNOC NIERUCHOMOŚCI Sp. z o.o. w rozumieniu ustawy z dnia 16 kwietnia 1993 r. o zwalczaniu nieuczciwej konkurencji (Dz. U. z 2003 r., Nr 153, poz. 1503 z późn. zm.).

Mapa

Zapytaj o tę ofertę

Lub zadzwoń