Kontakt
Nr oferty: 44680/3877/ODS

wygodny dom 100m od jeziora w Rokitkach!

Rokitki zobacz na mapie

1 100 000 PLN

Szczegóły oferty

Cena:
1 100 000,00 zł
Powierzchnia:
158,70 m2
Cena za m2:
69,31 zł
Powierzchnia użytkowa:
139,60 m2
Powierzchnia działki:
10,56 m2
Rok budowy:
2012
Liczba pięter:
1
Liczba pokoi:
5
Stan budynku:
Bardzo dobry
Typ domu:
Wolnostojący
Ciepła woda:
tak
Id oferty:
44680/3877/ODS

Opis

Na sprzedaż komfortowy dom wolnostojący z garażem o powierzchni 158,7m2 zlokalizowany około 100 m od jeziora w Rokitkach.
+ wyjątkowa okolica o dobrym dla zdrowia mikroklimacie
+ sąsiedztwo licznych jezior otoczonych lasami sosnowymi
+ dobry dojazd do Chojnowa oraz Lubina
+ 5min pieszo-przystanek PKP- możliwość dojazdu do Legnicy/Wrocławia/Zgorzelca...
+ Dom urządzony w stonowanej kolorystyce.
+ w cenie meble w zabudowie kuchni, garderoby, szafy wnękowe.
+ drzwi wewnętrzne PORTA
+ brama wjazdowa i drzwi garażowe elektryczne na pilota
+ elegancki kominek
+ reprezentacyjny brukowany podjazd
+ nad tarasem markiza zacieniająca

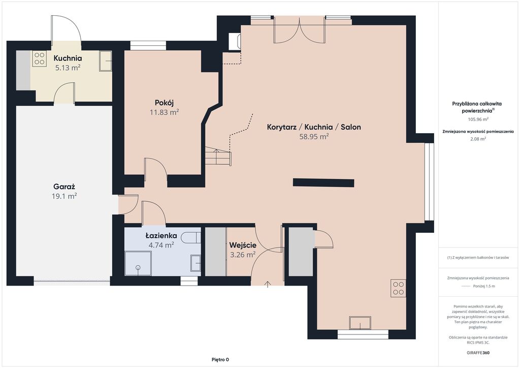
PARTER
- wiatrołap z dużą szafą wnękową
- salon z wyjściem na taras
- częściowo wydzielona kuchnia + spiżarnia
- łazienka z prysznicem
- pokój gościnny
+ garaż
+ kuchnia letnia

PODDASZE
- korytarz z wydzieloną strefą rekreacyjną
- sypialnia z balkonem (widok na jezioro)
- garderoba
- pokój z balkonem
- pokój z garderobą
- przestronna łazienka z prysznicem oraz wanną

Na parterze ogrzewanie jest podłogowe, na piętrze znajdują się grzejniki. 
Ogrzewanie budynku oraz ciepła woda pochodzą z dwufunkcyjnego pieca gazowego. Gaz pochodzi z butli gazowej zlokalizowanej na terenie działki.
Elegancki kominek w salonie ma rozprowadzenie powietrza dzięki czemu może z powodzeniem również być wykorzystywany do ogrzewania domu.
W drodze dojazdowej planowane jest położenie światłowodu.
Na działce znajduje się studnia głębinowa - pobór darmowej wody do celów gospodarczych/ podlewanie ogrodu.


Serdecznie zapraszam na prezentację oferty
PÓŁNOC NIERUCHOMOŚCI
Legnica, ul. Środkowa 22
tel. 601916919

Niniejsze ogłoszenie nie stanowi oferty w rozumieniu Kodeksu Cywilnego, lecz ma charakter informacyjny.

Przedstawione wizualizacje i grafiki mają charakter wyłącznie poglądowy i stanowią wyłącznie materiał pomocniczy, ułatwiający zorientowanie się w ogólnym wyglądzie oferowanej nieruchomości.

Niniejsze ogłoszenie wraz z jego elementami jest własnością Północ Nieruchomości Sp z o.o. lub podmiotu współpracującego. Wszelkie prawa zastrzeżone. Kopiowanie, rozpowszechnianie oraz korzystanie z niniejszych materiałów w jakikolwiek inny sposób wykraczający poza dozwolony użytek określony przepisami ustawy z 4 lutego 1994 r. o prawie autorskim i prawach pokrewnych (Dz. U. 1994, nr 24 poz. 83 z późn. zm.) bez pisemnej zgody Północ Nieruchomości Sp z o.o. lub podmiotów współpracujących jest zabronione i może stanowić podstawę odpowiedzialności cywilnej oraz karnej.

Niniejsze materiały stanowią tajemnicę przedsiębiorstwa PÓŁNOC NIERUCHOMOŚCI Sp. z o.o. w rozumieniu ustawy z dnia 16 kwietnia 1993 r. o zwalczaniu nieuczciwej konkurencji (Dz. U. z 2003 r., Nr 153, poz. 1503 z późn. zm.).

Mapa

Zapytaj o tę ofertę

Lub zadzwoń