Kontakt
Nr oferty: 43712/3877/ODS

Nowoczesny dom jednorodzinny – Klembów, Sitki

Sitki, ul. Piaskowa zobacz na mapie

750 000 PLN

Szczegóły oferty

Cena:
750 000,00 zł
Powierzchnia:
134,00 m2
Cena za m2:
5 447,76 zł
Powierzchnia użytkowa:
102,85 m2
Powierzchnia działki:
918,00 m2
Rok budowy:
2025
Liczba pokoi:
4
Stan budynku:
Surowy zamknięty
Typ domu:
Wolnostojący
Ciepła woda:
tak
Id oferty:
43712/3877/ODS

Opis

Na sprzedaż: Nowoczesny dom jednorodzinny – Klembów, Sitki

Stan surowy zamknięty. 
Na życzenie klienta - jest możliwość zakupu nieruchomości w stanie deweloperskim.

Na sprzedaż dom jednorodzinny w miejscowości Sitki, gmina Klembów, położony w otoczeniu zabudowy jednorodzinnej oraz terenów zielonych.

Dodatkowo na działce ma zostać posadowiony garaż wolnostojący

Atrakcyjna lokalizacja zapewnia spokój, bliskość natury oraz szybki dojazd do większych miast.

W pobliżu:
  • Trasa S8 – 10 minut
  • Stacja PKP Klembów – 3,5 km
  • Wołomin / Radzymin – 15 minut jazdy
  • Sklep DINO – 1 km
  • Szkoła Podstawowa im. M. Gotowca – 1,8 km (niebawem otwarcie oddziału żłobkowego)
  • Urząd Gminy Klembów – 2 km

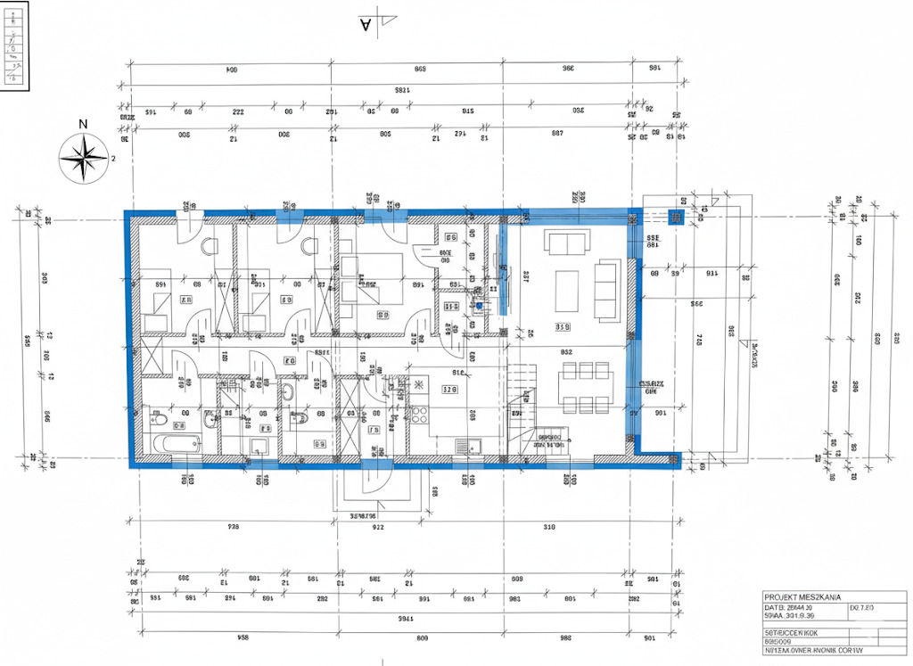
Powierzchnia i układ 

Dom parterowy, wolnostojący, z funkcjonalnym i komfortowym rozkładem pomieszczeń.
Powierzchnia użytkowa: ok. 102,85 m²
Dodatkowo do dyspozycji pozostaje poddasze użytkowe.

Rozkład pomieszczeń:

  • Parter

    Wiatrołap – 4,75 m²
    Korytarz – 9,81 m²
    Łazienka 1 – 4,00 m²
    Kotłownia – 4,12 m²
    Łazienka 2 – 5,75 m²
    Sypialnia 1 – 10,00 m²
    Sypialnia 2 – 9,98 m²
    Sypialnia 3 – 10,00 m²
    Garderoba – 2,73 m²
    Spiżarnia – 1,46 m²
    Kuchnia – 11,56 m²
    Pokój dzienny – 28,69 m²

  • Poddasze

    Pomieszczenie rekreacyjne – 18,38 m² (powierzchnia całkowita 62,37 m²)
    Garderoba – 12,59 m² (powierzchnia całkowita 44,20 m²)

Stan techniczny i technologia

Dom oferowany w stanie surowym zamkniętym.
Istnieje możliwość wykończenia do stanu deweloperskiego na indywidualne zamówienie.

 Standard stanu surowego zamkniętego obejmuje:
  • wykonane ogrodzenie
  • wykończona elewacja
  • kostka brukowa na podjeździe i tarasie
  • dach pokryty blachodachówką modułową z kwadratowymi rynnami
  • stolarka zewnętrzna (okna i drzwi)
Technologia budowy:
  • Ściany z Porothermu Dryfix
  • Ocieplenie: styropian grafitowy 20 cm
  • Dach dwuspadowy o kącie nachylenia 35°
  • Strop żelbetowy, ocieplony
  • Podłogi: styropian EPS100, folia PE, papa termozgrzewalna, wylewki cementowe

  Media i instalacje
  • Woda miejska
  • Kanalizacja miejska 
  • Prąd doprowadzony do działki

To inwestycja w ramach małego, klimatycznego osiedla składającego się z trzech identycznych domów.

Kupujesz na kredyt?
Sprawdzeni doradcy kredytowi, z którymi współpracujemy, bezpłatnie sprawdzą Twoją zdolność kredytową i pomogą wybrać najlepszy kredyt hipoteczny.
A może chcesz kupić ten dom, ale najpierw musisz sprzedać inną nieruchomość?
Pomogę Ci przejść przez cały ten proces – sprawnie i bez zbędnego stresu.
Zadzwoń i porozmawiajmy :) 

Niniejsze ogłoszenie nie stanowi oferty w rozumieniu Kodeksu Cywilnego, lecz ma charakter informacyjny.

Przedstawione wizualizacje i grafiki mają charakter wyłącznie poglądowy i stanowią wyłącznie materiał pomocniczy, ułatwiający zorientowanie się w ogólnym wyglądzie oferowanej nieruchomości.

Niniejsze ogłoszenie wraz z jego elementami jest własnością Północ Nieruchomości Sp z o.o. lub podmiotu współpracującego. Wszelkie prawa zastrzeżone. Kopiowanie, rozpowszechnianie oraz korzystanie z niniejszych materiałów w jakikolwiek inny sposób wykraczający poza dozwolony użytek określony przepisami ustawy z 4 lutego 1994 r. o prawie autorskim i prawach pokrewnych (Dz. U. 1994, nr 24 poz. 83 z późn. zm.) bez pisemnej zgody Północ Nieruchomości Sp z o.o. lub podmiotów współpracujących jest zabronione i może stanowić podstawę odpowiedzialności cywilnej oraz karnej.

Niniejsze materiały stanowią tajemnicę przedsiębiorstwa PÓŁNOC NIERUCHOMOŚCI Sp. z o.o. w rozumieniu ustawy z dnia 16 kwietnia 1993 r. o zwalczaniu nieuczciwej konkurencji (Dz. U. z 2003 r., Nr 153, poz. 1503 z późn. zm.).

Mapa

Zapytaj o tę ofertę

Lub zadzwoń