Kontakt
Nr oferty: 40413/3877/ODS

Segment I 5 pok., 294m2 I świetna lokalizacja!

Ursynów, Modelowa zobacz na mapie

2 599 999 PLN

Szczegóły oferty

Cena:
2 599 999,00 zł
Powierzchnia:
294,10 m2
Cena za m2:
8 840,53 zł
Powierzchnia użytkowa:
294,10 m2
Rok budowy:
2000
Liczba pięter:
2
Liczba pokoi:
5
Stan budynku:
Dobry
Typ domu:
Segment środkowy
Ciepła woda:
tak
Id oferty:
40413/3877/ODS

Opis

Segment I 5 pok., 294m2 I świetna lokalizacja, strzeżone osiedle!

oferta BEZ PROWIZJI od Kupującego!

Idealna propozycja dla rodzin, które pragną połączyć życie w mieście z możliwością komfortowego odpoczynku w cichej i zielonej okolicy. Budynek znajduje się w otoczeniu domów jednorodzinnych na zamkniętym i strzeżonym osiedlu. W najbliższej okolicy znajdziemy sklepy, restauracje, kino, basen, supermarket, centrum fitness i inne. Osiedle jest usytuowane w pobliżu licznych terenów rekreacyjnych, w tym rezerwatu przyrody Skarpa Ursynowska, Parku Polskich Wynalazców czy Parku Pokoleń. Okolica jest wyjątkowo cicha i bezpieczna, a jednocześnie daje doskonałe możliwości komunikacyjne. W pobliżu działają państwowe i prywatne szkoły podstawowe oraz licea.

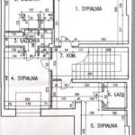
Dom charakteryzuje się bardzo przemyślanym rozmieszczeniem pomieszczeń. Na trzech poziomach zaaranżowano pomieszczenia, które doskonale odpowiedzą na wszystkie potrzeby domowników.

PARTER:
- salon z kominkiem połączony z jadalnią (z salonu wyjście na taras i do ogrodu)
- oddzielna kuchnia z kącikiem śniadaniowym połączona z salonem
- WC
- gabinet/sypialnia

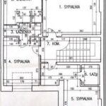
PIĘTRO:
- master bedroom z garderobą i pokojem kąpielowym
- sypialnia z łazienką
- sypialnia z łazienką oraz antresolą

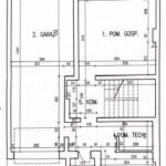
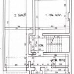
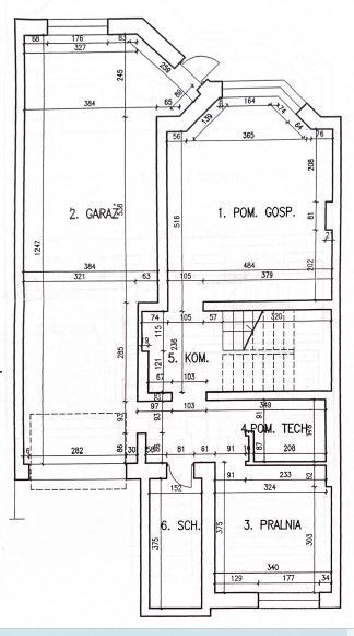
PIWNICA:
* garaż na dwa samochody z wyjściem do ogrodu
* pralnia
* kotłownia z wc
* pomieszczenie rekreacyjne
* Schowek/piwnica na wino

Poddasze stanowi otwarte pomieszczenie pełniące obecnie funkcję strychu.

Lokalizacja:
- Dogodny dojazd do centrum umożliwiają: dobrze rozwinięta sieć dróg, linie autobusowe oraz linia metra M1
- bliskość trasy POW ułatwi zmotoryzowanym wyjazd z Warszawy oraz dojazd do innych dzielnic miasta
- W okolicy: zielone skwerki, Skarpa Ursynowska, Park Polskich Wynalazców czy Park Pokoleń, sklepy spożywcze, przystanek autobusowy, restauracje
- W odległości ok. 500-600 m szkoły, przedszkola, żłobki - prywatne i państwowe, przystanek M1
- Świetna lokalizacja na bliskim Ursynowie zaledwie 8 km od ścisłego centrum miasta

Zapraszam do kontaktu

Niniejsze ogłoszenie nie stanowi oferty w rozumieniu Kodeksu Cywilnego, lecz ma charakter informacyjny.

Przedstawione wizualizacje i grafiki mają charakter wyłącznie poglądowy i stanowią wyłącznie materiał pomocniczy, ułatwiający zorientowanie się w ogólnym wyglądzie oferowanej nieruchomości.

Niniejsze ogłoszenie wraz z jego elementami jest własnością Północ Nieruchomości Sp z o.o. lub podmiotu współpracującego. Wszelkie prawa zastrzeżone. Kopiowanie, rozpowszechnianie oraz korzystanie z niniejszych materiałów w jakikolwiek inny sposób wykraczający poza dozwolony użytek określony przepisami ustawy z 4 lutego 1994 r. o prawie autorskim i prawach pokrewnych (Dz. U. 1994, nr 24 poz. 83 z późn. zm.) bez pisemnej zgody Północ Nieruchomości Sp z o.o. lub podmiotów współpracujących jest zabronione i może stanowić podstawę odpowiedzialności cywilnej oraz karnej.

Niniejsze materiały stanowią tajemnicę przedsiębiorstwa PÓŁNOC NIERUCHOMOŚCI Sp. z o.o. w rozumieniu ustawy z dnia 16 kwietnia 1993 r. o zwalczaniu nieuczciwej konkurencji (Dz. U. z 2003 r., Nr 153, poz. 1503 z późn. zm.).

Mapa

Zapytaj o tę ofertę

Lub zadzwoń