Opis
Oferujemy państwu Dom wolnostojący o powierzchni ok 172m2 wykonany w technologii murowanej, usytuowany na działce o powierzchni 1791m2. Nieruchomość położona jest w Zawoi blisko Centrum, a zarazem zapewniający prywatność i ciszę.
CO SPRZEDAJEMY ?
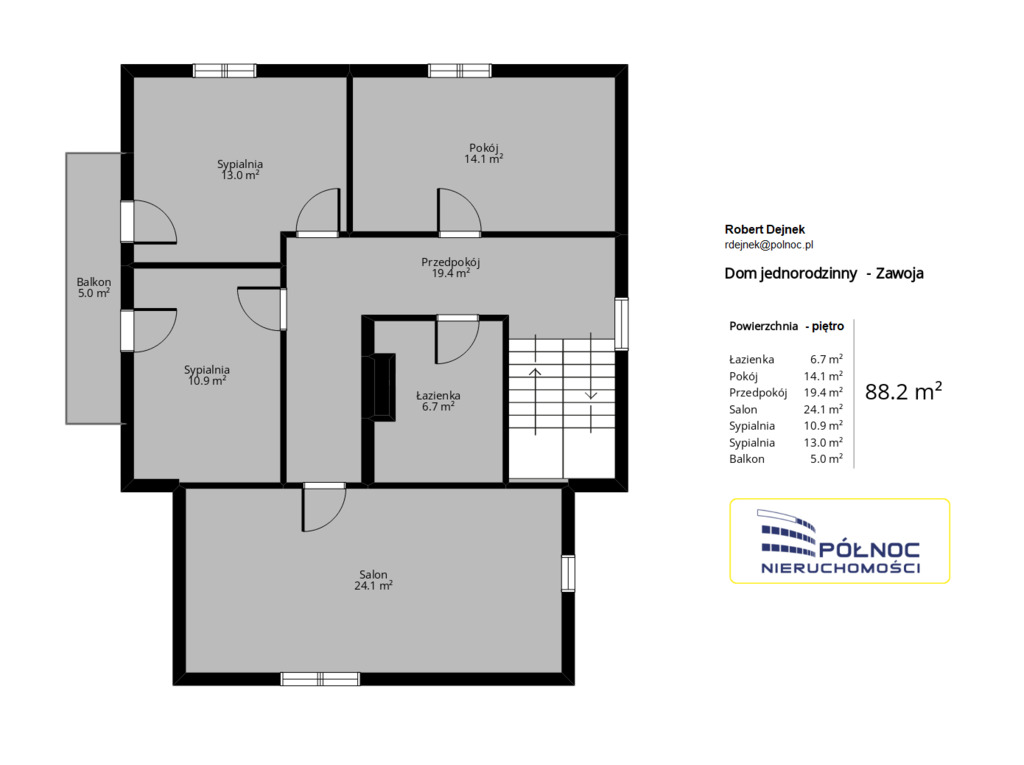
Dom wolnostojący dwukondygnacyjny z poddaszem nieużytkowym o powierzchni ok 172m2, oraz powierzchni mieszkalnej 143 m2 składający się...
Parter - przedpokój, osobna kuchnia, dwa pokoje, łazienka z wc, kotłownia oraz pomieszczenie gospodarcze.
Piętro - przedpokój, cztery pokoje w tym dwa z balkonem, łazienka.
Garaż - jednostanowiskowy w bryle budynku.
Dom posadowiony na działce o pow. 1791m2 o wymiarach ok. 83x22m lekko pochyłej, w drugiej linii zabudowy.
Droga dojazdowa asfaltowa.
JAKI JEST STANDARD ?
Dom wybudowany w 2019 r. technologią murowaną, metodą tradycyjną, wykończony.
Dom wybudowany z pustaków, pokryty blachodachówką, docieplony.
Podjazd do garażu wyłożony kostką.
Zastosowano okna PCV oraz zamontowano okna dachowe FAKRO drewniane.
Na podłodze w pokojach położone zostały panele, na ścianach gładzie.
Ogrzewanie piecem węglowym na eko-groszek.
Ekspozycja okien na 3 strony świata.
JAK WYGLĄDA KWESTIA MEDIÓW ?
- ciepła woda oraz ogrzewanie - piec eko-groszek
- woda - miejska
- kanalizacja - miejska
- prąd - 380V
CO ZNAJDUJE SIĘ W NAJBLIŻSZYM OTOCZENIU ?
Najbliższe otoczenie to mnóstwo zieleni wokół z panoramą na lasy i góry, a zarazem praktycznie centrum miasta.
W okolicy dostępna szkoła, przedszkole, kościół czy też przychodnia zdrowia.
KILKA SŁÓW O ZAWOI
Jest to największa pod względem obszaru wieś w Polsce leżąca na południu kraju przy granicy ze Słowacją. Wieś letniskowa i turystyczna, położona w województwie małopolskim, w powiecie suskim, w gminie Zawoja. Stanowi punkt wypadowy dla turystyki w rejonie Babiej Góry. Od zachodu otacza ją Pasmo Jałowieckie, na wschodzie roztacza się natomiast Pasmo Policy. Mieści się tu siedziba Babiogórskiego parku Narodowego.
Zawoja oferuje ponadto wiele atrakcji dla turystów:
-Muzeum Babiogórskiego Parku Narodowego, -Skansen im, Józefa Żaka w Zawoi Markowej, -Kolej Krzesełkowa na Mosorny Groń, -Wodospad na Mosornym Potoku,
-Kapliczka w Zawoi Policzne,
-Babia Góra (1725 m n.p.m) najwyższy szczyt Beskidów
Zapewnia doskonałe połączenie komunikacyjne:
- do Krakowa 75 km,
- do Katowic 110 km,
- do Bielska Białej 60 km,
- do pobliskiej Suchej Beskidzkiej 18 km
Kupujesz na kredyt?
Sprawdzeni doradcy kredytowi, z którymi współpracujemy zupełnie za darmo zbadają Twoją zdolność kredytową.
Przeprowadzą Cię przez cały proces kredytowy i pomogą w uzyskaniu finansowania.
Mamy prawdziwych czarodziejów i czarodziejki od kredytów ;)
Zainteresowała Cię ta oferta
Zadzwoń i umów się na spotkanie :)
Czekam na Twój telefon 7 dni w tygodniu.
Jak nie odbiorę - na pewno oddzwonię.
Robert Dejnek
Dyrektor oddziału
792 023 324
rdejnek@polnoc.pl
PÓŁNOC Nieruchomości o. Radzionków
534 648 560
Męczenników Oświęcimia 34/1
41-922 Radzionków
Niniejsze ogłoszenie nie stanowi oferty w rozumieniu Kodeksu Cywilnego, lecz ma charakter informacyjny.
Przedstawione wizualizacje i grafiki mają charakter wyłącznie poglądowy i stanowią wyłącznie materiał pomocniczy, ułatwiający zorientowanie się w ogólnym wyglądzie oferowanej nieruchomości.
Niniejsze ogłoszenie wraz z jego elementami jest własnością Północ Nieruchomości Sp z o.o. lub podmiotu współpracującego. Wszelkie prawa zastrzeżone. Kopiowanie, rozpowszechnianie oraz korzystanie z niniejszych materiałów w jakikolwiek inny sposób wykraczający poza dozwolony użytek określony przepisami ustawy z 4 lutego 1994 r. o prawie autorskim i prawach pokrewnych (Dz. U. 1994, nr 24 poz. 83 z późn. zm.) bez pisemnej zgody Północ Nieruchomości Sp z o.o. lub podmiotów współpracujących jest zabronione i może stanowić podstawę odpowiedzialności cywilnej oraz karnej.
Niniejsze materiały stanowią tajemnicę przedsiębiorstwa PÓŁNOC NIERUCHOMOŚCI Sp. z o.o. w rozumieniu ustawy z dnia 16 kwietnia 1993 r. o zwalczaniu nieuczciwej konkurencji (Dz. U. z 2003 r., Nr 153, poz. 1503 z późn. zm.).