Kontakt
Nr oferty: 44532/3877/ODS

Dom z dużą działką / stan deweloperski / Zawonia

Zawonia, Wrzosowa zobacz na mapie

899 000 PLN

Szczegóły oferty

Cena:
899 000,00 zł
Powierzchnia:
120,00 m2
Cena za m2:
7 491,67 zł
Powierzchnia działki:
570,00 m2
Rok budowy:
2025
Liczba pięter:
1
Liczba pokoi:
4
Stan budynku:
Stan deweloperski
Typ domu:
Bliźniak
Ciepła woda:
tak
Id oferty:
44532/3877/ODS

Opis

CO SPRZEDAJEMY?
Dom typu "stodoła" o powierzchni 99 m2 + garaż (21 m2), położony na zagospodarowej dużej działce o powierzchni 570 m2.

Dom w nowej cenie - 899 000 PLN! 

GDZIE ZNAJDUJE SIĘ NIERUCHOMOŚĆ?
Dom znajduje się w zacisznej podwrocławskiej miejscowości Zawonia (powiat trzebnicki) - niecałe 30 km od Wrocławia.
Okolica jest zielona i spokojna, a podstawowe usługi są zapewnione na miejscu. Taki dom i działka to idealna alternatywa dla mieszkania w gwarnym mieście. 

JAKI JEST STANDARD I UDOGODNIENIA?
Dom jest sprzedawany w stanie deweloperskim - gotowy do wykończenia według indywidualnego projektu. 
W budynku zainstalowane zostało c.o. i c.w.u. zasilana z nowoczesnego pieca gazowego - ogrzewanie podłogowe w całym budynku.
Dom wyposażony jest w duże 3-szybowe okna PCV i przeszklenia. Zamontowane zostały również alektrycznie sterowane rolety.  
W bryle budynku znajduje się przestronny garaż o powierzchni 21 m2 z możliwością montażu stacji ładowania samochodu elektrycznego.
Na dachu garażu jest przygotowane miejsce pod montaż paneli fotowoltaicznych. 
Na ścianach zostały wykonane tynki wapienne maszynowe, a poddasze zostało pod koniec 2025 roku docieplone pianą pur i zostały zrobione sufity na piętrze. 

Dzięki przeszło 5,5 arowej działce, dom posiada spory ogród z drzewami i potencjałem do dalszej aranżacji przydomowej zieleni.
W ogrodzie zainstalowany został zbiornik na deszczówkę o pojemności 10 000 l. 
Cała działka jest ogrodzona, a podjazd do garażu został wykostkowany. 
Ścieki odprowadzane są w tym momenci do szamba, ale w planach jest budowa kanalizacji.
W chwili obecnej dojazd do domu prowadzi przez utwardzona drogą, ale w najbliższym czasie powstanie nawierzchnia asfaltowa. 

Z JAKICH POMIESZCZEŃ SIĘ SKŁADA?
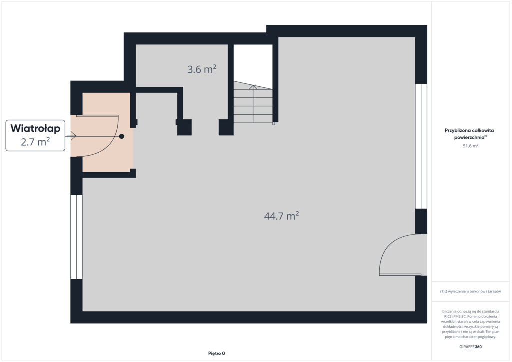
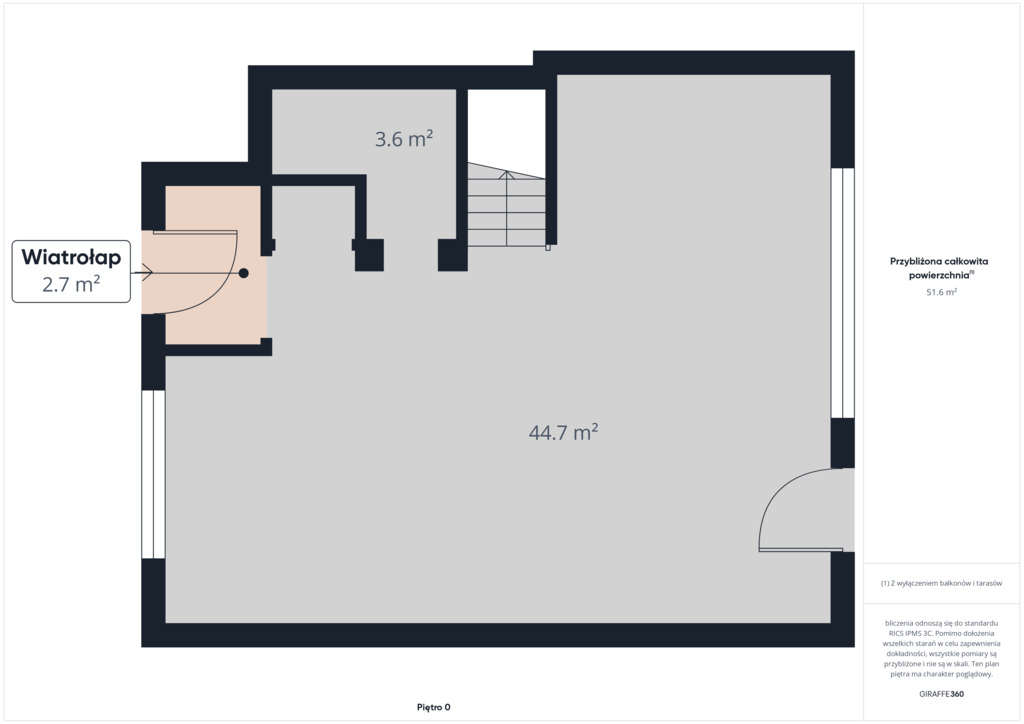
PARTER:
- Salon z aneksem kuchennym (44,7 m2),
- Łazienka 1 (3,6 m2),
- Wiatrołap (2,7 m2)
- Klatka schodowa (3,9 m2)

I PIĘTRO:
- Korytarz (3,1 m2),
- Łazienka 2 (8,1 m2),
- Pokój 1 (10,7 m2),
- Pokój 2 (14,2 m2),
- Pokój 3 (11,4 m2)

CO ZNAJDUJE SIĘ W NAJBLIŻSZYM OTOCZENIU?
- sklepy (Dino, Biedronka)
- szkoła podstawowa (ok. 1,5 km)
- ośrodek zdrowia (ok. 1 km)
- ok. 11 km od Trzebnicy
- ok. 15 km od trasy S8
- ok. 30 km od Wrocławia

Zapraszam na prezentację.

BEZPŁATNIE pomagamy w uzyskaniu najkorzystniejszego kredytu na zakup nieruchomości.

Niniejsze ogłoszenie nie stanowi oferty w rozumieniu Kodeksu Cywilnego, lecz ma charakter informacyjny.

Przedstawione wizualizacje i grafiki mają charakter wyłącznie poglądowy i stanowią wyłącznie materiał pomocniczy, ułatwiający zorientowanie się w ogólnym wyglądzie oferowanej nieruchomości.

Niniejsze ogłoszenie wraz z jego elementami jest własnością Północ Nieruchomości Sp z o.o. lub podmiotu współpracującego. Wszelkie prawa zastrzeżone. Kopiowanie, rozpowszechnianie oraz korzystanie z niniejszych materiałów w jakikolwiek inny sposób wykraczający poza dozwolony użytek określony przepisami ustawy z 4 lutego 1994 r. o prawie autorskim i prawach pokrewnych (Dz. U. 1994, nr 24 poz. 83 z późn. zm.) bez pisemnej zgody Północ Nieruchomości Sp z o.o. lub podmiotów współpracujących jest zabronione i może stanowić podstawę odpowiedzialności cywilnej oraz karnej.

Niniejsze materiały stanowią tajemnicę przedsiębiorstwa PÓŁNOC NIERUCHOMOŚCI Sp. z o.o. w rozumieniu ustawy z dnia 16 kwietnia 1993 r. o zwalczaniu nieuczciwej konkurencji (Dz. U. z 2003 r., Nr 153, poz. 1503 z późn. zm.).

Mapa

Zapytaj o tę ofertę

Lub zadzwoń