Kontakt
Nr oferty: 45356/3877/OGS

Działka 8000 m² z WZ na 6 domów -135 m2

Sierzchów, Starowiejska zobacz na mapie

1 200 000 PLN

Szczegóły oferty

Cena:
1 200 000,00 zł
Powierzchnia działki:
8 000,00 m2
Cena za m2:
150,00 zł
Szerokość działki (mb.):
97,66 m
Długość działki (mb.):
86,19 m
Ukształtowanie działki:
Płaska
Ogrodzenie:
Brak
Przeznaczenie działki:
Budowlana
Kształt działki:
Prostokąt
Plan miejscowy:
Brak planu miejscowego
Id oferty:
45356/3877/OGS

Opis

Idealna działka dla dewelopera !!!
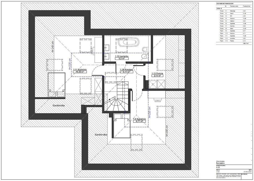
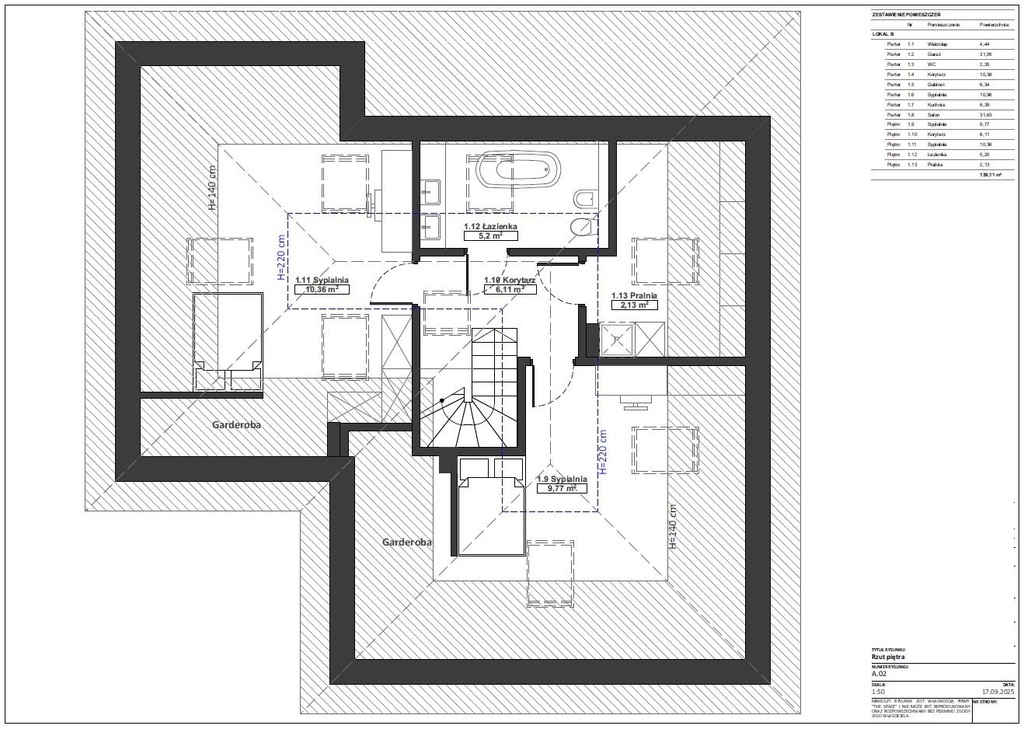
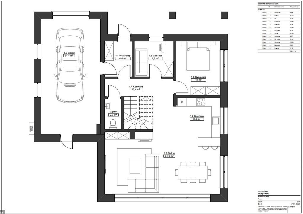
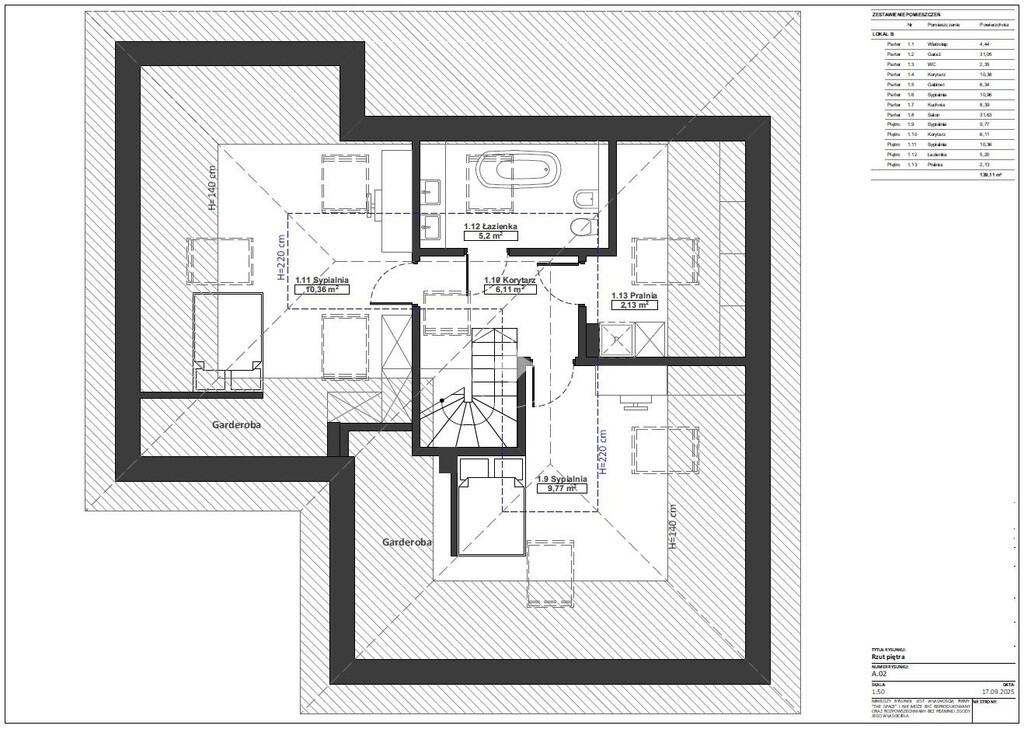
Wydana WZ na 6 domów jednorodzinnych po 135 m2.
Projekt na domy - rzuty załączone w zdjęciach oferty.
W trakcie procedowania - Pozwolenie na Budowę. 



Przedstawiam ofertę sprzedaży wyjątkowej nieruchomości zlokalizowanej w miejscowości Sierzchów, gmina Góra Kalwaria, powiat piaseczyński.
Właściciel posiada Warunki Zabudowy wydane dla działki. 
 
Nieruchomość podzielona zgodnie z załącznikiem do wydanej WZ na 6 odrębnych działek oraz dodatkowej działki przeznaczonej na infrastrukturę drogową. Łączna powierzchnia działek to 8 000 m². Dzięki udziałowi w działce drogowej (nie służebność), nieruchomość ma zapewniony dostęp do publicznej drogi asfaltowej – ul. Starowiejskiej.
 
Parametry działki:

   •       Cena: 1 200 000 PLN
   •       Cena za m²: 150 PLN
   •       Powierzchnia: 8 000 m²
   •       Możliwość podziału: Tak
   •       Kształt działki: Prostokąt
   •       Wymiary działki: szerokość 97,66 m, długość 86,19 m
   •       Ukształtowanie terenu: Zróżnicowane -na większości terenu płaskie
   •       Ogrodzenie: Brak

Warunki zabudowy:
 
Działki posiadają wydane warunki zabudowy, które umożliwiają budowę domów jednorodzinnych.

Kluczowe parametry zabudowy:
   •       Maksymalna wysokość budynków: 9 metrów, do 2 kondygnacji (w tym poddasze użytkowe).
   •       Maksymalna powierzchnia zabudowy: 20% powierzchni działki.
   •       Minimalna powierzchnia biologicznie czynna: 70% powierzchni działki.
   •       Dach: dwuspadowy lub wielospadowy, o kącie nachylenia 30°–45°.
   •       Maksymalna szerokość elewacji frontowej: 12 metrów.
 
Media:
   •       Woda: miejska w drodze.
   •       Prąd: w drodze.
   •       Gaz: brak.
   •       Kanalizacja: możliwość zastosowania przydomowej oczyszczalni ścieków lub zbiornika bezodpływowego.
 
Lokalizacja:
   •       Miejscowość: Sierzchów, gmina Góra Kalwaria, powiat piaseczyński.
   •       Otoczenie: spokojna zabudowa jednorodzinna w 2. i 3. linii zabudowy, bliskość lasów – idealne miejsce na dom wśród zieleni.
   •       Odległości:
        •  12 km od centrum Góry Kalwarii.
        •  14 km od centrum Piaseczna.
 
Dodatkowe informacje:
 

  Działki są idealne zarówno pod budowę rezydencji, jak i pod inwestycje: możliwość stworzenia agroturystyki, rancza lub osiedla domów jednorodzinnych. Jedna z działek jest częściowo zalesiona, co dodaje nieruchomości unikalnego charakteru.
 



Podsumowanie Warunków zabudowy z wydanej decyzji : 

1. Liczba działek i ich przeznaczenie:
   •       Dokument dotyczy 6 działek , które zostały wymienione w decyzji.
   •       Przeznaczenie działek: zabudowa mieszkaniowa jednorodzinna dla każdej działki.
 
2. Możliwości zabudowy i parametry ogólne:
   •       Liczba budynków: Na każdej działce możliwa jest budowa jednego budynku mieszkalnego jednorodzinnego.
   •       Parametry zabudowy (dotyczą każdej działki):
        •  Powierzchnia zabudowy: Budynek może zająć maksymalnie 20% powierzchni działki.
        •  Wysokość budynku:
             •         Maksymalna wysokość to 9 metrów.
             •         Budynek może mieć do 2 kondygnacji nadziemnych, w tym poddasze użytkowe.
        •  Geometria dachu:
             •         Kąt nachylenia dachu: 30°–45°.
             •         Dach musi być dwuspadowy lub wielospadowy.
        •  Szerokość elewacji frontowej: Maksymalna szerokość wynosi 12 metrów.
 
3. Warunki dostępu do infrastruktury:
   •       Każda działka posiada dostęp do drogi publicznej (bezpośredni lub przez projektowane zjazdy).
   •       Dostępność mediów (możliwa do podłączenia dla każdej działki):
        •  Sieć wodociągowa.
        •  Sieć energetyczna.
        •  Możliwość zastosowania przydomowej oczyszczalni ścieków lub zbiornika bezodpływowego.
 
4. Ograniczenia i wymagania dodatkowe:
   •       Powierzchnia biologicznie czynna:
        •  Co najmniej 70% powierzchni każdej działki musi pozostać biologicznie czynne.
   •       Ochrona środowiska: Obowiązek uwzględnienia zasad ochrony środowiska (dotyczy działek znajdujących się w obszarach chronionych, jeśli takie występują).
   •       Ogrodzenie:
        •  Minimalna ażurowość ogrodzenia wynosi 25%.

Podsumowanie dla inwestorów:
 
Każda z działek jest przeznaczona pod zabudowę jednorodzinną i umożliwia budowę jednego budynku mieszkalnego o maksymalnej wysokości 9 metrów i dwóch kondygnacjach (w tym poddasze użytkowe). Budynek może zajmować do 20% powierzchni działki, z dachem dwuspadowym lub wielospadowym o nachyleniu 30°–45°. Działki są skomunikowane i mają dostęp do podstawowych mediów. Warunki te czynią działki atrakcyjnymi dla inwestorów poszukujących terenów pod budownictwo jednorodzinne.



  Zapraszamy do kontaktu w celu umówienia prezentacji! To wyjątkowa oferta dla osób ceniących ciszę i bliskość natury, z jednoczesnym łatwym dostępem do infrastruktury miejskiej.



Niniejsze ogłoszenie nie stanowi oferty w rozumieniu Kodeksu Cywilnego, lecz ma charakter informacyjny.

Przedstawione wizualizacje i grafiki mają charakter wyłącznie poglądowy i stanowią wyłącznie materiał pomocniczy, ułatwiający zorientowanie się w ogólnym wyglądzie oferowanej nieruchomości.

Niniejsze ogłoszenie wraz z jego elementami jest własnością Północ Nieruchomości Sp z o.o. lub podmiotu współpracującego. Wszelkie prawa zastrzeżone. Kopiowanie, rozpowszechnianie oraz korzystanie z niniejszych materiałów w jakikolwiek inny sposób wykraczający poza dozwolony użytek określony przepisami ustawy z 4 lutego 1994 r. o prawie autorskim i prawach pokrewnych (Dz. U. 1994, nr 24 poz. 83 z późn. zm.) bez pisemnej zgody Północ Nieruchomości Sp z o.o. lub podmiotów współpracujących jest zabronione i może stanowić podstawę odpowiedzialności cywilnej oraz karnej.

Niniejsze materiały stanowią tajemnicę przedsiębiorstwa PÓŁNOC NIERUCHOMOŚCI Sp. z o.o. w rozumieniu ustawy z dnia 16 kwietnia 1993 r. o zwalczaniu nieuczciwej konkurencji (Dz. U. z 2003 r., Nr 153, poz. 1503 z późn. zm.).

Mapa

Zapytaj o tę ofertę

Lub zadzwoń