Kontakt
Nr oferty: 41099/3877/OGS

Widokowa działka z pozwoleniem na budowę Sosnówka

Sosnówka zobacz na mapie

650 000 PLN

Szczegóły oferty

Cena:
650 000,00 zł
Powierzchnia działki:
3 000,00 m2
Cena za m2:
216,67 zł
Ukształtowanie działki:
Płaska
Ogrodzenie:
Brak
Przeznaczenie działki:
Budowlana
Kształt działki:
Prostokąt
Plan miejscowy:
Studium uwarunkowań i kierunków zagospodarowania przestrzennego
Id oferty:
41099/3877/OGS

Opis

PÓŁNOC Nieruchomości Jelenia Góra, prezentuje Państwu rewelacyjnie położoną działkę z gotowym projektem budowlanym w poszukiwanej lokalizacji w okolicy zalewu Sosnówka.
GOTOWIEC: Działka z projektem budowlanym i dziennikiem budowy.

Sosnówka to malowniczo położona miejscowość w okolicy Jeleniej Góry z widokami jednocześnie na zalew i otaczające pasmo górskie. Miejscowość rozwija się od kilku lat pod względem turystycznym.

Bliskość do Jeleniej Góry stwarza dogodne warunki do prowadzenia działalności nie tylko w obszarze turystyki ale i zakładów opiekuńczych. Projekt budowlany stworzony przez inwestorów zakładał właśnie taką działalność.

Działka położona na obrzeżach wsi w bezpośrednim sąsiedztwie zalewu, przy drodze, która prowadzi jeszcze tylko do jednego domu. Lekko zalesiona, zza drzew wyłania się widok na Karkonosze.
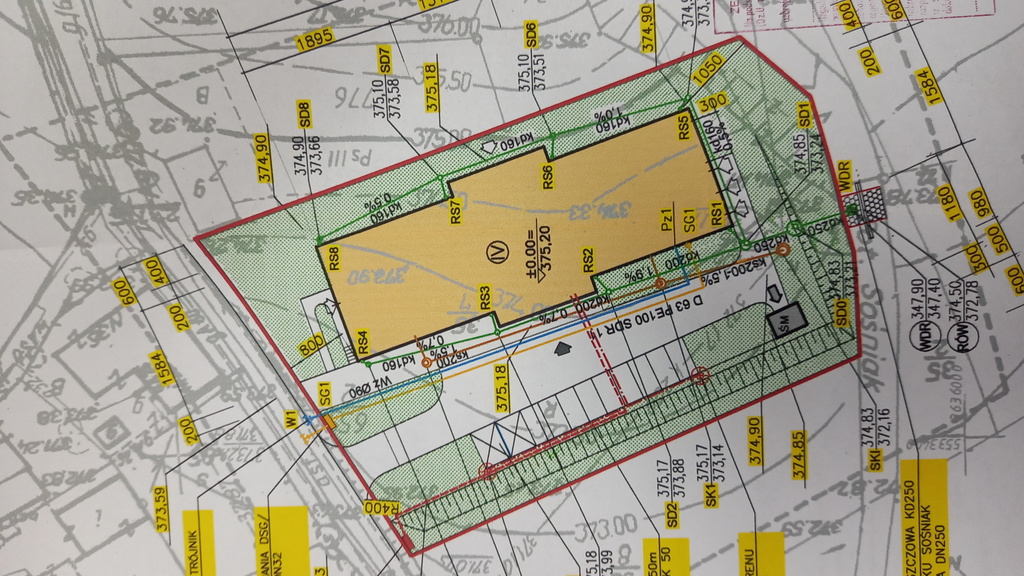
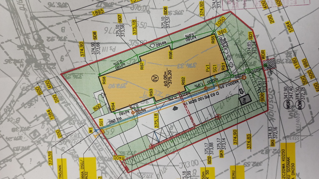
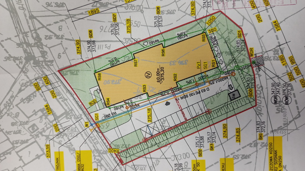
Powierzchnia działki to równo 3000m2.
Klasa gruntu pastwiska, przy czym została trwale wyłączona z produkcji rolnej, na co inwestor przedstawia stosowne dokumenty wydane przez Starostę jeleniogórskiego.
Działka jest płaska, na sąsiedniej działce potok Sośniak, który został uwzględniony w projekcie jako miejsce odprowadzenia wód opadowych.
Dojazd do działki drogą asfaltową.
Maksymalny wskaźnik zabudowy 0,3, maksymalna wysokość elewacji frontowej 16m, powierzchnia biologicznie czynna 50%.
W niedalekim, praktycznie bezpośrednim sąsiedztwie zalew Sosnówka i tereny zielone.
Media dostępne albo w drodze, albo w granicy działki.
Dla projektu wydano decyzje o przyłączenie do:
- sieci gazowej
- sieci wodnokanalizacyjnej
- sieci elektrotechnicznej

Projekt budowlany przewiduje wybudowanie czterokondygnacyjnego budynku, niepodpiwniczonego o powierzchni zabudowy 855m2 i powierzchni użytkowej budynku 2281m2.
W projekcie uwzględniono 69 miejsc noclegowych w pokojach 1,2,3-osobowych, pokoi w sumie 32. Forma architektoniczna dostosowana do sąsiedniej zabudowy niezaburzająca krajobrazu.
Projekt dedykowany zakładowi opiekuńczemu, łatwy do dostosowania dla celów turystycznych. Projekt uwzględnia wiele elementów wspólnych dla przedsięwzięć hotelarskich.

Cena działki wraz z gotowym projektem to 650 000pln, uwzględnia łącznie wartość gruntu i wartość przygotowanego kompleksowego projektu budowlanego wraz ze wszystkimi zgodami, dokumentacja do wglądu.

Gorąco polecam i zapraszam na prezentację.

PÓŁNOC NIERUCHOMOŚCI Jelenia Góra
plac Wyszyńskiego 33/1

Agnieszka Stawarz
Dyrektor Oddziału
numer licencji 27099
tel 780 000 773
mail astawarz@polnoc.pl

Nota Prawna: Opis oferty sporządzony jest na podstawie oględzin nieruchomości oraz informacji przekazanych przez właściciela, może on podlegać weryfikacji i nie stanowi oferty określonej w art.66 i następnych K.C.

Niniejsze ogłoszenie nie stanowi oferty w rozumieniu Kodeksu Cywilnego, lecz ma charakter informacyjny.

Przedstawione wizualizacje i grafiki mają charakter wyłącznie poglądowy i stanowią wyłącznie materiał pomocniczy, ułatwiający zorientowanie się w ogólnym wyglądzie oferowanej nieruchomości.

Niniejsze ogłoszenie wraz z jego elementami jest własnością Północ Nieruchomości Sp z o.o. lub podmiotu współpracującego. Wszelkie prawa zastrzeżone. Kopiowanie, rozpowszechnianie oraz korzystanie z niniejszych materiałów w jakikolwiek inny sposób wykraczający poza dozwolony użytek określony przepisami ustawy z 4 lutego 1994 r. o prawie autorskim i prawach pokrewnych (Dz. U. 1994, nr 24 poz. 83 z późn. zm.) bez pisemnej zgody Północ Nieruchomości Sp z o.o. lub podmiotów współpracujących jest zabronione i może stanowić podstawę odpowiedzialności cywilnej oraz karnej.

Niniejsze materiały stanowią tajemnicę przedsiębiorstwa PÓŁNOC NIERUCHOMOŚCI Sp. z o.o. w rozumieniu ustawy z dnia 16 kwietnia 1993 r. o zwalczaniu nieuczciwej konkurencji (Dz. U. z 2003 r., Nr 153, poz. 1503 z późn. zm.).

Mapa

Zapytaj o tę ofertę

Lub zadzwoń