Kontakt
Nr oferty: 18808/3877/OLW

Lokal handlowo-usługowy przy ul. K.Wielkiego 24

Bochnia zobacz na mapie

2 475 PLN

Szczegóły oferty

Cena:
2 475,00 zł
Powierzchnia:
75,00 m2
Cena za m2:
33,00 zł
Stan budynku:
Bardzo dobry
Rodzaj budynku:
Mieszkalno-biurowy
Rynek:
Wtórny
Id oferty:
18808/3877/OLW

Opis

Wynajmiemy lokal usługowo-handlowy na parterze budynku przy ulicy Kazimierza Wielkiego 24 w Bochni . 

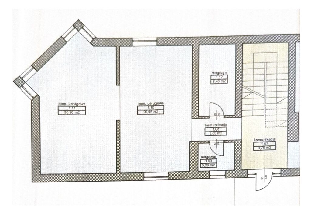
Lokal o powierzchni 75 m2  na parterze składa się
- z dwóch połączonych z sobą sal o łącznej powierzchni 59,95 m2 (  30,90 m2 i 29,05 m2 ) , bardzo dobrze doświetlonych ,
- magazynu o pow.8,40 m2,
-  pomieszczenia gospodarczego o powierzchni 3,30 m2 
-  komunikacji o pow. 3,66 m2.

Media : prąd, wodociąg, kanalizacja, gaz. Ogrzewanie co , gazowe. 
Na podłogach nowe płytki. 

Atutem lokalu jest własny parking dostępny dla najemców. 
W budynku działa sklep spożywczy oraz kancelaria notarialna.
Lokal idealnie nadaje się na działalność handlową, usługową , biurową. 

Cena : 33 zł netto/m + VAT plus media

Na przeciwko Starostwo Powiatowe, w sąsiedztwie Urząd Gminy Bochnia . 
Zapraszam do bezpłatnej prezentacji.
Wynagrodzenie dla Biura Nieruchomości płaci tylko Właściciel obiektu. 

Niniejsze ogłoszenie nie stanowi oferty w rozumieniu Kodeksu Cywilnego, lecz ma charakter informacyjny.

Przedstawione wizualizacje i grafiki mają charakter wyłącznie poglądowy i stanowią wyłącznie materiał pomocniczy, ułatwiający zorientowanie się w ogólnym wyglądzie oferowanej nieruchomości.

Niniejsze ogłoszenie wraz z jego elementami jest własnością Północ Nieruchomości Sp z o.o. lub podmiotu współpracującego. Wszelkie prawa zastrzeżone. Kopiowanie, rozpowszechnianie oraz korzystanie z niniejszych materiałów w jakikolwiek inny sposób wykraczający poza dozwolony użytek określony przepisami ustawy z 4 lutego 1994 r. o prawie autorskim i prawach pokrewnych (Dz. U. 1994, nr 24 poz. 83 z późn. zm.) bez pisemnej zgody Północ Nieruchomości Sp z o.o. lub podmiotów współpracujących jest zabronione i może stanowić podstawę odpowiedzialności cywilnej oraz karnej.

Niniejsze materiały stanowią tajemnicę przedsiębiorstwa PÓŁNOC NIERUCHOMOŚCI Sp. z o.o. w rozumieniu ustawy z dnia 16 kwietnia 1993 r. o zwalczaniu nieuczciwej konkurencji (Dz. U. z 2003 r., Nr 153, poz. 1503 z późn. zm.).

Mapa

Zapytaj o tę ofertę

Lub zadzwoń