Kontakt
Nr oferty: 4945/3877/OLS

Budynek dawnego młyna Tuligłowy

Małochwiej Duży zobacz na mapie

550 000 PLN

Szczegóły oferty

Cena:
550 000,00 zł
Powierzchnia:
706,00 m2
Cena za m2:
779,04 zł
Rodzaj budynku:
Zabytkowy
Rynek:
Wtórny
Id oferty:
4945/3877/OLS

Opis

Na sprzedaż budynek starego młynaMałochwiej Duży, gm. Krasnystaw
Na sprzedaż unikalny budynek starego młyna z lat 50. XX wieku, położony w malowniczej miejscowości Małochwiej Duży (gm. Krasnystaw), w pobliżu drogi krajowej nr 17.


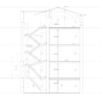
Charakterystyka budynku:
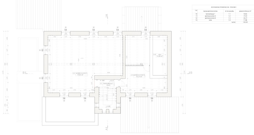
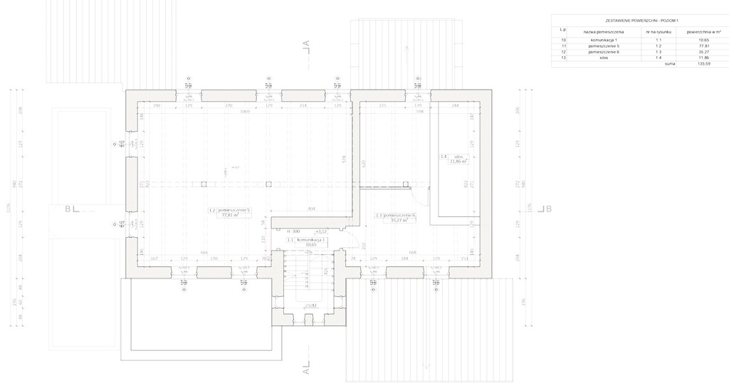
✔ Powierzchnia użytkowa: ok. 420 m² (3 poziomy po ok. 140 m² każdy)
✔ Piwnica: 148 m²
✔ Poddasze: 139 m²
✔ Solidna murowana konstrukcja z cegły
✔ Stropy drewniane
✔ Dach dwuspadowy

 Lokalizacja i otoczenie:
- Położony w pięknej, spokojnej okolicy, otoczonej licznymi ciekami wodnymi, w pobliżu Zalewu w Tuligłowach oraz rzeki Wojsławka.
- Bliskość trasy DK 17 zapewnia dogodny dojazd i dobrą komunikację.

Możliwości adaptacji:
Budynek oferuje szerokie możliwości przekształcenia na różne cele, np.:
- Dom mieszkalny – unikalny loftowy styl
- Agroturystyka, pensjonat – bliskość natury i wody sprzyja turystyce
- Restauracja, kawiarnia – klimatyczne wnętrza starego młyna
- Obiekt usługowy – sala konferencyjna, galeria, atelier artystyczne
- Przestrzeń magazynowa, warsztat, pracownia rzemieślnicza




Bezpłatnie pomagamy w formalnościach związanych z uzyskaniem kredytu na zakup nieruchomości. Nasz doradca kredytowy bezpłatnie sprawdzi Twoją zdolność kredytową i przedstawi najlepsze oferty z ponad 10 banków.
 
Posiadasz podobną nieruchomość? Skorzystaj z bezpłatnej konsultacji – odpowiemy na pytania dotyczące ceny, procesu sprzedaży oraz możliwości poprawy atrakcyjności oferty.
 
Oferujemy również:
•⁠  ⁠Pośrednictwo w kupnie, sprzedaży oraz najmie nieruchomości.
•⁠  ⁠Pomoc w sprzedaży nieruchomości o skomplikowanej sytuacji prawnej.
•⁠  ⁠Rzetelne oceny wartości nieruchomości.
 -Uzyskanie świadectwa energetycznego.
Nie zwlekaj, zadzwoń już teraz!

Tomasz Juszczak
Doradca ds. nieruchomości
tel. 504 288 990
e-mail: tjuszczak@polnoc.pl
Północ Nieruchomości Zamość

strona internetowa:
https://polnoc.pl/oddzialy/zamosc-zeromskiego/
Niniejsze ogłoszenie nie stanowi oferty w rozumieniu Kodeksu Cywilnego, lecz ma charakter informacyjny.

Niniejsze ogłoszenie nie stanowi oferty w rozumieniu Kodeksu Cywilnego, lecz ma charakter informacyjny.

Przedstawione wizualizacje i grafiki mają charakter wyłącznie poglądowy i stanowią wyłącznie materiał pomocniczy, ułatwiający zorientowanie się w ogólnym wyglądzie oferowanej nieruchomości.

Niniejsze ogłoszenie wraz z jego elementami jest własnością Północ Nieruchomości Sp z o.o. lub podmiotu współpracującego. Wszelkie prawa zastrzeżone. Kopiowanie, rozpowszechnianie oraz korzystanie z niniejszych materiałów w jakikolwiek inny sposób wykraczający poza dozwolony użytek określony przepisami ustawy z 4 lutego 1994 r. o prawie autorskim i prawach pokrewnych (Dz. U. 1994, nr 24 poz. 83 z późn. zm.) bez pisemnej zgody Północ Nieruchomości Sp z o.o. lub podmiotów współpracujących jest zabronione i może stanowić podstawę odpowiedzialności cywilnej oraz karnej.

Niniejsze materiały stanowią tajemnicę przedsiębiorstwa PÓŁNOC NIERUCHOMOŚCI Sp. z o.o. w rozumieniu ustawy z dnia 16 kwietnia 1993 r. o zwalczaniu nieuczciwej konkurencji (Dz. U. z 2003 r., Nr 153, poz. 1503 z późn. zm.).

Mapa

Zapytaj o tę ofertę

Lub zadzwoń