Kontakt

Budynek produkcyjno-usługowy Dąbrowa Białostocka

520 000 PLN

Cena:
520 000,00 zł
Powierzchnia:
851,00 m2
Cena za m2:
611,05 zł
Rynek:
Wtórny
Rok budowy:
1970
Id oferty:
1044/3877/OHS
Opis
Oferujemy na sprzedaż budynek przemysłowo-produkcyjny zlokalizowany w Dąbrowie Białostockiej, przy ulicy Tysiąclecia Państwa Polskiego. Nieruchomość, której powierzchnia całkowita wynosi 797 m², to doskonała propozycja dla inwestorów szukających przestrzeni do prowadzenia działalności produkcyjnej lub usługowej.

Atuty lokalizacji:
Dąbrowa Białostocka to miejscowość o spokojnym charakterze, idealna dla firm pragnących prowadzić działalność w mniej ruchliwym, ale dobrze skomunikowanym rejonie. Bliskość do głównych dróg asfaltowych zapewnia wygodny dostęp do większych miast i ułatwia logistykę. Dodatkowo, lokalizacja oferuje korzystne warunki do rozwoju biznesu w komfortowej, pozbawionej dużego hałasu i zgiełku okolicy.

Charakterystyka nieruchomości:
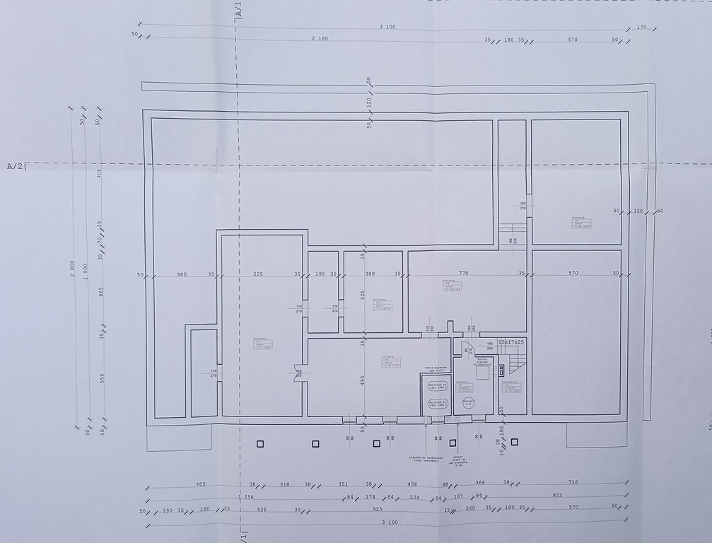
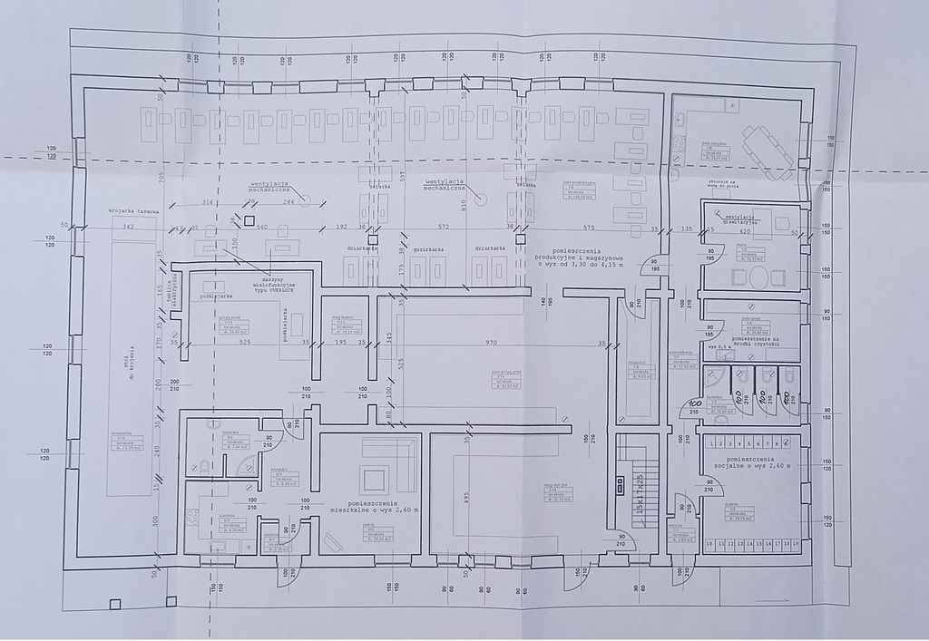
Budynek, zbudowany w 1970 roku, został utrzymany w dobrym stanie technicznym.
Na parterze znajduje się
- przestronna hala maszyn,
- pomieszczenia przygotowania produkcji,
- magazyn wyrobów gotowych, 
- pomieszczenie socjalne 
- część mieszkalna.
Część mieszkalna obejmuje kuchnię, łazienkę, korytarz, wejście oraz pokój, co może być wygodne dla pracowników lub właściciela firmy.
Piwnica mieści
- kotłownię olejową
- pomieszczenie gospodarcze.
Na terenie posesji znajdują się także dwa garaże.

Budynek cechuje się dużą powierzchnią użytkową - 745 m² - co czyni go idealnym dla różnorodnych działalności przemysłowych i usługowych. W razie potrzeby, istnieje możliwość zakupu nieruchomości wraz z wyposażeniem szwalni oraz know-how, co może stanowić dodatkowy atut dla potencjalnych nabywców.

Podstawowe dane techniczne:
Powierzchnia zabudowy: 651 m²
Powierzchnia części mieszkalnej: 48 m²
Powierzchnia części usługowej: 745 m²
Powierzchnia całkowita: 797 m²
Kubatura: 2600 m³

Cena nieruchomości brutto ( nie zawiera podatku VAT)

Uwaga jest możliwość zakupu z wyposażeniem szwalni oraz know-how !!!


Zapraszam na prezentację oraz po więcej informacji.

Kontakt do opiekuna oferty:

Stanisław Drobiński


Oferta Laureata Konkursu Lider Nieruchomości Otodom 2020 i 2021!

Niniejsze ogłoszenie nie stanowi oferty w rozumieniu Kodeksu Cywilnego, lecz ma charakter informacyjny.

Przedstawione wizualizacje i grafiki mają charakter wyłącznie poglądowy i stanowią wyłącznie materiał pomocniczy, ułatwiający zorientowanie się w ogólnym wyglądzie oferowanej nieruchomości.

Niniejsze ogłoszenie wraz z jego elementami jest własnością Północ Nieruchomości Sp z o.o. lub podmiotu współpracującego. Wszelkie prawa zastrzeżone. Kopiowanie, rozpowszechnianie oraz korzystanie z niniejszych materiałów w jakikolwiek inny sposób wykraczający poza dozwolony użytek określony przepisami ustawy z 4 lutego 1994 r. o prawie autorskim i prawach pokrewnych (Dz. U. 1994, nr 24 poz. 83 z późn. zm.) bez pisemnej zgody Północ Nieruchomości Sp z o.o. lub podmiotów współpracujących jest zabronione i może stanowić podstawę odpowiedzialności cywilnej oraz karnej.

Niniejsze materiały stanowią tajemnicę przedsiębiorstwa PÓŁNOC NIERUCHOMOŚCI Sp. z o.o. w rozumieniu ustawy z dnia 16 kwietnia 1993 r. o zwalczaniu nieuczciwej konkurencji (Dz. U. z 2003 r., Nr 153, poz. 1503 z późn. zm.).

Zapytaj o tę ofertę