Kontakt
Nr oferty: 124131/3877/OMS

REZERWACJA - 4pok. /balkon/siłownia/hala garażowa

Orunia Górna, Pastelowa zobacz na mapie

649 900 PLN

Szczegóły oferty

Cena:
649 900,00 zł
Powierzchnia:
62,00 m2
Cena za m2:
10 482,26 zł
Rok budowy:
2022
Liczba pięter:
4
Piętro:
2
Garaż/Miejsca parkingowe:
tak
Rynek:
Wtórny
Rodzaj budynku:
Budynek apartamentowy
Liczba pokoi:
4
Typ kuchni:
Aneks
Winda:
tak
Id oferty:
124131/3877/OMS

Opis

REZERWACJA

Atrakcyjne nowe 4 pokojowe mieszkanie w stanie deweloperskim, w inwestycji - Osiedle Pastelowe cenionego dewelopera Dekpol.
Osiedle zlokalizowane na Gdańskiej Oruni Górnej - Gdańsk Południe przy ul. Pastelowej.

Oferta z rynku wtórnego -  Mieszkanie dostępne od zaraz 
(Taniej niż u Dewelopera !)

forma własności: 
Lokal stanowiący odrębną nieruchomość - księga wieczysta bez obciążeń

Link do prezentacji YouTube
https://www.youtube.com/watch?v=5stEEQdesXQ

Wirtualny Spacer
https://my.matterport.com/show/?m=fAGVTYEFBbr

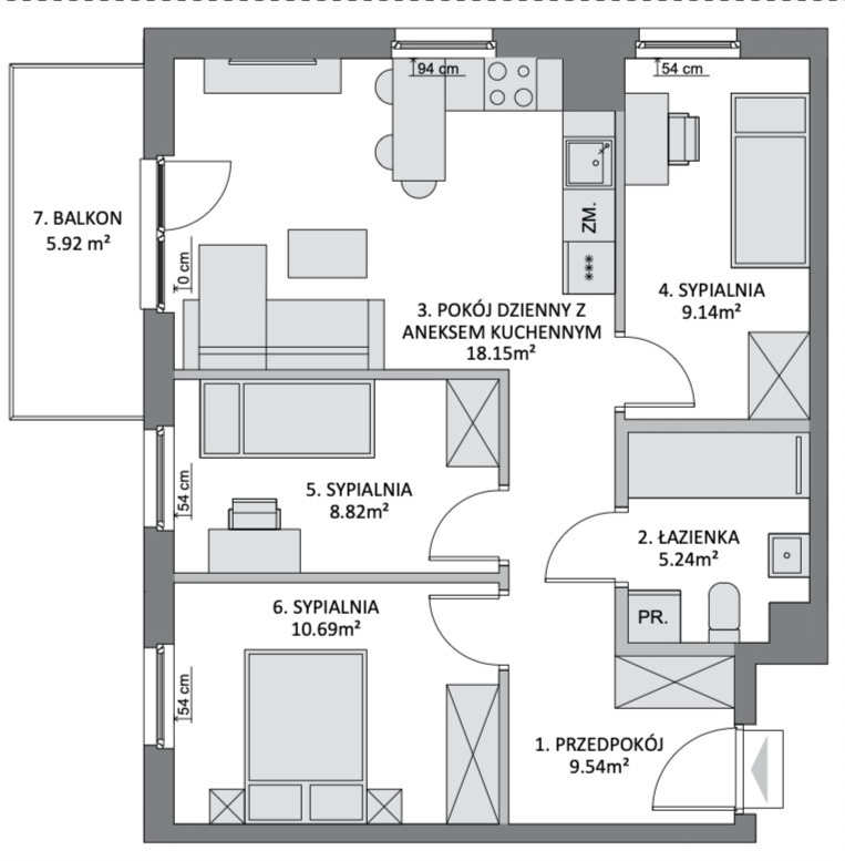
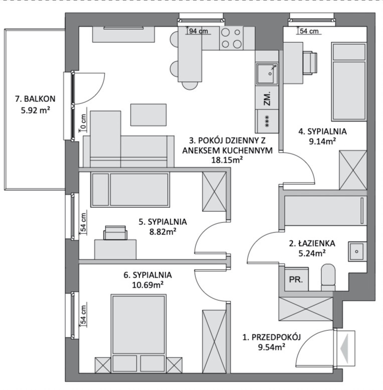
Nieruchomość o powierzchni 61,62 m2 składa się z:
- salonu z aneksem kuchennym (18,15 m2) z wyjściem na balkon (5,92 m2)
- sypialni (10,69 m2)
- sypialni/ pokoju dziecięcego (9,14 m2) 
- sypialni/ pokoju dziecięcego (8,82 m2)
- łazienki (5,24 m2)
- przedpokoju (9,54 m2)

Ekspozycja względem stron świata: PÓŁNOCNY - ZACHÓD

* Do przedmiotowego lokalu przynależy osobiste miejsca parkingowe w hali garażowej oraz komórka lokatorska o powierzchni (1,64 m2) - zestaw płatny dodatkowo 50 000 zł

Pastelowa to najnowsza inwestycja stworzona dla osób, które pragną aktywnie wypoczywać w zaciszu natury, jednocześnie pozostając w stałym kontakcie z centrum miasta. Inwestycję wyróżnia zastosowanie ekologicznych rozwiązań, a także ponad 30-metrowe odległości między budynkami. 

Na terenie osiedla znajdują się: nowoczesny kompleks handlowo-usługowy oraz sklep ALDI, dodatkowo sala rekreacji (strefa FITNESS wyłącznie dla mieszkańców),
nowoczesne place zabaw oraz zadaszone miejsca postojowe dla rowerów.
W trosce o codzienny komfort mieszkańców budynki wyposażone zostały w nowoczesne cichobieżne windy oraz monitoring.

Atutem Osiedla jest jego lokalizacja, w odległości zaledwie 7 km od Dworca Głównego (11 minut autem) da mieszkańcom wiele możliwości. Dzięki znajdującemu się niedaleko inwestycji przystankowi autobusowemu osoby zamieszkujące kompleks będą mogły szybko i wygodnie dostać się do centrum miasta i korzystać z jego bogatej infrastruktury.

Bezpieczeństwo transakcji chronione polisą OC !

Jesteśmy z Państwem na każdym etapie procesu zakupu nieruchomości począwszy od wyboru oferty i jej prezentacji po finalizację transakcji i przekazanie nieruchomości nowym właścicielom. Pomagamy we wszelkich formalnościach związanych z uzyskaniem kredytu na zakup nieruchomości. Nasz doradca kredytowy bezpłatnie pomoże sprawdzić zdolność kredytową, przedstawi najkorzystniejszą propozycję spośród oferty 21 banków i sprawnie przeprowadzi Państwa przez proces realizacji kredytu.

Już dziś umów się na prezentację i zaproponuj swoją cenę !

Niniejsze ogłoszenie nie stanowi oferty w rozumieniu Kodeksu Cywilnego, lecz ma charakter informacyjny.

Przedstawione wizualizacje i grafiki mają charakter wyłącznie poglądowy i stanowią wyłącznie materiał pomocniczy, ułatwiający zorientowanie się w ogólnym wyglądzie oferowanej nieruchomości.

Niniejsze ogłoszenie wraz z jego elementami jest własnością Północ Nieruchomości Sp z o.o. lub podmiotu współpracującego. Wszelkie prawa zastrzeżone. Kopiowanie, rozpowszechnianie oraz korzystanie z niniejszych materiałów w jakikolwiek inny sposób wykraczający poza dozwolony użytek określony przepisami ustawy z 4 lutego 1994 r. o prawie autorskim i prawach pokrewnych (Dz. U. 1994, nr 24 poz. 83 z późn. zm.) bez pisemnej zgody Północ Nieruchomości Sp z o.o. lub podmiotów współpracujących jest zabronione i może stanowić podstawę odpowiedzialności cywilnej oraz karnej.

Niniejsze materiały stanowią tajemnicę przedsiębiorstwa PÓŁNOC NIERUCHOMOŚCI Sp. z o.o. w rozumieniu ustawy z dnia 16 kwietnia 1993 r. o zwalczaniu nieuczciwej konkurencji (Dz. U. z 2003 r., Nr 153, poz. 1503 z późn. zm.).

Mapa

Zapytaj o tę ofertę

Lub zadzwoń