Kontakt
Nr oferty: 123242/3877/OMS

Apartament 500 m od morza

Gdańsk, ul. Lipowa zobacz na mapie

716 254 PLN

Szczegóły oferty

Cena:
716 254,00 zł
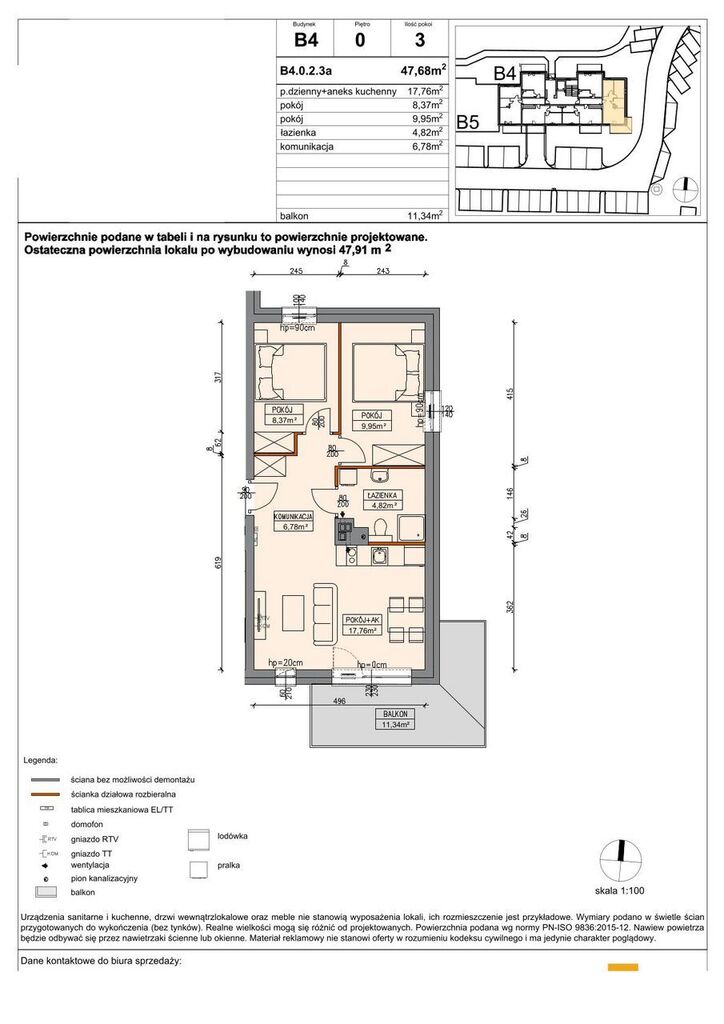
Powierzchnia:
47,91 m2
Cena za m2:
14 950,00 zł
Rok budowy:
2025
Liczba pięter:
3
Garaż/Miejsca parkingowe:
tak
Rynek:
Pierwotny
Rodzaj budynku:
Dom wielolokalowy
Liczba pokoi:
3
Typ kuchni:
Aneks
Id oferty:
123242/3877/OMS

Opis

  • Zaledwie 500 m od pięknej stegieńskiej piaszczystej plaży, w otoczeniu sosnowego lasu, znajduje się gotowy kompleks apartamentów wakacyjnych.
  • W trzypiętrowych budynkach znajdują się apartamenty o metrażach i układach, spełniających różne potrzeby: od jednopokojowych o pow. 26 m2 po kompaktowe, ale funkcjonalnie rozplanowane trzypokojowe apartamenty, których powierzchnia nie przekracza 52 m2. Lokale posiadają ogródki lub duże balkony
  • Teren inwestycji jest ogrodzony i chroniony.
  • Dojście do strzeżonej plaży zajmie Ci zaledwie 7 minut
  • Podziemne hale garażowe
  • Budynki zamieszkania zbiorowego, apartamenty wakacyjne - sprzedaż z 23% VAT
  • Wszystkie budynki są zakończone, mają pozwolenie na użytkowanie.
  • Ogrzewanie jest elektryczne.
  • Lokale sprzedajemy w stanie deweloperskim, ale wychodząc naprzeciw oczekiwaniom nabywców, nawiązaliśmy współpracę ze sprawdzonymi firmami wykończeniowymi, które zapewnią naszym Klientom kompleksową i profesjonalną obsługę na każdym etapie realizacji, od projektu do pełnego wykończenia lokalu. Poniżej prezentujemy zdjęcia z lokalu pokazowego, zrealizowanego przez jednego z naszych partnerów.
  • Dla bezpieczeństwa i komfortu nabywców sprzedaż apartamentów w Stegnie rozpoczęliśmy dopiero w końcowej fazie budowy projektu. Dzięki temu kupujący może wejść do lokalu, ocenić rozkład pomieszczeń, sprawdzić jak operuje światło, zweryfikować jakość wykonania. Kupno takiego apartamentu to także dodatkowa korzyść dla osób szukających apartamentów w celach inwestycyjnych – gotowy lokal może zacząć przynosić przychody po niespełna dwóch miesiącach od zakupu.
  • Lokale można użytkować samemu lub je wynajmować. Nabywcom zainteresowanym późniejszym wynajmem lokali możemy zaoferować usługi doświadczonego operatora – firmy NCNK, która od pond 10 lat specjalizuje się w najmie apartamentów wakacyjnych na Mierzei Wiślanej. Obsługa najmu przez profesjonalną firmę to niewątpliwie wygoda i duża oszczędność czasu. Jeśli mowa o oszczędnościach to należy pamiętać, że możliwość odliczenia 23% VAT (taką stawką objęte są lokale w Stegnie) mają nawet nabywcy nieprowadzące działalności gospodarczej.

Niniejsze ogłoszenie nie stanowi oferty w rozumieniu Kodeksu Cywilnego, lecz ma charakter informacyjny.

Przedstawione wizualizacje i grafiki mają charakter wyłącznie poglądowy i stanowią wyłącznie materiał pomocniczy, ułatwiający zorientowanie się w ogólnym wyglądzie oferowanej nieruchomości.

Niniejsze ogłoszenie wraz z jego elementami jest własnością Północ Nieruchomości Sp z o.o. lub podmiotu współpracującego. Wszelkie prawa zastrzeżone. Kopiowanie, rozpowszechnianie oraz korzystanie z niniejszych materiałów w jakikolwiek inny sposób wykraczający poza dozwolony użytek określony przepisami ustawy z 4 lutego 1994 r. o prawie autorskim i prawach pokrewnych (Dz. U. 1994, nr 24 poz. 83 z późn. zm.) bez pisemnej zgody Północ Nieruchomości Sp z o.o. lub podmiotów współpracujących jest zabronione i może stanowić podstawę odpowiedzialności cywilnej oraz karnej.

Niniejsze materiały stanowią tajemnicę przedsiębiorstwa PÓŁNOC NIERUCHOMOŚCI Sp. z o.o. w rozumieniu ustawy z dnia 16 kwietnia 1993 r. o zwalczaniu nieuczciwej konkurencji (Dz. U. z 2003 r., Nr 153, poz. 1503 z późn. zm.).

Mapa

Zapytaj o tę ofertę

Lub zadzwoń