Kontakt
Nr oferty: 114379/3877/OMS

APARTAMENT 149 M2 z ogrodem - stan deweloperski

Lesznowola, Jedności zobacz na mapie

1 150 000 PLN

Szczegóły oferty

Cena:
1 150 000,00 zł
Powierzchnia:
149,28 m2
Cena za m2:
7 703,64 zł
Rok budowy:
2023
Liczba pięter:
2
Garaż/Miejsca parkingowe:
tak
Rynek:
Pierwotny
Rodzaj budynku:
Budynek apartamentowy
Liczba pokoi:
6
Typ kuchni:
Otwarta
Id oferty:
114379/3877/OMS

Opis

BEZ PROWIZJI
BEZ PCC

Przedstawiam ofertę sprzedaży dwupoziomowego apartamentu o powierzchni 149,28 m2 w stanie deweloperskim z ogrodem 180 m2.
Lokal mieszkalny w wyjątkowej pod każdym względem inwestycji w miejscowości Lesznowola.
Każdy z apartamentów dwupoziomowych oświetlony jest za pośrednictwem dużych okien o wysokości ponad 5 metrów. Dodatkowo posiada duży, indywidualnie zaaranżowany ogródek, balkon i taras.
Do każdego apartamentu przynależy garaż znajdujący się w bryle budynku wraz z miejscem postojowym przed budynkiem.

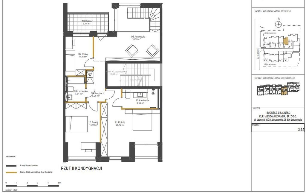
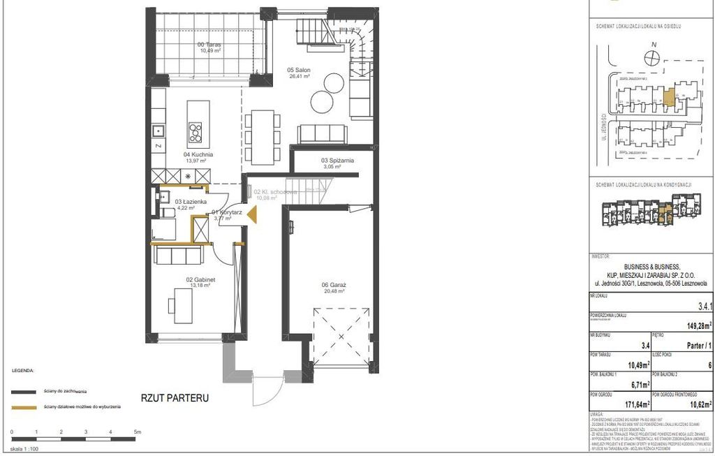
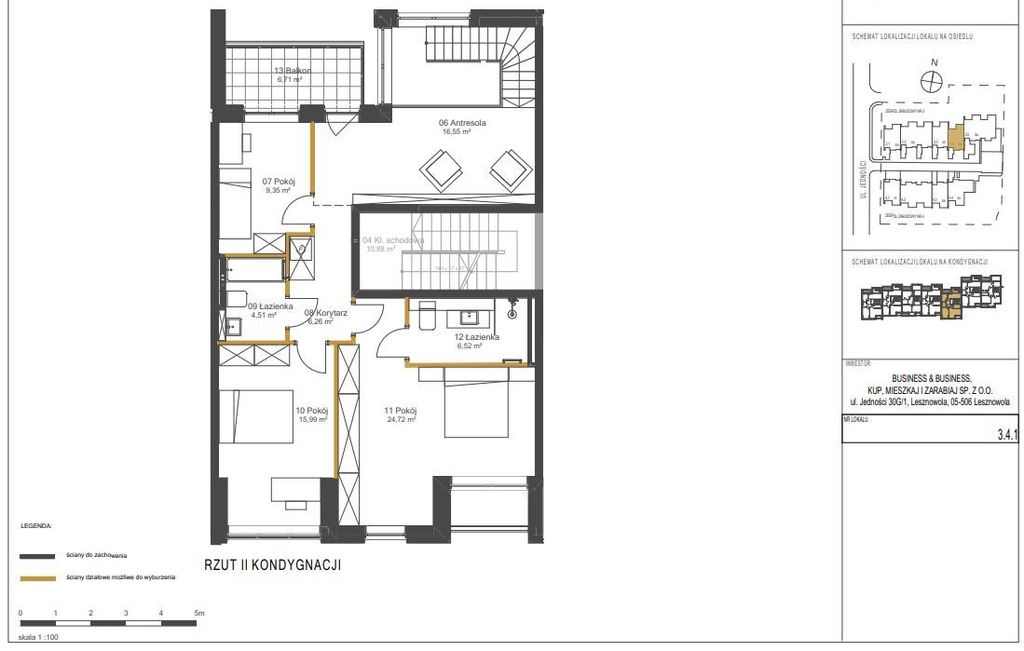
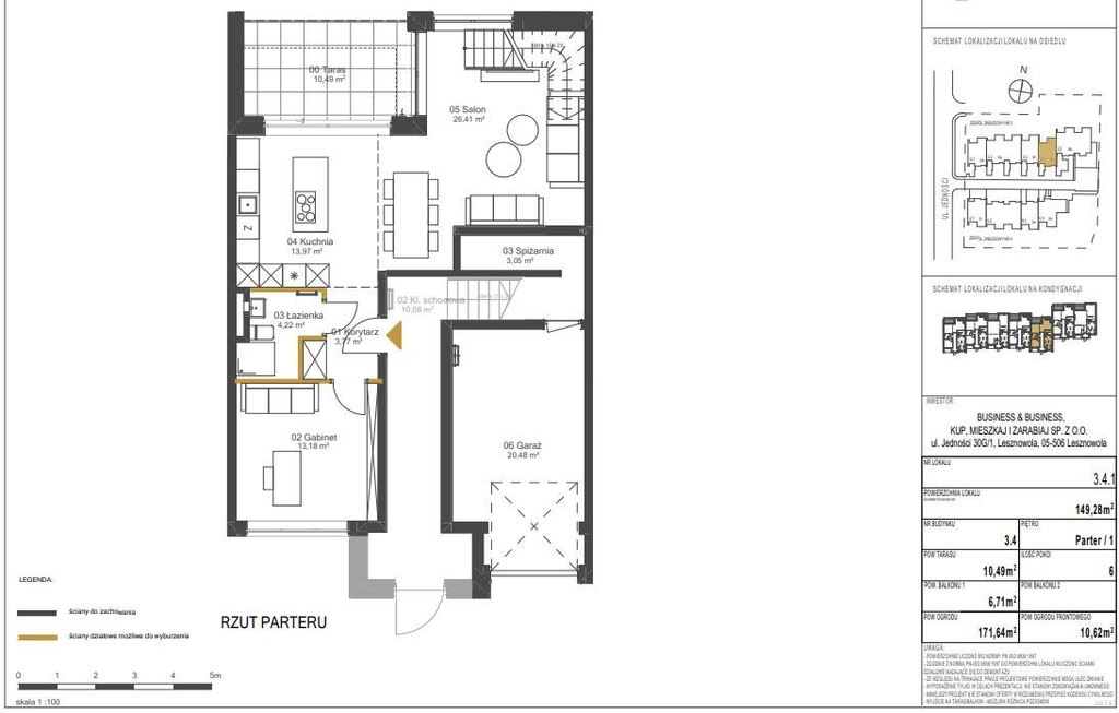
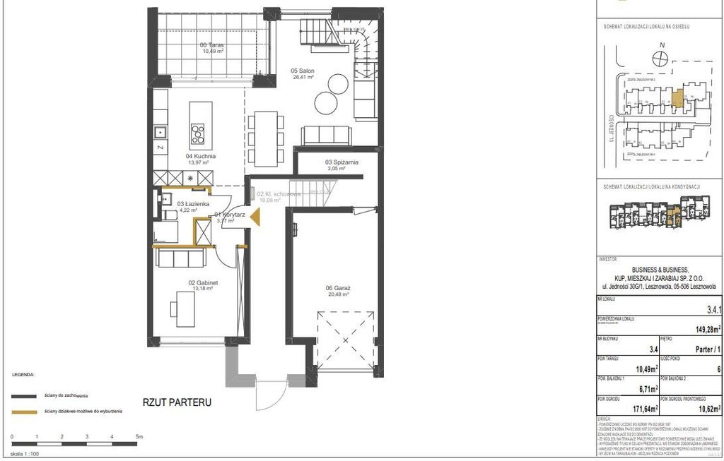
ROZKŁAD APARTAMENTU :
I KONDYGNACJA :

Kuchnia - 13,97 m²
Gabinet - 13,18 m²
Łazienka - 4,22 m²
Salon - 26,41 m²
Korytarz - 3,77 m²
Taras- 10,49 m²

Do apartamentu przynależy :
Ogród - 180 m²
Garaż - 20,48 m²
Spiżarnia - 3,05 m²

II KONDYGNACJA :

Antresola - 16,55 m²
Pokój 1 - 9,35 m²
Pokój 2 - 15,99 m²
Pokój 3 - 24,72 m²
Łazienka 1 - 4,51 m²
Łazienka 2- 6,52 m²
Korytarz - 6,26 m²
Balkon - 6,71 m²

ATUTY INWESTYCJI:

- tylko 25 lokali na kameralnym zamkniętym osiedlu,
- apartamenty w stanie deweloperskim do własnej aranżacji,
- apartamenty gotowe do odbioru na przełomie kwiecień/maj 2023
- duże okna 5 metrowe w salonie - mieszkania doskonale doświetlone
- nowoczesny design o wysokim standardzie technicznym, dobrze doświetlone, funkcjonalne układy
- INSTALACJA REKUPERACJI - Energooszczędny system wentylacji wszystkich pomieszczeń
- KLIMATYZACJA - Wszystkie mieszkania wyposażone są w instalacje klimatyzacji
- Ogrzewanie podłogowe - pompa ciepła
- SMART HOME - w standardzie

LOKALIZACJA:

- W odległości 2 km od osiedla węzeł Lesznowola trasy S7 zapewniającej szybki dojazd do Centrum Warszawy, jak również na trasy wyjazdowe ze stolicy.
- 5 km do stacji kolejowej Nowa Iwiczna. Dojazd samochodem do stacji zajmuje 7 minut. Do stacji można dojechać także autobusem – zajmuje to 15 minut, a przystanek znajduje się tuż obok osiedla
- Przy samym osiedlu zlokalizowany jest przystanek autobusowy linii L1 kursujący pomiędzy Pl. Szwedzkim a PKP Piaseczno. Przystanek dalej można przesiąść się w dalekobieżną linię 807
- D-Transport publiczny na terenie Gminy Lesznowola prowadzony jest przez Warszawski Transport Publiczny, pociągi Kolei Mazowieckiej oraz linie uzupełniające L. Na wyżej wymienionych liniach honorowany jest wspólny bilet.
- Łatwy dostęp do sklepów i punktów usługowych, co ułatwia codzienne życie i pozwala oszczędzić czas, (Urząd Gminy - 1,6 km/ 3 min, ZSP Lesznowola - 2,5 km m/ 4 min , Przychodnia NZOZ - 3,2 km / 4 min, Pizzeria - 1,6 km/3 min, Restauracja - 2,4 km/ 4 min, stacja paliw - 2,3 km / 4 min, Centrum Handlowe Janki - 6,9 km / 12 min.)
- W okolicy, na terenie osiedla : Sklep spożywczy, plac zabaw dla dzieci, siłownia plenerowa.

Osiedle zostało zaprojektowane z myślą o klientach, którzy oczekują czegoś więcej od mieszkania. Przestrzenie zostały zaaranżowane w taki sposób, aby zapewnić najbardziej dogodny rozkład i wypełnić pomieszczenia światłem. Budynki zostały wykończone stiukiem weneckim w stonowanych i eleganckich barwach, a nowoczesne formy stanowią ich doskonałe zwieńczenie.
Na terenie inwestycji znajduje się zielona strefa wypoczynku, a także plac zabaw dla dzieci.
Dostępny tylko dla mieszkańców inwestycji zaaranżowany ogród zaprasza do chwili wytchnienia na świeżym powietrzu.
A wszystko po to, aby mieszkańcy każdego dnia mogli pozwolić sobie na relaks w kameralnej przestrzeni.


MIESZKANIE ZNAJDUJE SIĘ W ZESPOLE EKSKLUZYWNYCH APARTAMENTÓW - niebawem inne dostępne w ofercie :
Na osiedlu mamy do dyspozycji dla przyszłych klientów 8 dwupoziomowych apartamentów o powierzchni od 147 do 180 m2. Wyróżniają się dużymi ponad 5-metrowymi oknami oraz indywidualnie zaaranżowanymi ogrodami.
Na II piętrach 14 mieszkań dwu-, trzy- i czteropokojowych w stylu penthouse, w najbardziej cenionych na rynku metrażach. Mamy też 140-metrowe penthouse’y z tarasami na dachu.


Potrzebujesz pomocy przy wyborze kredytu hipotecznego ?
Nasi wykwalifikowani doradcy finansowi z ponad 15 letnim doświadczeniem bezpłatnie pomogą w przejściu skomplikowanego procesu kredytowego i w wyborze najlepszej oferty.

Zachęcam do kontaktu w celu uzyskania szczegółów nt. mieszkania i całej inwestycji.

NIE CZEKAJ - ZADZWOŃ I ZOBACZ NA ŻYWO :)

Niniejsze ogłoszenie nie stanowi oferty w rozumieniu Kodeksu Cywilnego, lecz ma charakter informacyjny.

Przedstawione wizualizacje i grafiki mają charakter wyłącznie poglądowy i stanowią wyłącznie materiał pomocniczy, ułatwiający zorientowanie się w ogólnym wyglądzie oferowanej nieruchomości.

Niniejsze ogłoszenie wraz z jego elementami jest własnością Północ Nieruchomości Sp z o.o. lub podmiotu współpracującego. Wszelkie prawa zastrzeżone. Kopiowanie, rozpowszechnianie oraz korzystanie z niniejszych materiałów w jakikolwiek inny sposób wykraczający poza dozwolony użytek określony przepisami ustawy z 4 lutego 1994 r. o prawie autorskim i prawach pokrewnych (Dz. U. 1994, nr 24 poz. 83 z późn. zm.) bez pisemnej zgody Północ Nieruchomości Sp z o.o. lub podmiotów współpracujących jest zabronione i może stanowić podstawę odpowiedzialności cywilnej oraz karnej.

Niniejsze materiały stanowią tajemnicę przedsiębiorstwa PÓŁNOC NIERUCHOMOŚCI Sp. z o.o. w rozumieniu ustawy z dnia 16 kwietnia 1993 r. o zwalczaniu nieuczciwej konkurencji (Dz. U. z 2003 r., Nr 153, poz. 1503 z późn. zm.).

Mapa

Zapytaj o tę ofertę

Lub zadzwoń