Kontakt
Nr oferty: 125040/3877/OMS

48 m2, 3 pokoje, Czechów, po remoncie!!!

Lublin zobacz na mapie

559 000 PLN

Szczegóły oferty

Cena:
559 000,00 zł
Powierzchnia:
48,10 m2
Cena za m2:
11 621,62 zł
Rok budowy:
1978
Liczba pięter:
4
Piętro:
3
Rynek:
Wtórny
Rodzaj budynku:
Niski blok
Liczba pokoi:
3
Typ kuchni:
Oddzielna
Id oferty:
125040/3877/OMS

Opis

Oferowana nieruchomość to słoneczne 3 pokojowe mieszkanie usytuowane na Czechowie (osiedle S. Monoiuszki). 

Idealna propozycja dla rodziny oraz jako inwestycja pod wynajem (blisko Uniwersytet Medyczny).

MIESZKANIE PO GENERALNYM REMONCIE !!!
Zakres remontu obejmuje :
- gładzie na ścianach i sufitach
- wymianę wszystkich instalacji elektrycznych, oraz wodno-kanalizacyjnych,
- wymianę sanitariatów,
- wymianę oświetlenia,
- wymianę podłóg (panele 10 mm klasa AC5, gres) 
- wymianę stolark drzwiowej wewnętrznej i zewnętrznej. 
- meble kuchenne w zabudowie robione na zamówienie u stolarza (w cenie mieszkania sprzęt AGD: piekarnik, płyta indukcyjna, okap, zlew)

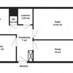
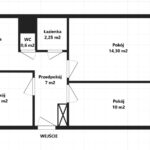
Na powierzchni 48,10 m2 znajdują się:
  • salon z wyjściem na balkon 14,30 m2
  • sypialnia 10 m2
  • sypialnia 7,90 m2
  • kuchnia 6 m2
  • łazienkia 2,25 m2
  • wc 0,6 m2
  • przedpokój 7 m2
Do mieszkania przynależy balkon o pow. ok. 1 m2  oraz piwnica.

Ekspozycja okien: Północ, Południe

Opłaty eksploatacyjne: czynsz 600 zł, (w czynszu zaliczki m. in. na zimną i ciepłą wodę, centralne ogrzewanie (z sieci miejskiej), gaz, wywóz nieczystości, fundusz remontowy. Dodatkowo płatne media to tylko prąd. Brak piecyka gazowego w mieszkaniu, ciepła woda oraz ogrzewanie z sieci miejskiej !!! 

Stan prawny: Lokal stanowiący odrębną nieruchomość (bez zadłużeń).

Budynek: Blok wybudowany w technologii Wielkiej Płyty, powstały w 1983r., 4 piętrowy, zadbana klatka schodowa. Teren wokół budynku zagospodarowany z alejkami, trawnikami obsadzonymi drzewami oraz krzewami ozdobnymi.

Lokalizacja: Czechów, Osiedle S. Monoiuszki, miejsce, które oferuje wszelką potrzebną  do życia infrastrukturę  taką jak: wszelkiej maści sklepy i usługi, szkoły, place zabaw, kościół oraz bliską odległość od uniwersytetów, dzięki czemu powyższa nieruchomość sprawdzi się jako inwestycja pod wynajem i lokata kapitału.  Doskonałą komunikację z każdą częścią miasta zapewniają liczne linie autobusowe.

JEŻELI SZUKASZ FINANSOWANIA TEGO MIESZKANIA, WSPÓŁPRACUJĘ ZE SKUTECZNYM DORADCĄ KREDYTOWYM, USŁUGA KREDYTOWA JEST BEZPŁATNA.

Zapraszam na prezentację
Łukasz 509 927 460

Niniejsze ogłoszenie nie stanowi oferty w rozumieniu Kodeksu Cywilnego, lecz ma charakter informacyjny.

Przedstawione wizualizacje i grafiki mają charakter wyłącznie poglądowy i stanowią wyłącznie materiał pomocniczy, ułatwiający zorientowanie się w ogólnym wyglądzie oferowanej nieruchomości.

Niniejsze ogłoszenie wraz z jego elementami jest własnością Północ Nieruchomości Sp z o.o. lub podmiotu współpracującego. Wszelkie prawa zastrzeżone. Kopiowanie, rozpowszechnianie oraz korzystanie z niniejszych materiałów w jakikolwiek inny sposób wykraczający poza dozwolony użytek określony przepisami ustawy z 4 lutego 1994 r. o prawie autorskim i prawach pokrewnych (Dz. U. 1994, nr 24 poz. 83 z późn. zm.) bez pisemnej zgody Północ Nieruchomości Sp z o.o. lub podmiotów współpracujących jest zabronione i może stanowić podstawę odpowiedzialności cywilnej oraz karnej.

Niniejsze materiały stanowią tajemnicę przedsiębiorstwa PÓŁNOC NIERUCHOMOŚCI Sp. z o.o. w rozumieniu ustawy z dnia 16 kwietnia 1993 r. o zwalczaniu nieuczciwej konkurencji (Dz. U. z 2003 r., Nr 153, poz. 1503 z późn. zm.).

Mapa

Zapytaj o tę ofertę

Lub zadzwoń