Opis
Prezentujemy Państwu mieszkania w stanie deweloperskim, w wyjątkowej inwestycji w Nowym Sączu
- odbiór w IV kwartale 2027 roku
Bez podatku PCC/ bez dodatkowych kosztów/ Prowizja 0%
Oferta dotyczy 2 pokojowego mieszkania o powierzchni 32,15 metrów kwadratowych, na parterze, w którego skład wchodzi:
przedpokój
salon z aneksem kuchennym
sypialnia
łazienka
Do mieszkania przynależy ogródek (41,57m2)
Dodatkowo:
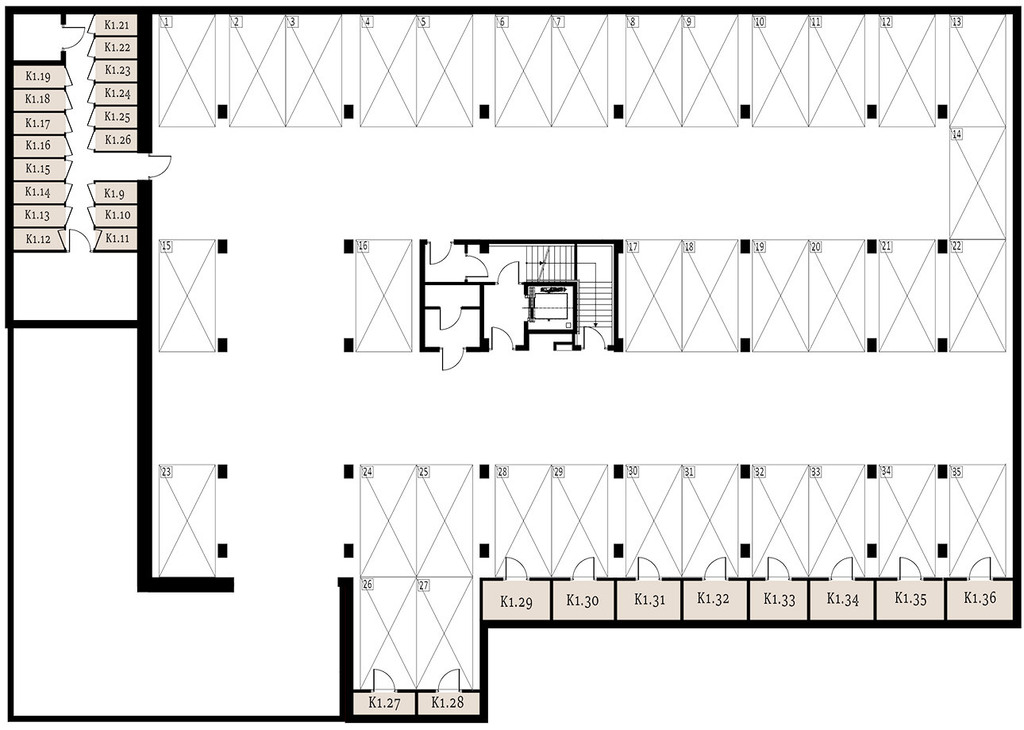
Miejsce parkingowe w garażu podziemnym:
Miejsca nr 26 oraz 27 - 32 400pln
Pozostałe miejsca postojowe - 64 800pln
Komórka lokatorska
nr 1.9 - 1.28 - 16 200pln
nr 1.29 - 1.36 - 21 600pln
*** Posiadamy w ofercie 20 mieszkań o różnych powierzchniach - zapraszam do kontaktu
IINWESTYCJA
Prezentowane apartamenty to Twoje nwoczesne życie w spokojnej, zielonej części Nowego Sącza
Nowoczesny design, wysoki standard, komfort na co dzień – wszystko w jednym miejscu.
Kameralna inwestycja, która łączy elegancję, funkcjonalność i wygodę. Idealna dla osób, które chcą mieszkać nowocześnie, bezpiecznie i w otoczeniu zieleni, a jednocześnie mieć szybki dostęp do pełnej infrastruktury miasta.
W budynku znajduje się 35 komfortowych mieszkań o powierzchni od 30 do 60 m². Każde z nich zostało zaprojektowane tak, aby maksymalnie wykorzystać przestrzeń i naturalne światło.
Do wyboru są mieszkania z balkonami, loggiami lub ogródkami, co daje możliwość stworzenia własnej prywatnej strefy relaksu.
Atuty inwestycji:
• Winda w budynku
• Podziemny parking
• Komórki lokatorskie
• Monitoring i kontrola dostępu
• Energooszczędne technologie obniżające koszty utrzymania
• Możliwość wykończenia pod klucz
LOKALIZACJA
W pobliżu znajdują się sklepy, szkoły, przedszkola, uczelnia WSB-NLU, komunikacja miejska oraz tereny zielone.
To idealne miejsce dla rodzin, par i osób pracujących zdalnie, które chcą żyć spokojnie, ale blisko miasta.
Termin oddania: IV kwartał 2027
To miejsce, które łączy ciszę i prywatność z wygodą życia blisko centrum.
Po więcej informacji zapraszam do kontaktu
Sabina Szamreta
Doradca ds. nieruchomości
880-762-675
sszamreta@polnoc.pl
PÓŁNOC Nieruchomości Sp. z o.o.
Niniejsze ogłoszenie nie stanowi oferty w rozumieniu Kodeksu Cywilnego, lecz ma charakter informacyjny.
Przedstawione wizualizacje i grafiki mają charakter wyłącznie poglądowy i stanowią wyłącznie materiał pomocniczy, ułatwiający zorientowanie się w ogólnym wyglądzie oferowanej nieruchomości.
Niniejsze ogłoszenie wraz z jego elementami jest własnością Północ Nieruchomości Sp z o.o. lub podmiotu współpracującego. Wszelkie prawa zastrzeżone. Kopiowanie, rozpowszechnianie oraz korzystanie z niniejszych materiałów w jakikolwiek inny sposób wykraczający poza dozwolony użytek określony przepisami ustawy z 4 lutego 1994 r. o prawie autorskim i prawach pokrewnych (Dz. U. 1994, nr 24 poz. 83 z późn. zm.) bez pisemnej zgody Północ Nieruchomości Sp z o.o. lub podmiotów współpracujących jest zabronione i może stanowić podstawę odpowiedzialności cywilnej oraz karnej.
Niniejsze materiały stanowią tajemnicę przedsiębiorstwa PÓŁNOC NIERUCHOMOŚCI Sp. z o.o. w rozumieniu ustawy z dnia 16 kwietnia 1993 r. o zwalczaniu nieuczciwej konkurencji (Dz. U. z 2003 r., Nr 153, poz. 1503 z późn. zm.).