Kontakt

SPRZEDANE - GOTOWE 2 pok z aneksem, balkon

Radzionków, Władysława Stanisława Reymonta zobacz na mapie

309 660 PLN

Cena:
309 660,00 zł
Powierzchnia:
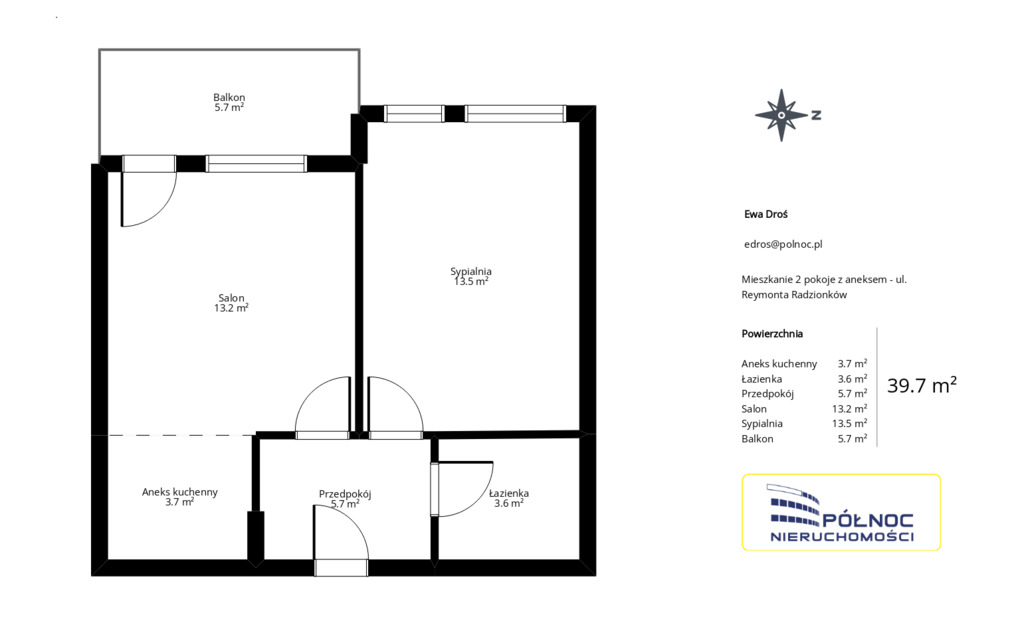
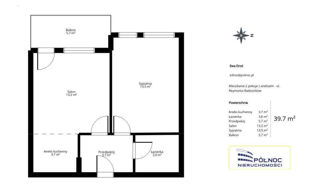
39,70 m2
Cena za m2:
7 800,00 zł
Rok budowy:
2022
Liczba pięter:
2
Garaż/Miejsca parkingowe:
tak
Rynek:
Pierwotny
Rodzaj budynku:
Niski blok
Liczba pokoi:
2
Typ kuchni:
Aneks
Id oferty:
118581/3877/OMS
Opis
Zamieszkaj w Radzionkowie i korzystaj na co dzień z wszelkich udogodnień jakie oferuje te miasto!

SPRZEDANE- Zapraszamy do  kontaktu i zapoznania się z pozostałymi ofertami lokali

Na sprzedaż nowoczesne 2-pokojowe mieszkanie z aneksem kuchennym, balkonem o powierzchni 39.70m2 zlokalizowane w Radzionkowie na ulicy Władysława Reymonta.
Bardzo dobra inwestycja! Mieszkanie znajduje się na nowoczesnym osiedlu w nowo wybudowanym budynku.


Mieszkanie idealne dla osób poszukujących gotowego do zamieszkania lokum.Zamieszkaj w nim jako pierwszy.
Kupujący nie płaci 2% podatku PCC! 


Mieszkanie to propozycja kierowana do ludzi, którzy poszukują spokojnego miejsca do życia, nie rezygnując z udogodnień, jakie oferuje centrum miasta.
Lokalizacja osiedla sprawia, że jest to idealne mieszkania zarówno dla siebie jak i pod inwestycję, dzięki topowej lokalizacji, bliskości pełnej infrastruktury i świetnym dojazdem do sąsiednich miast!

W SKŁAD MIESZKANIA WCHODZĄ:
+ salon z aneksem kuchennym - 16.87 m2
+ sypialnia - 13.51 m2
+ przedpokój - 5.7 m2
+ łazienka - 3.62 m2
+ balkon - 4.9 m2

dodatkowo:
+komórka lokatorska - 6.09 m2
+miejsce postojowe

ZALETY MIESZKANIA:
+ mieszkanie wykończone bez umeblowania,
+ nowoczesny standard wykończenia budynku,
+ balkon,
+ żaluzje antywłamaniowe,
+ spokojna okolica,
+  miejsca postojowe.
Możliwość zakupu miejsca parkingowego oraz komórki lokatorskiej.



Zainteresowała Cię ta oferta
Zadzwoń i umów się na spotkanie :)
Czekam na Twój telefon 7 dni w tygodniu.

Jak nie odbiorę - na pewno oddzwonię.

Jako biuro jesteśmy z Tobą na każdym etapie procesu zakupu nieruchomości począwszy od wyboru oferty i jej prezentacji po finalizację transakcji i przekazanie nieruchomości nowym właścicielom. Pomagamy we wszelkich formalnościach związanych z uzyskaniem kredytu na zakup nieruchomości. Nasz doradca kredytowy bezpłatnie pomoże sprawdzić zdolność kredytową, przedstawi najkorzystniejszą propozycję spośród oferty banków i sprawnie przeprowadzi Państwa przez proces realizacji kredytu.

Ewa Droś

Dyrektor oddziału
797 252 624
edros@polnoc.pl
PÓŁNOC Nieruchomości o. Radzionków
534 648 560
Męczenników Oświęcimia 34/1
41-922 Radzionków

Niniejsze ogłoszenie nie stanowi oferty w rozumieniu Kodeksu Cywilnego, lecz ma charakter informacyjny.

Przedstawione wizualizacje i grafiki mają charakter wyłącznie poglądowy i stanowią wyłącznie materiał pomocniczy, ułatwiający zorientowanie się w ogólnym wyglądzie oferowanej nieruchomości.

Niniejsze ogłoszenie wraz z jego elementami jest własnością Północ Nieruchomości Sp z o.o. lub podmiotu współpracującego. Wszelkie prawa zastrzeżone. Kopiowanie, rozpowszechnianie oraz korzystanie z niniejszych materiałów w jakikolwiek inny sposób wykraczający poza dozwolony użytek określony przepisami ustawy z 4 lutego 1994 r. o prawie autorskim i prawach pokrewnych (Dz. U. 1994, nr 24 poz. 83 z późn. zm.) bez pisemnej zgody Północ Nieruchomości Sp z o.o. lub podmiotów współpracujących jest zabronione i może stanowić podstawę odpowiedzialności cywilnej oraz karnej.

Niniejsze materiały stanowią tajemnicę przedsiębiorstwa PÓŁNOC NIERUCHOMOŚCI Sp. z o.o. w rozumieniu ustawy z dnia 16 kwietnia 1993 r. o zwalczaniu nieuczciwej konkurencji (Dz. U. z 2003 r., Nr 153, poz. 1503 z późn. zm.).

Mapa

Zapytaj o tę ofertę

Lub zadzwoń