Kontakt
Nr oferty: 118877/3877/OMS

Wygodne mieszkanie dla rodziny w spokojnej okolicy

Zamość, ul. Elizy Orzeszkowej zobacz na mapie

360 000 PLN

Szczegóły oferty

Cena:
360 000,00 zł
Powierzchnia:
61,50 m2
Cena za m2:
5 853,66 zł
Rok budowy:
1975
Liczba pięter:
4
Piętro:
1
Rynek:
Wtórny
Rodzaj budynku:
Blok
Liczba pokoi:
3
Typ kuchni:
Otwarta
Id oferty:
118877/3877/OMS

Opis

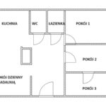
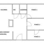
Mam przyjemność zaprezentować Państwu trzypokojowe mieszkanie o powierzchni 61,5 m2 z balkonem oraz piwnicą przy ul. Elizy Orzeszkowej w Zamościu.
Mieszkanie znajduje się na 1 piętrze niskiego bloku, w otoczeniu zieleni. Dla mieszkańców, bezpośrednio przed blokiem znajduje się parking. 

Mieszkanie składa się z:

- pokoju dziennego/ jadalni połączonej z kuchnią - około 20 m2
- trzech pokoi 9,3 m2, 13,5 m2, 12m2. 
- łazienki,
- toalety,
- korytarza. 

Lokalizacja:
Niewątpliwie jest to idealna propozycja dla osób, które chcą żyć w ścisłym centrum Zamościa. W bliskim sąsiedztwie bloku znajduje się centrum handlowe, liczne restauracje, przedszkole, szkoła podstawowa oraz sklepy spożywcze. Dodatkowym atutem dla rodzin z dziećmi jest położenie kilku placówek - szkół i przedszkoli oraz placu zabaw niedaleko bloku.  W okolicach bloku, znajduje się również dużo zieleni oraz drzew, co zapewnia spokój, ciszę oraz ochronę przed upałami w letnie dni.

Dodatkowe informacje:
- Przestronne mieszkanie dla większej rodziny.
- Okna wychodzące na dwie strony - zachód i wschód  
- Piwnica oraz parking pod blokiem
- Czynsz latem - ok. 400 zł.
- Czynsz zimą - ok. 800 zł.

Mieszkanie znajduję się w doskonałej lokalizacji w pobliżu- sklepy, park, banki, przychodnia lekarska, apteka, przedszkole, szkoły, szpital czy np. bazarek.
Doskonała komunikacja z pozostałymi częściami miasta. Do Starego Miasta 10 min pieszo.
Mieszkanie wymaga odświeżenia, co w pełni umożliwi przyszłym właścicielom zaadaptowanie przestrzeń do własnych potrzeb i gustu. 
Przedmiotem sprzedaży jest większość mebli widocznych na zdjęciach.

Jeśli zainteresowała Cię ta oferta zadzwoń -  zapraszam na prezentacje.


Pomagamy w formalnościach związanych z uzyskaniem kredytu na zakup nieruchomości.
Nasz doradca kredytowy bezpłatnie pomoże Ci sprawdzić zdolność kredytową i przedstawi najkorzystniejszą ofertę z ponad 10 banków!

Posiadasz podobną nieruchomość? Zadzwoń i skorzystaj z bezpłatnej konsultacji, gdzie odpowiem na pytania dotyczące Twojej nieruchomości, jej ceny oraz procesu sprzedaży.


Justyna Łagoda 
665 750 080
Północ nieruchomości Zamość
ul. Żeromskiego 3
22- 400 Zamość

Niniejsze ogłoszenie nie stanowi oferty w rozumieniu Kodeksu Cywilnego, lecz ma charakter informacyjny.

Przedstawione wizualizacje i grafiki mają charakter wyłącznie poglądowy i stanowią wyłącznie materiał pomocniczy, ułatwiający zorientowanie się w ogólnym wyglądzie oferowanej nieruchomości.

Niniejsze ogłoszenie wraz z jego elementami jest własnością Północ Nieruchomości Sp z o.o. lub podmiotu współpracującego. Wszelkie prawa zastrzeżone. Kopiowanie, rozpowszechnianie oraz korzystanie z niniejszych materiałów w jakikolwiek inny sposób wykraczający poza dozwolony użytek określony przepisami ustawy z 4 lutego 1994 r. o prawie autorskim i prawach pokrewnych (Dz. U. 1994, nr 24 poz. 83 z późn. zm.) bez pisemnej zgody Północ Nieruchomości Sp z o.o. lub podmiotów współpracujących jest zabronione i może stanowić podstawę odpowiedzialności cywilnej oraz karnej.

Niniejsze materiały stanowią tajemnicę przedsiębiorstwa PÓŁNOC NIERUCHOMOŚCI Sp. z o.o. w rozumieniu ustawy z dnia 16 kwietnia 1993 r. o zwalczaniu nieuczciwej konkurencji (Dz. U. z 2003 r., Nr 153, poz. 1503 z późn. zm.).

Mapa

Zapytaj o tę ofertę

Lub zadzwoń