Kontakt
Nr oferty: 1558/3877/OOS

Lokal użytkowy w Dobrym Mieście

Dobre Miasto, Grunwaldzka zobacz na mapie

810 000 PLN

Szczegóły oferty

Cena:
810 000,00 zł
Powierzchnia:
372,24 m2
Powierzchnia działki:
494,00 m2
Cena za m2:
2 176,02 zł
Rynek:
Wtórny
Liczba pięter:
1
Przeznaczenie (obiekt):
Handlowo/Usługowe
Rodzaj budynku:
Magazyn
Prąd:
tak
Gaz:
tak
Id oferty:
1558/3877/OOS

Opis

Oferuje na sprzedaż LOKAL UŻYTKOWY znajdujący się przy ulicy Grunwaldzkiej w Dobrym Mieście.

Nieruchomość usytuowana jest przy ul. Grunwaldzkiej 10A w Dobrym Mieście w powiecie olsztyńskim w województwie warmińsko-mazurskim. Budynek posiada bardzo dobrą ekspozycję dzięki położeniu koło szpitala. Budynek usytuowany jest bezpośrednio przy ulicy, posiada 4 oddzielne wejścia. Z tyłu budynku parking bezpośrednio przed nieruchomością. 

W lokalu przez wiele lat była prowadzona pralnia. Budynek idealny pod inwestycję! Świetnie sprawdzi się w branży medycznej ze względu na lokalizację! Budynek wyposażony w dźwig towarowy - 250kg.

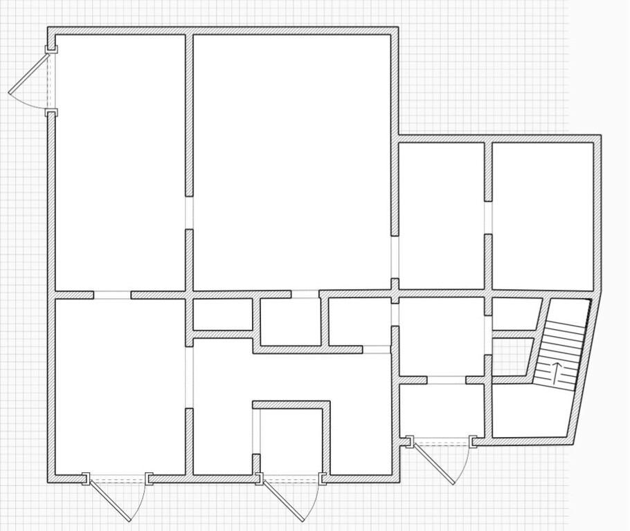
Powierzchnie kondygnacji (pow. użytkowa ogółem – 372,24 m2):
- parter – 205,84 m2
- I piętro – 166,40 m2

Media: woda, sieć kanalizacyjna, prąd. Na ten moment budynek nie jest ogrzewany, aczkolwiek istnieje możliwość doprowadzenia ogrzewania gazowego. 

*Rzut budynku wykonany w celach poglądowych

Zapraszam na prezentację !

Szczegóły oferty:
Olsztyn
al. Warszawska 71B/2
Gabriela Knoblauch 
Tel.: 797 942 189

Niniejsze ogłoszenie nie stanowi oferty w rozumieniu Kodeksu Cywilnego, lecz ma charakter informacyjny.

Przedstawione wizualizacje i grafiki mają charakter wyłącznie poglądowy i stanowią wyłącznie materiał pomocniczy, ułatwiający zorientowanie się w ogólnym wyglądzie oferowanej nieruchomości.

Niniejsze ogłoszenie wraz z jego elementami jest własnością Północ Nieruchomości Sp z o.o. lub podmiotu współpracującego. Wszelkie prawa zastrzeżone. Kopiowanie, rozpowszechnianie oraz korzystanie z niniejszych materiałów w jakikolwiek inny sposób wykraczający poza dozwolony użytek określony przepisami ustawy z 4 lutego 1994 r. o prawie autorskim i prawach pokrewnych (Dz. U. 1994, nr 24 poz. 83 z późn. zm.) bez pisemnej zgody Północ Nieruchomości Sp z o.o. lub podmiotów współpracujących jest zabronione i może stanowić podstawę odpowiedzialności cywilnej oraz karnej.

Niniejsze materiały stanowią tajemnicę przedsiębiorstwa PÓŁNOC NIERUCHOMOŚCI Sp. z o.o. w rozumieniu ustawy z dnia 16 kwietnia 1993 r. o zwalczaniu nieuczciwej konkurencji (Dz. U. z 2003 r., Nr 153, poz. 1503 z późn. zm.).

Mapa

Zapytaj o tę ofertę

Lub zadzwoń