Kontakt

Urocze siedlisko tylko 20km od Chełma!

Chylin Wielki zobacz na mapie

120 000 PLN

Cena:
120 000,00 zł
Powierzchnia:
47,00 m2
Cena za m2:
2 553,19 zł
Powierzchnia działki:
2 000,00 m2
Liczba pokoi:
2
Typ domu:
Wolnostojący
Ciepła woda:
tak
Id oferty:
39798/3877/ODS
Opis
Jeśli cenisz sobie spokój, ciszę i prywatność a dodatkowo chcesz mieć poczucie przestrzeni - jesteś w dobrym miejscu!
Oferowany dom ma niezwykły potencjał rekreacyjny ze względu na bliskość lasu.

Możesz tu mieszkać przez cały rok lub przyjeżdżać odpocząć od zgiełku miasta.

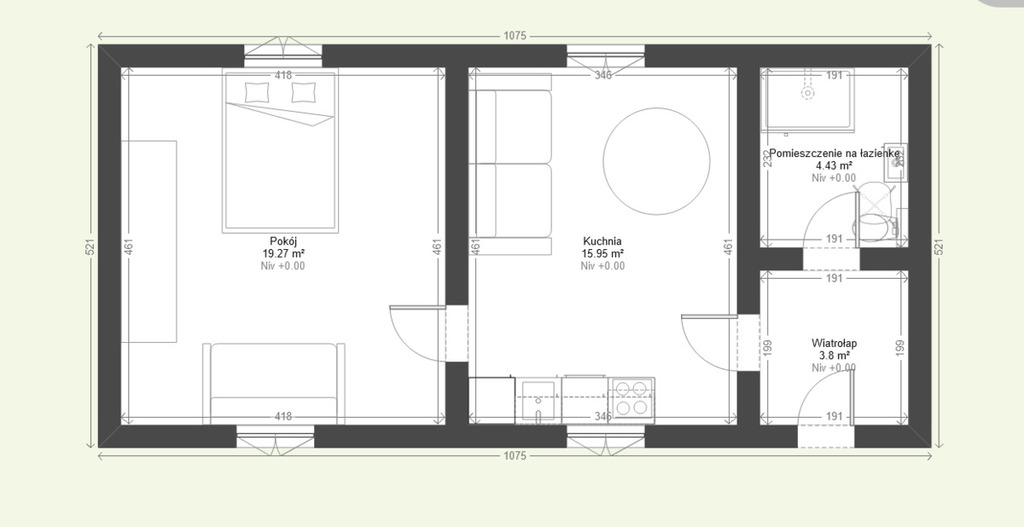
Posiadam na sprzedaż parterowy dom o powierzchni ok. 43 m² znajdujący się w miejscowości Chylin Wielki, gm. Wierzbica do własnej aranżacji.

Dom składa się z:
-pokoju,
-kuchni,
pomieszczenia gdzie możemy zrobić łazienkę,
-przedpokoju,
-ganeczku.

Istnieje możliwość zagospodarowania poddasza i zrobienia tak dodatkowej przestrzeni użytkowej.

Na działce mamy jeszcze do dyspozycji budynki gospodarcze ( obora, stodoła, kuchnia letnia).

Działka na której stoi dom ma powierzchnię 2 000 m2, posiada liczne nasadzenia i jest w całości ogrodzona.

Istnieje możliwość dokupienia działki rolnej o powierzchni 5 000 m2. za 30.000zł która graniczy z działką.

Media:
- woda - miejska
- ogrzewanie - piec
- kanalizacja - brak

Dodatkowe informacje:
- wymieniony dach,
- częściowo ocieplony,
- nowe okna PCV.

Zainteresowała Cię ta oferta?
Nie zwlekaj. Zadzwoń lub napisz do mnie już teraz. Chętnie odpowiem na dodatkowe pytania oraz spotkam się na prezentacji.
Serdecznie zapraszam do kontaktu.


Patrycja Szmagalska
pszmagalska@polnoc.pl
tel. 518 524 828

Niniejsze ogłoszenie nie stanowi oferty w rozumieniu Kodeksu Cywilnego, lecz ma charakter informacyjny.

Przedstawione wizualizacje i grafiki mają charakter wyłącznie poglądowy i stanowią wyłącznie materiał pomocniczy, ułatwiający zorientowanie się w ogólnym wyglądzie oferowanej nieruchomości.

Niniejsze ogłoszenie wraz z jego elementami jest własnością Północ Nieruchomości Sp z o.o. lub podmiotu współpracującego. Wszelkie prawa zastrzeżone. Kopiowanie, rozpowszechnianie oraz korzystanie z niniejszych materiałów w jakikolwiek inny sposób wykraczający poza dozwolony użytek określony przepisami ustawy z 4 lutego 1994 r. o prawie autorskim i prawach pokrewnych (Dz. U. 1994, nr 24 poz. 83 z późn. zm.) bez pisemnej zgody Północ Nieruchomości Sp z o.o. lub podmiotów współpracujących jest zabronione i może stanowić podstawę odpowiedzialności cywilnej oraz karnej.

Niniejsze materiały stanowią tajemnicę przedsiębiorstwa PÓŁNOC NIERUCHOMOŚCI Sp. z o.o. w rozumieniu ustawy z dnia 16 kwietnia 1993 r. o zwalczaniu nieuczciwej konkurencji (Dz. U. z 2003 r., Nr 153, poz. 1503 z późn. zm.).

Mapa

Zapytaj o tę ofertę

Lub zadzwoń