Kontakt

Luksusowy bliźniak dla wymagających

Parkitka zobacz na mapie

1 070 000 PLN

Cena:
1 070 000,00 zł
Powierzchnia:
206,47 m2
Cena za m2:
5 182,35 zł
Powierzchnia działki:
450,00 m2
Rok budowy:
2023
Liczba pięter:
2
Liczba pokoi:
7
Stan budynku:
Do wykończenia
Typ domu:
Bliźniak
Ciepła woda:
tak
Id oferty:
43251/3877/ODS
Opis
Północ Nieruchomości Częstochowa ANMP4 prezentuje

Na sprzedaż nowy dom w zabudowie bliźniaczej o powierzchni  206,47m² zlokalizowany w cichej, spokojnej dzielnicy Lisiniec w Częstochowie usytuowany na działce o powierzchni 450m².
Budynek wyposażony we wszystkie media, prąd, woda, gaz.
Budynek składa się z dwóch kondygnacji i oferuje przestronne, komfortowe miejsce dla całej rodziny.

---- OFERTA 0% PROWIZJI ---- KUPUJĄCY NIE PŁACI PROWIZJI ----

FUNKCJONALNY UKŁAD NA KTÓRY SKŁADA SIĘ:

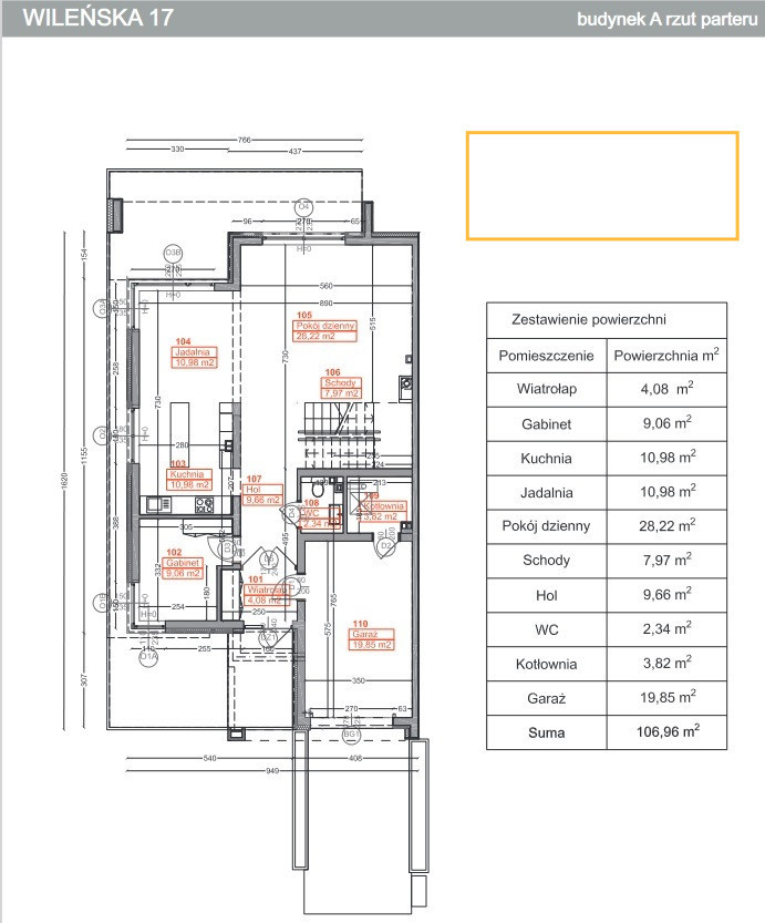
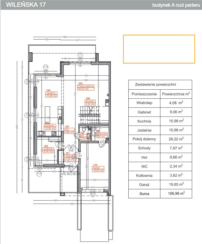
POZIOM I
- Wiatrołap 4,08m²
- Gabinet 9,06m²
- Kuchnia 10,98m²
- Jadalnia 10,98m²
- Pokój dzienny 28,22m²
- Schody 7,97m²
- Hol 9,66m²
- WC 2,34m²
- Kotłownia 3,82m²
- Garaż 19,85 m²
Razem: 106,96m²

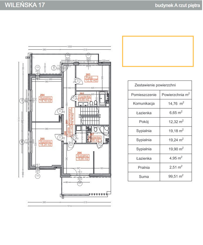
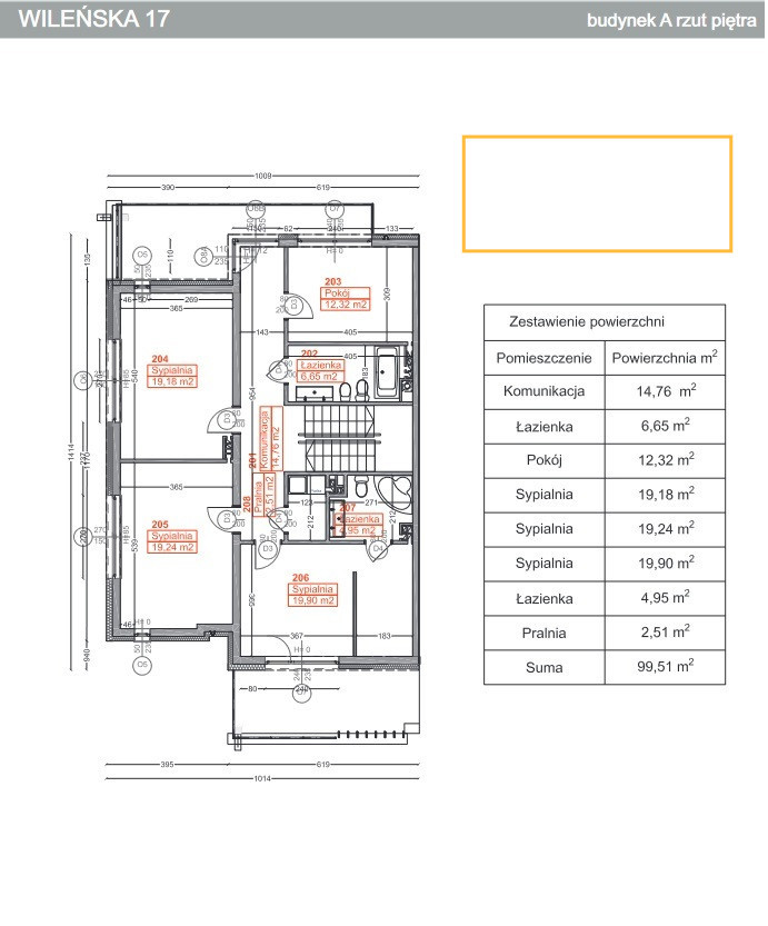
POZIOM II
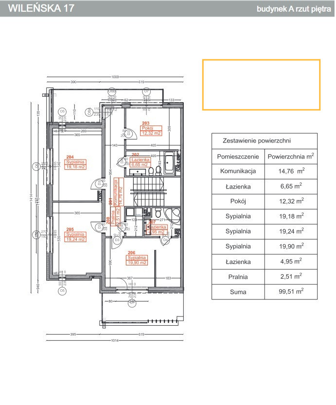
- Komunikacja 14,76m²
- Łazienka 6,65m²
- Pokój 12,35m²
- Sypialnia 19,18m²
- Sypialnia 19,24m²
- Sypialnia 19,90m²
- Łazienka 4,95m²
- Pralnia 2,51m²
Razem: 99,51m²

Garaż usytuowany w bryle budynku
Media: prąd, woda, gaz, kanalizacja
Ogrzewanie: gazowe piec dwufunkcyjny
Ściany: pustak ceramiczny
Rok budowy: 2023
Okna PCV
Drzwi: antywłamaniowe

Zamknięte osiedle składające się z 9 nowoczesnych domów  w zabudowie bliźniaczej wykonanych z materiałów wysokiej jakości.  
Lokalizacja poszczególnych budynków jest zaprojektowana w harmonijny sposób aby zapewnić prywatność oraz komfort dla mieszkańców. 
Budynki w technologii tradycyjnej murowanej z pustaka ceramicznego, stropy żelbetowe.
Osiedle powstaje w spokojnej i zielonej dzielnicy Częstochowy. Budynki ulokowane są blisko natury tuż przy Parku Lisiniec - terenu rekreacyjnego mieszkanek i mieszkańców Częstochowy. 
Jednocześnie w samym centrum miasta można znaleźć się w 10 minut.
Gwarantowana prywatność dla mieszkańców . Do każdego budynku przynależy prywatny garaż oraz duży ogród i przestronny taras na piętrze.
Na terenie inwestycji zaprojektowano ciąg pieszo- jezdny do wyłącznego użytku jego mieszkańców.
Osiedle ma charakter zamknięty z bramą wjazdową, furtką z domofonem i oświetleniem co zapewnia mieszkańcom poczucie prywatności i bezpieczeństwa. Komunikacja utwardzona wraz z chodnikami.
Wysoka jakość materiałów oraz starannie zaprojektowane wnętrza to ważne atuty projektu. Uwzględniając wymogi klientów oraz aktualne trendy nowoczesnej architektury zaprojektowaliśmy nowoczesne i funkcjonalne układy pomieszczeń.
Ważną zaletą tej nieruchomości jest doskonała lokalizacja. Spokojna i malownicza okolica, idealna dla rodzin z dziećmi.

KREDYT
Jesteśmy z Państwem na każdym etapie procesu zakupu nieruchomości począwszy od wyboru oferty i jej prezentacji po finalizację transakcji i przekazanie nieruchomości nowym właścicielom. 
Pomagamy we wszelkich formalnościach związanych z uzyskaniem kredytu na zakup nieruchomości. Nasz doradca kredytowy bezpłatnie pomoże sprawdzić zdolność kredytową, przedstawi najkorzystniejszą propozycję spośród oferty banków i sprawnie przeprowadzi Państwa przez proces realizacji kredytu.


Zapraszam do kontaktu
Joanna Bąk
tel. 690 696 633
jbak@polnoc.pl

Niniejsze ogłoszenie nie stanowi oferty w rozumieniu Kodeksu Cywilnego, lecz ma charakter informacyjny.

Przedstawione wizualizacje i grafiki mają charakter wyłącznie poglądowy i stanowią wyłącznie materiał pomocniczy, ułatwiający zorientowanie się w ogólnym wyglądzie oferowanej nieruchomości.

Niniejsze ogłoszenie wraz z jego elementami jest własnością Północ Nieruchomości Sp z o.o. lub podmiotu współpracującego. Wszelkie prawa zastrzeżone. Kopiowanie, rozpowszechnianie oraz korzystanie z niniejszych materiałów w jakikolwiek inny sposób wykraczający poza dozwolony użytek określony przepisami ustawy z 4 lutego 1994 r. o prawie autorskim i prawach pokrewnych (Dz. U. 1994, nr 24 poz. 83 z późn. zm.) bez pisemnej zgody Północ Nieruchomości Sp z o.o. lub podmiotów współpracujących jest zabronione i może stanowić podstawę odpowiedzialności cywilnej oraz karnej.

Niniejsze materiały stanowią tajemnicę przedsiębiorstwa PÓŁNOC NIERUCHOMOŚCI Sp. z o.o. w rozumieniu ustawy z dnia 16 kwietnia 1993 r. o zwalczaniu nieuczciwej konkurencji (Dz. U. z 2003 r., Nr 153, poz. 1503 z późn. zm.).

Mapa

Zapytaj o tę ofertę

Lub zadzwoń