Kontakt

Dom wolnostojący, Ełk ZATORZE, ul. Augustowska

Ełk, ul. Augustowska zobacz na mapie

750 000 PLN

Cena:
750 000,00 zł
Powierzchnia:
120,00 m2
Cena za m2:
6 250,00 zł
Powierzchnia użytkowa:
120,00 m2
Powierzchnia działki:
1 439,00 m2
Rok budowy:
1963
Liczba pięter:
1
Liczba pokoi:
5
Stan budynku:
Do odświeżenia
Typ domu:
Wolnostojący
Ciepła woda:
tak
Id oferty:
44304/3877/ODS
Opis
 PÓŁNOC Nieruchomości Ełk przedstawia na sprzedaż gotowy do wprowadzenia wolnostojący dom na osiedlu Zatorze w Ełku ul. Augustowska 21.

Zapraszam na wirtualny spacer po nieruchomości:
https://tour.giraffe360.com/7ee42334aca9497cbff325c2e2509ede

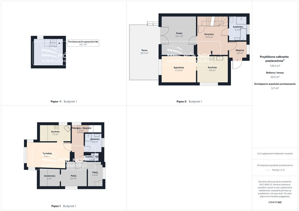
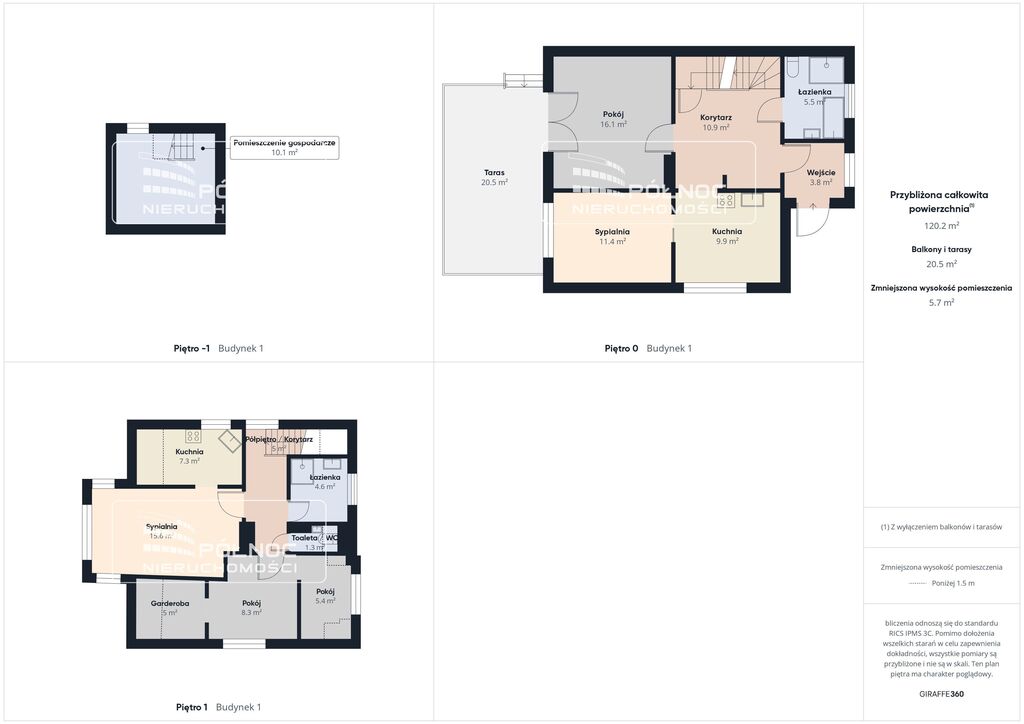
DOM
Atrakcyjnie położony DOM o powierzchni około 120 m2 wybudowany w latach 60. Podłączony do miejskiej sieci wodociągowej, kanalizacyjnej, elektroenergetycznej oraz gazowej. Dom jest częściowo podpiwniczony. Dach pokryty dachówką ceramiczną. Okna plastikowe.

parter:
- salon z wyjściem na przestronny TARAS - 20 m2;
- kuchnia;
- sypialnia;
- łazienka z WC;
- wiatrołap;
- korytarz. 

piętro:
- pokój z przejściem do kuchni - który może stanowić oddzielne mieszkanie;
- łazienka;
- WC;
- pokój z oddzielną garderobą;
- niewielki pokój mogący służyć jako kolejna garderoba;
- przedpokój.

piwnica
- pomieszczenie gospodarcze o powierzchni 10 m2, gdzie znajduje się piec na gaz.

DZIAŁKA

Nieruchomość o powierzchni 1439 m2 z urządzonym przydomowym ogrodem. 

BUDYNEK 2
Dom o powierzchni około 43,5 m2. Podłączony do miejskiej sieci wodociągowej i kanalizacyjnej. Centralne ogrzewanie podłączone z pierwszego domu. Dom posiada strych oraz piwnicę. Okna plastikowe.

parter:
- 2 oddzielne mieszkania składające się z 1 pokoju i osobnej kuchni;
- wspólna łazienka z WC;
- korytarz. 

piętro - niski strych (nieużytkowy) o powierzchni 77,4 m2

piwnica - pomieszczenie gospodarcze o powierzchni 13 m2

GARAŻ - przyłączony do BUDYNKU 2 o powierzchni 36 m2. Garaż posiada przelotowy wjazd/wyjazd.

W OKOLICY
- Netto oraz mniejsze sklepy osiedlowe;
- Zespół Szkół Sportowych;
- przedszkole;
- kościół;
- poczta;
- Muzeum Historyczne;
- Dworzec Ełckiej Kolei Wąskotorowej; 
- przystanki MZK itp.

Dom dostępny w terminie do uzgodnienia.

Zainteresowała Cię ta oferta?
Zadzwoń i umów się na spotkanie!

Kupujesz na kredyt?
Sprawdzeni doradcy kredytowi, z którymi współpracujemy zupełnie za darmo przeprowadzą Cię przez cały proces kredytowy i pomogą w uzyskaniu finansowania.

A może zakup tego mieszkania wiążę się ze sprzedażą innej nieruchomości? Z ogromną przyjemnością przeprowadzę Cię przez ten proces.
Zadzwoń i porozmawiajmy :)

Aneta Mulewska
PÓŁNOC Nieruchomości Ełk
+48 513 899 633 
amulewska@polnoc.pl 

Jesteśmy z Państwem na każdym etapie procesu zakupu nieruchomości począwszy od wyboru oferty i jej prezentacji po finalizację transakcji i przekazanie nieruchomości nowym właścicielom. 

Niniejsze ogłoszenie nie stanowi oferty w rozumieniu Kodeksu Cywilnego, lecz ma charakter informacyjny.

Przedstawione wizualizacje i grafiki mają charakter wyłącznie poglądowy i stanowią wyłącznie materiał pomocniczy, ułatwiający zorientowanie się w ogólnym wyglądzie oferowanej nieruchomości.

Niniejsze ogłoszenie wraz z jego elementami jest własnością Północ Nieruchomości Sp z o.o. lub podmiotu współpracującego. Wszelkie prawa zastrzeżone. Kopiowanie, rozpowszechnianie oraz korzystanie z niniejszych materiałów w jakikolwiek inny sposób wykraczający poza dozwolony użytek określony przepisami ustawy z 4 lutego 1994 r. o prawie autorskim i prawach pokrewnych (Dz. U. 1994, nr 24 poz. 83 z późn. zm.) bez pisemnej zgody Północ Nieruchomości Sp z o.o. lub podmiotów współpracujących jest zabronione i może stanowić podstawę odpowiedzialności cywilnej oraz karnej.

Niniejsze materiały stanowią tajemnicę przedsiębiorstwa PÓŁNOC NIERUCHOMOŚCI Sp. z o.o. w rozumieniu ustawy z dnia 16 kwietnia 1993 r. o zwalczaniu nieuczciwej konkurencji (Dz. U. z 2003 r., Nr 153, poz. 1503 z późn. zm.).

Mapa

Zapytaj o tę ofertę

Lub zadzwoń