Kontakt
Nr oferty: 43921/3877/ODS

Dom wolnostojący 182 m2 Kolno ul. Armii Krajowej

Kolno, Armii Krajowej zobacz na mapie

829 000 PLN

Szczegóły oferty

Cena:
829 000,00 zł
Powierzchnia:
182,80 m2
Cena za m2:
4 535,01 zł
Powierzchnia użytkowa:
119,80 m2
Powierzchnia działki:
445,00 m2
Rok budowy:
1987
Liczba pięter:
2
Liczba pokoi:
4
Stan budynku:
Do drobnego remontu
Typ domu:
Wolnostojący
Ciepła woda:
tak
Id oferty:
43921/3877/ODS

Opis

Polecamy dom wolnostojący, zlokalizowany na osiedlu domów jednorodzinnych w Kolnie, przy ul. Armii Krajowej. 

Dom z lat 80-tych.,  o pow. całkowitej 182 m2 i użytkowej 119 m2, położony na działce o areale 445m2 - może funkcjonować jako dwa niezależne mieszkania.

Rozplanowany na następujących poziomach:


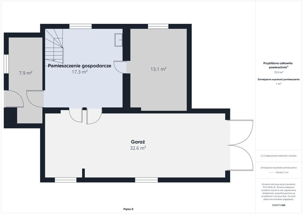
Parter
- garaż (32,60m2)
- 3 pomieszczenia gospodarcze (17,30m2, 13,10m2, 7,90m2)
 
I Pięto
- salon (13,70m2)
- kuchnia (10,40m2)
- pokój (16,10m2) + balkon (5,90m2)
- łazienka (6m2)
- wiatrołap (7,30m2)
- komunikacja (5,80m2)

 II Piętro
-  salon (16,50m2)+ balkon (6,10m2)
- kuchnia (9,80m2)
- pokój (13,30m2)
- łazienka (5,80m2)
- balkon (8,30m2)
- komunikacja (7,20m2)


Garaż w bryle budynku, plus budynek gospodarczy wolnostojący.


Media
: woda z ujęcia własnego, kanalizacja miejska, prąd, gaz - zbiornik wkopany na działce.
Podgrzanie wody i ogrzewanie – kocioł gazowy.


Ściany zewnętrzne wykonano z pustaka oraz docieplono wewnątrz styropianem 5 cm, a dach przykryto blachodachówką, zastosowano stolarkę  PCV.


Działka o powierzchni 445m2 -  ogrodzona,  z nasadzeniami krzewów oraz powierzchniami utwardzonymi polbrukiem. 


Zamieszkanie przy ul. Armii Krajowej w Kolnie ma wiele atutów, które czynią je atrakcyjnym wyborem zarówno dla rodzin, jak i osób szukających spokojnej lokalizacji z dobrą infrastrukturą.
1. Doskonała lokalizacja:
W pobliżu znajdują się sklepy spożywcze, apteki, szkoły, przedszkola, przychodnie lekarskie, a także urzędy i banki. To duże udogodnienie, szczególnie dla rodzin z dziećmi i osób starszych.
2. Spokojna i bezpieczna okolica:
Ulica ta uchodzi za spokojną i cichą, z niskim natężeniem ruchu drogowego. Dzięki temu mieszkańcy mogą cieszyć się większym komfortem i poczuciem bezpieczeństwa, co ma ogromne znaczenie na co dzień. Okolica jest też zadbana i zielona, co sprzyja spacerom oraz spędzaniu czasu na świeżym powietrzu.
3. Dostępność komunikacji:
Bliskość przystanków komunikacji miejskiej pozwala na szybki dojazd do innych części miasta. Jest to szczególnie ważne dla osób niezmotoryzowanych lub uczniów dojeżdżających do szkół.


Warszawa 184 km ( 2 godz. 3 min.)
Pisz ( Wrota Mazur) 27,9 km ( 40 min.)
Łomża 36 km (38 min.)
Białystok 107 km (1 godz. 30 min.)

Po więcej informacji zapraszam do kontaktu:


 Stanisław Drobiński


e-mail: sdrobinski@polnoc.pl


Licencja zawodowa pośrednika
w obrocie nieruchomościami
Nr 17292


Oferta Laureata Konkursu Lider Nieruchomości Otodom 2020 i 2021 !


Zapewniamy Państwu pomoc prawną przy zakupie nieruchomości oraz przy uzyskaniu kredytu.

Niniejsze ogłoszenie nie stanowi oferty w rozumieniu Kodeksu Cywilnego, lecz ma charakter informacyjny.

Przedstawione wizualizacje i grafiki mają charakter wyłącznie poglądowy i stanowią wyłącznie materiał pomocniczy, ułatwiający zorientowanie się w ogólnym wyglądzie oferowanej nieruchomości.

Niniejsze ogłoszenie wraz z jego elementami jest własnością Północ Nieruchomości Sp z o.o. lub podmiotu współpracującego. Wszelkie prawa zastrzeżone. Kopiowanie, rozpowszechnianie oraz korzystanie z niniejszych materiałów w jakikolwiek inny sposób wykraczający poza dozwolony użytek określony przepisami ustawy z 4 lutego 1994 r. o prawie autorskim i prawach pokrewnych (Dz. U. 1994, nr 24 poz. 83 z późn. zm.) bez pisemnej zgody Północ Nieruchomości Sp z o.o. lub podmiotów współpracujących jest zabronione i może stanowić podstawę odpowiedzialności cywilnej oraz karnej.

Niniejsze materiały stanowią tajemnicę przedsiębiorstwa PÓŁNOC NIERUCHOMOŚCI Sp. z o.o. w rozumieniu ustawy z dnia 16 kwietnia 1993 r. o zwalczaniu nieuczciwej konkurencji (Dz. U. z 2003 r., Nr 153, poz. 1503 z późn. zm.).

Mapa

Zapytaj o tę ofertę

Lub zadzwoń