Kontakt
Nr oferty: 43873/3877/ODS

Luborzycka (Grębałów) – dom 120 m² z ogrodem

Kraków-Nowa Huta, ul. Luborzycka zobacz na mapie

1 150 000 PLN

Szczegóły oferty

Cena:
1 150 000,00 zł
Powierzchnia:
120,00 m2
Cena za m2:
9 583,33 zł
Powierzchnia użytkowa:
120,00 m2
Powierzchnia działki:
500,00 m2
Rok budowy:
2025
Liczba pięter:
1
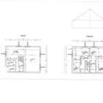
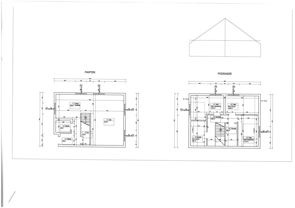
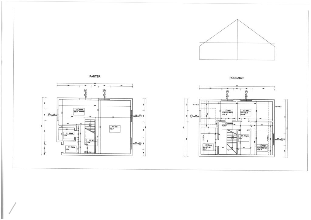
Liczba pokoi:
4
Stan budynku:
Stan deweloperski
Typ domu:
Bliźniak
Ciepła woda:
tak
Id oferty:
43873/3877/ODS

Opis

Nowoczesny dom w zabudowie bliźniaczej o powierzchni 120 m², położony w zielonej części Krakowa – przy ul. Luborzyckiej w rejonie Grębałowa. Projekt łączy nowoczesną architekturę z wygodą codziennego życia, zapewniając prywatność i kontakt z naturą, zaledwie 20 minut od centrum.
Dlaczego warto
  • nowoczesna zabudowa bliźniacza – komfort i niezależność,
  • funkcjonalny układ: salon z wyjściem do ogrodu, 3 sypialnie, 2 łazienki,
  • ogrzewanie gazowe i wszystkie media miejskie,
  • działka ok. 500 m² z ogrodem i miejscem postojowym,
  • spokojna okolica – doskonała dla rodzin z dziećmi.
Lokalizacja Grębałów – dzielnica ceniona za ciszę, zieleń i dogodny dojazd do centrum. W pobliżu sklepy, szkoła, przedszkole, przystanek autobusowy (ok. 300 m). Szybki dostęp do trasy 776 i obwodnicy.
Dane techniczne
  • powierzchnia: 120 m²
  • działka: ok. 500 m²
  • rok budowy: 2025
  • stan: deweloperski
  • media: woda, prąd, gaz
  • ogrodzenie i utwardzony dojazd
Cena: 1 150 000 zł
Cena jest do negocjacji i zostanie ustalona z Klientem, który złoży najlepszą propozycję warunków zakupu (termin, finansowanie, szybkość transakcji). Wiem że ten dom jest na obrzeżach miasta i wymaga nakładów na start, dlatego Przestań tylko oglądać, zadzwoń teraz i porozmawiajmy o Twojej ofercie cenowej!

Niniejsze ogłoszenie nie stanowi oferty w rozumieniu Kodeksu Cywilnego, lecz ma charakter informacyjny.

Przedstawione wizualizacje i grafiki mają charakter wyłącznie poglądowy i stanowią wyłącznie materiał pomocniczy, ułatwiający zorientowanie się w ogólnym wyglądzie oferowanej nieruchomości.

Niniejsze ogłoszenie wraz z jego elementami jest własnością Północ Nieruchomości Sp z o.o. lub podmiotu współpracującego. Wszelkie prawa zastrzeżone. Kopiowanie, rozpowszechnianie oraz korzystanie z niniejszych materiałów w jakikolwiek inny sposób wykraczający poza dozwolony użytek określony przepisami ustawy z 4 lutego 1994 r. o prawie autorskim i prawach pokrewnych (Dz. U. 1994, nr 24 poz. 83 z późn. zm.) bez pisemnej zgody Północ Nieruchomości Sp z o.o. lub podmiotów współpracujących jest zabronione i może stanowić podstawę odpowiedzialności cywilnej oraz karnej.

Niniejsze materiały stanowią tajemnicę przedsiębiorstwa PÓŁNOC NIERUCHOMOŚCI Sp. z o.o. w rozumieniu ustawy z dnia 16 kwietnia 1993 r. o zwalczaniu nieuczciwej konkurencji (Dz. U. z 2003 r., Nr 153, poz. 1503 z późn. zm.).

Mapa

Zapytaj o tę ofertę

Lub zadzwoń