Kontakt
Nr oferty: 44769/3877/ODS

Dom na sprzedaż wraz z halą

Stare Piekary zobacz na mapie

1 000 000 PLN

Szczegóły oferty

Cena:
1 000 000,00 zł
Powierzchnia:
109,40 m2
Cena za m2:
9 140,77 zł
Powierzchnia działki:
1 558,00 m2
Rok budowy:
1973
Liczba pięter:
2
Liczba pokoi:
5
Stan budynku:
Dobry
Typ domu:
Wolnostojący
Ciepła woda:
tak
Id oferty:
44769/3877/ODS

Opis

Zapraszam serdecznie do zapoznania się z ofertą sprzedaży domu w Legnicy.
Dom o powierzchni użytkowej 109 m2 pochodzi z 1973 r. jest w pełni podpiwniczony, i usytuowany na działce o powierzchni 1558 m2.
Omawiany dom składa się z następujących pomieszczeń:

PARTER
-duży salon z wyjściem na taras 19,3 m2
-sypialnia 15 m2
-kuchnia 11,4 m2
-łazienka 3,4 m2
-korytarz 5,1 m2
-komunikacja 12,6 m2

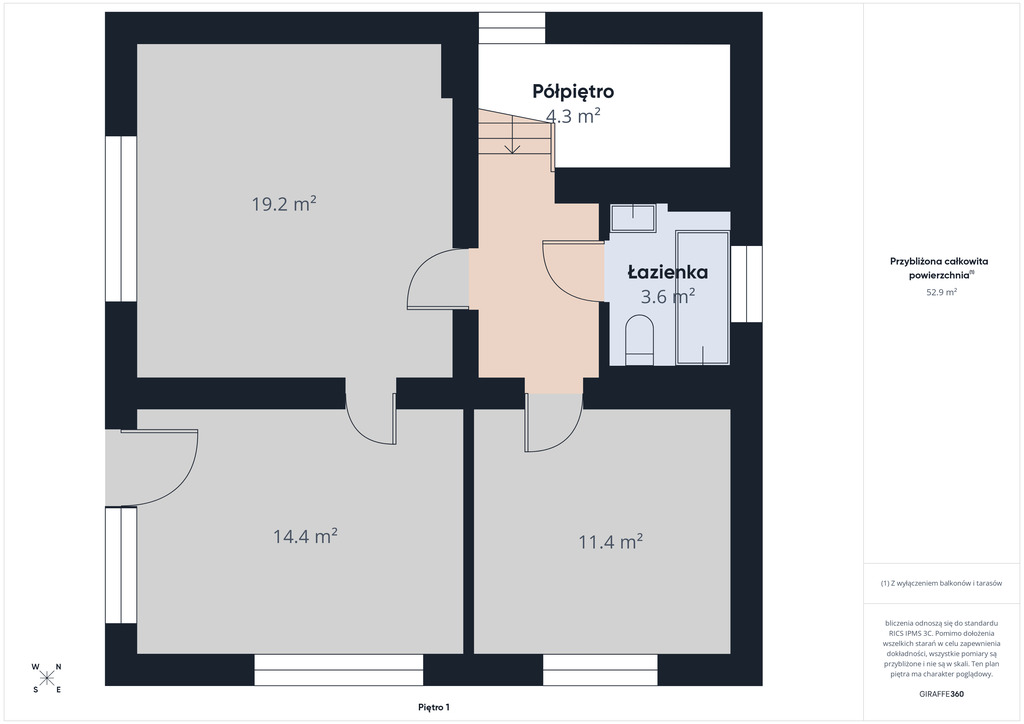
PIĘTRO
-pokój 19,2 m2
-pokój 14,4 m2
- pokój 11,4 m2
-łazienka 3,6 m2

STAN TECHNICZNY
-budynek murowany 
-dach płaski  pokryty papą (remont dachu miał miejsce 2023 r.)
-instalacja miedziana
-instalacja wodnokanalizacyjna wymieniona w łazience w części parterowej
-okna PCV ( dwa okna drewniane do wymiany)
-na podłogach parkiet ,panele, płytki
-schody wewnętrzne dębowe

MEDIA:
-woda
-kanalizacja
-prąd

Brak gazu.

Ogrzewanie węglowe, piec znajduje się w części piwniczej ,natomiast w pomieszczeniach są grzejniki żeliwne.
Wystawa okien wschód/zachód oraz północ/południe. 
Posesja ogrodzona.

Dom jest bardzo słoneczny i ciepły. Wyróżnia się funkcjonalnym układem pomieszczeń.
Świetnie sprawdzi się dla rodzin z dziećmi.

Duży ogród będzie miejscem relaksu i odpoczynku.

Na terenie posesji w tylnej części domu znajdują się hale + garaże ,które obecnie są wynajmowane i przynoszą właścicielom dobry dochód z tytułu najmu.
Nowy właściciel może przejąć najem lub zupełnie zrezygnować z najemców i zagospodarować przynależny teren według własnych potrzeb.

Hala + biuro mają powierzchnię 113,88 m2
Pozostałe budynki gospodarcze mają około 146,53 m2.

Dom położony jest w otoczeniu domów jednorodzinnych. Cicha i spokojna okolica do życia.
Dojazd do centrum zajmuje około 10 min.

CENA -1000 000 zł -DO NEGOCJACJI!!!

Zapraszam na prezentację po wcześniejszym umówieniu spotkania.

Aneta Kopij
tel.661 909 045
e-mail:akopij@polnoc.pl
Biuro Nieruchomości Północ
ul. ŚRODKOWA 22


Niniejsze ogłoszenie nie stanowi oferty w rozumieniu Kodeksu Cywilnego, lecz ma charakter informacyjny.

Przedstawione wizualizacje i grafiki mają charakter wyłącznie poglądowy i stanowią wyłącznie materiał pomocniczy, ułatwiający zorientowanie się w ogólnym wyglądzie oferowanej nieruchomości.

Niniejsze ogłoszenie wraz z jego elementami jest własnością Północ Nieruchomości Sp z o.o. lub podmiotu współpracującego. Wszelkie prawa zastrzeżone. Kopiowanie, rozpowszechnianie oraz korzystanie z niniejszych materiałów w jakikolwiek inny sposób wykraczający poza dozwolony użytek określony przepisami ustawy z 4 lutego 1994 r. o prawie autorskim i prawach pokrewnych (Dz. U. 1994, nr 24 poz. 83 z późn. zm.) bez pisemnej zgody Północ Nieruchomości Sp z o.o. lub podmiotów współpracujących jest zabronione i może stanowić podstawę odpowiedzialności cywilnej oraz karnej.

Niniejsze materiały stanowią tajemnicę przedsiębiorstwa PÓŁNOC NIERUCHOMOŚCI Sp. z o.o. w rozumieniu ustawy z dnia 16 kwietnia 1993 r. o zwalczaniu nieuczciwej konkurencji (Dz. U. z 2003 r., Nr 153, poz. 1503 z późn. zm.).

Mapa

Zapytaj o tę ofertę

Lub zadzwoń