Kontakt
Nr oferty: 120320/3877/OMS

Mieszkanie 2 pokojowe - Tarninów

Tarninów zobacz na mapie

360 000 PLN

Szczegóły oferty

Cena:
360 000,00 zł
Powierzchnia:
39,30 m2
Cena za m2:
9 160,31 zł
Rok budowy:
1920
Liczba pięter:
4
Rynek:
Wtórny
Rodzaj budynku:
Kamienica
Liczba pokoi:
2
Typ kuchni:
Aneks
Id oferty:
120320/3877/OMS

Opis

Zapraszam serdecznie do zapoznania się z ofertą sprzedaży mieszkania wykończonego.
Mieszkanie usytuowane są w pięknej odnowionej kamienicy, położonej w dzielnicy Tarninowa ,a konkretnie w tzw. kwadracie.

Budynek gdzie znajduje się omawiane mieszkanie przeszedł kapitalny remont. .Teren jest ogrodzony, monitorowany i zabezpieczony domofonem.
Na każdym piętrze znajdują się  po 3 mieszkania.

Na posesji znajdują się garaże, które można dodatkowo zakupić.

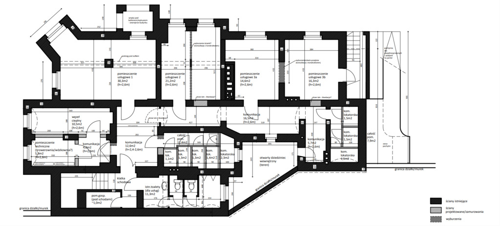
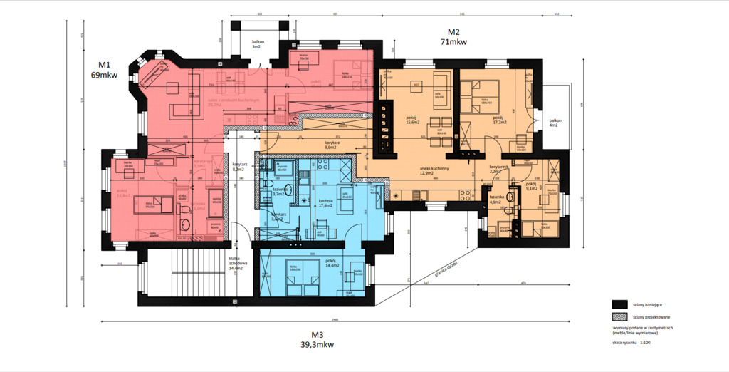
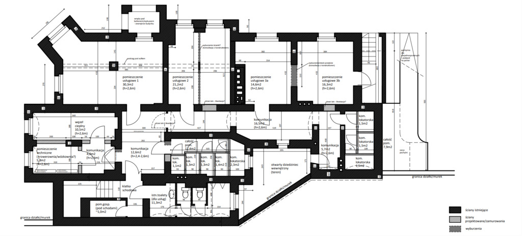
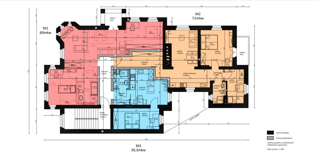
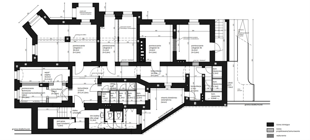
Prezentowane mieszkanie o powierzchni 39,3 m2  znajduje się na podwyższonym parterze. Lokal M3
Składa się z następujących pomieszczeń:

-salon z aneksem kuchennym o powierzchni 17,6 m2 
-sypialnia o powierzchni 14,4m2 
-łazienka wraz z WC o powierzchni 3,7 m2
-korytarz o powierzchni 3,6 m2 


Stan techniczny mieszkania:
-okna drewniane
-na ścianach gładzie
-na podłogach kafle+ panele
-drzwi wewnętrzne 
-wykończona łazienka
-oświetlenie
-domofon 

Mieszkanie jest przestronne i dobrze doświetlone.

Ogrzewanie i ciepła woda pochodzą z sieci miejskiej.

Cena mieszkania wynosi  360 000 zł

Ponadto w  budynku znajduje się 9 mieszkań oraz 3 lokale użytkowe.

PRZYZIEMIE:

Lokal użytkowy U1-30,3 m2,pokój 1-242 400 zł
Lokal użytkowy U2- 21,2 m2, pokój 1- 169 600 zł
Lokal użytkowy U3-35 m2,pokój 2- 280 000 zł

PARTER:

Lokal mieszkalny M1-zarezerwowany
Lokal mieszkalny M2-  71 m2 ,3 pokoje- 568 000 zł
Lokal mieszkalny M3-39,3 m2, 2 pokoje-360 000 zł - wykończony

PIĘTRO 1

Lokal mieszkalny M4-69 m2, 3 pokoje-552 000 zł
lokal mieszkalny M5-zarezerwowany
Lokal mieszkalny M6-39,3 m2,2 pokoje-314 400 zł

PIĘTRO 2

Lokal mieszkalny M7-65,2 m2,3 pokoje -521 600 zł
Lokal mieszkalny M8-53,4 m2,2 pokoje- 427 200 zł
Lokal mieszkalny M9-41 m2,2 pokoje- 328 000 zł

Garaże 1,2,3 w cenie 50000 zł z czego 1 i 2 -rezerwacja.

Budynek znajduje się wśród zabytkowych willi i zieleni gdzie odnajdziemy ciszę i spokój ,a jednocześnie blisko pełnej infrastruktury.
W pobliżu znajdują się liczne sklepy, punkty usługowe, szkoły, przedszkola, przystanki autobusowe.

Zapraszam serdecznie na prezentację.

Aneta Kopij
tel.661 909 045
e-mail: akopij@polnoc.pl
Biuro Nieruchomości Północ
ul. Środkowa 22

Niniejsze ogłoszenie nie stanowi oferty w rozumieniu Kodeksu Cywilnego, lecz ma charakter informacyjny.

Przedstawione wizualizacje i grafiki mają charakter wyłącznie poglądowy i stanowią wyłącznie materiał pomocniczy, ułatwiający zorientowanie się w ogólnym wyglądzie oferowanej nieruchomości.

Niniejsze ogłoszenie wraz z jego elementami jest własnością Północ Nieruchomości Sp z o.o. lub podmiotu współpracującego. Wszelkie prawa zastrzeżone. Kopiowanie, rozpowszechnianie oraz korzystanie z niniejszych materiałów w jakikolwiek inny sposób wykraczający poza dozwolony użytek określony przepisami ustawy z 4 lutego 1994 r. o prawie autorskim i prawach pokrewnych (Dz. U. 1994, nr 24 poz. 83 z późn. zm.) bez pisemnej zgody Północ Nieruchomości Sp z o.o. lub podmiotów współpracujących jest zabronione i może stanowić podstawę odpowiedzialności cywilnej oraz karnej.

Niniejsze materiały stanowią tajemnicę przedsiębiorstwa PÓŁNOC NIERUCHOMOŚCI Sp. z o.o. w rozumieniu ustawy z dnia 16 kwietnia 1993 r. o zwalczaniu nieuczciwej konkurencji (Dz. U. z 2003 r., Nr 153, poz. 1503 z późn. zm.).

Mapa

Zapytaj o tę ofertę

Lub zadzwoń