Kontakt
Nr oferty: 41002/3877/ODS

OSTATNI DOM w nowoczesnej zabudowie szeregowej

Łuków, Gospodarska zobacz na mapie

625 000 PLN

Szczegóły oferty

Cena:
625 000,00 zł
Powierzchnia:
174,00 m2
Cena za m2:
3 591,95 zł
Powierzchnia użytkowa:
125,30 m2
Powierzchnia działki:
163,00 m2
Rok budowy:
2023
Liczba pięter:
1
Liczba pokoi:
4
Stan budynku:
Stan deweloperski
Typ domu:
Szeregowy
Ciepła woda:
tak
Id oferty:
41002/3877/ODS

Opis

Przedstawiam ofertę 1 segmentu w nowoczesnej zabudowie szeregowej, w stanie deweloperskim w Łukowie, przy ul. Gospodarskiej.

Ostatnia okazja by podjąć decyzję o zakupie ostatniego segmentu!

Inwestycja położona w pobliżu centrum, w sąsiedztwie Alei Władysława Jagiełły, wzdłuż której biegnie ścieżka rowerowa.
Jest to doskonała okazja dla tych, którzy poszukują przestronnego i komfortowego miejsca do zamieszkania zlokalizowanego blisko centrum miasta, ale cenią sobie ciszę, spokój i otoczenie przyrody.

Każdy z segmentów posiada miejsce parkingowe przed domem, miejsce garażowe w bryle budynku oraz dodatkowe miejsce parkingowe przed wjazdem na osiedle.

Dla każdego segmentu wydzielono ogródek z małym tarasem. Ogródki oddzielone są od siebie ogrodzeniem panelowym, co daje miejsce na własną przestrzeń i prywatność.

Teraz opowiem Ci jak prezentują się poszczególne segmenty:

Pierwszy segment: 43A

- ma największą powierzchnię użytkową wynoszącą 143,15m2 łącznie z garażem - REZERWACJA
- powierzchnia całkowita to 210m2
- położony na działce o powierzchni: 289m2
- jako jedyny w jednym z pokoi posiada balkon.
- CENA: 725 000zł

Drugi segment: 43B - REZERWACJA

- powierzchnia użytkowa: 125,30m2
- powierzchnia całkowita: 174m2
- powierzchnia działki: 163m2
- CENA: 625 000zł

Trzeci segment: 43C - SPRZEDANY

- powierzchnia użytkowa: 125,30m2
- powierzchnia całkowita: 174m2
- powierzchnia działki: 164m2
- CENA: 625 000zł

Czwarty segment: 43D - SPRZEDANY

- powierzchnia użytkowa: 125,30m2
- powierzchnia całkowita: 174m2
- powierzchnia działki: 163m2
- CENA: 625 000zł

Piąty segment: 43E - SPRZEDANY

- powierzchnia użytkowa: 124,5m2
- powierzchnia całkowita: 178m2
- powierzchnia działki: 166m2
- CENA: 625 000zł

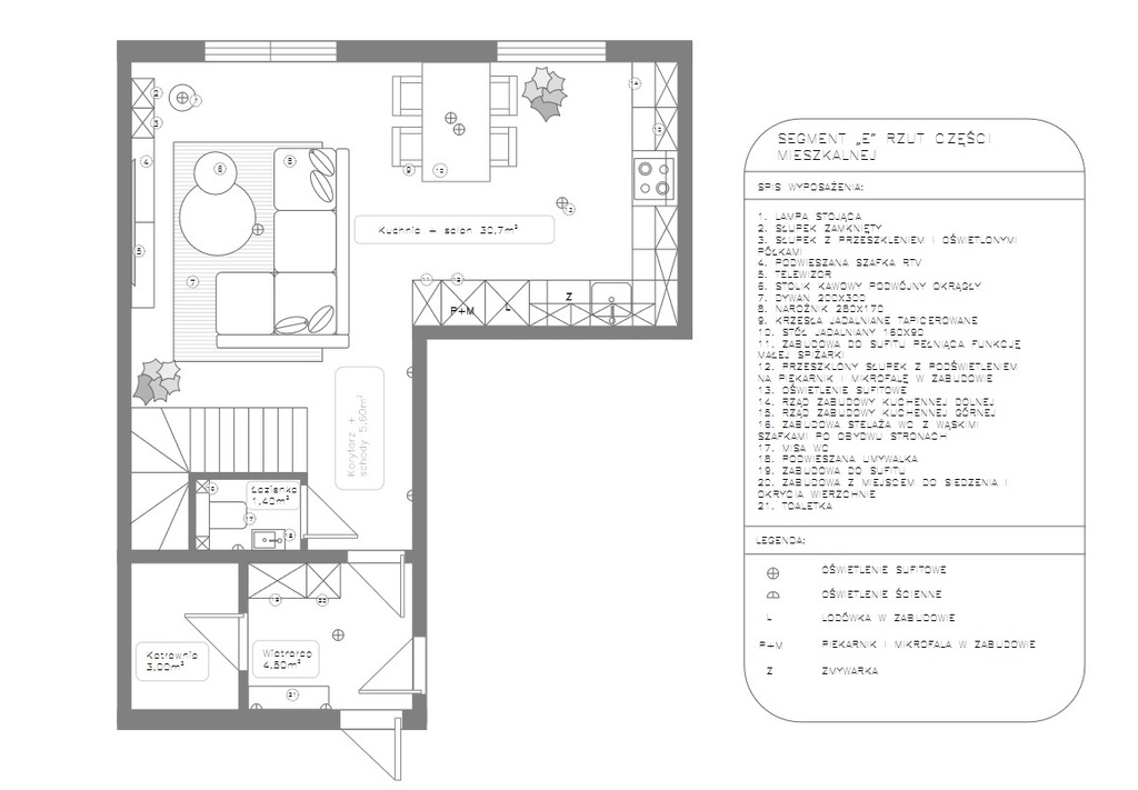
Wszystkie segmenty składają się z:
- wiatrołapu
- garażu
- kotłowni
- korytarza
- WC
- salonu z kuchnią
- na piętrze: 3 pokoi i dużej łazienki.
- pokój na parterze - dotyczy pierwszego, największego segmentu.

Domy w stanie deweloperskim, w których postawiono na jakość materiałów, praktyczne użytkowanie przestrzeni, ciekawe rozwiązania projektowe wnętrza.

Zamknięte osiedle daje poczucie bezpieczeństwa, a widok z tarasu na otwartą przestrzeń, zieleń i las, sprawia, że poczujemy się zrelaksowani i odpoczniemy od miejskiego zgiełku.

Do centrum miasta dojedziemy w ciągu 6 min., w którym znajdziemy m. in. centrum handlowe Vendo Park, kościół, szkoły, przedszkola, sklepy, szpital, restauracje.

Nieruchomość została zrealizowana w oparciu o doświadczenie inwestorów w zakresie budownictwa. Przedstawili konkurencyjne ceny swoich nieruchomości po to, by nowi właściciele zrealizowali swoje marzenie o własnym domu i byli zadowoleni z wyboru właśnie tej nieruchomości. Postawili na solidność i rzetelność, a co najważniejsze dają gwarancje i służą pomocą na etapie wykańczania wnętrza.

Stan domu wymaga wykończenia. Możliwość współpracy z projektantką, która wykona wizualizacje wnętrza.

* W środku wykonana jest instalacja elektryczna i hydrauliczna
* Kanalizacja – szambo biologiczne
* Światłowód w drodze
* Okna PCV
* Pokryty blachą
* Budulec budynku: gazobeton
* ogrzewanie gazowe, elektryczne
* podgrzewanie wody: gazowe, elektryczne


Domy w zabudowie szeregowej mają wykonaną elewację zewnętrzną z elementami dekoracyjnymi. Przed wejściem do segmentów zostaną wykonane drewniane pergole. Doda to atrakcyjności wizualnej budynkowi.
Wybierając ten dom, zyskasz możliwość aktywnego spędzania czasu na świeżym powietrzu, co poprawi jakość Twojego życia.
Nie czekaj, zadzwoń, umów się na prezentację, zarezerwuj dla siebie dom, kup i zaaranżuj według własnego stylu.

Nasze biuro pomaga na każdym etapie zakupu nieruchomości by szybko i bezpiecznie sfinalizować transakcję.
Nasz doradca kredytowy bezpłatnie pomoże sprawdzić zdolność kredytową i przedstawi najkorzystniejszą propozycję.

Pracujemy dla Ciebie by osiągnąć Twój cel i Twoje zadowolenie.


A jeżeli posiadasz podobną nieruchomość. Zadzwoń i umów się na spotkanie konsultacyjne.
Jestem do dyspozycji.

Edyta Bancerz
Doradca ds. Nieruchomości
tel. 885 851 158
ebancerz@polnoc.pl
Północ Nieruchomości
ul. Warszawska 15 Biała Podlaska



Niniejsze ogłoszenie nie stanowi oferty w rozumieniu Kodeksu Cywilnego, lecz ma charakter informacyjny.

Przedstawione wizualizacje i grafiki mają charakter wyłącznie poglądowy i stanowią wyłącznie materiał pomocniczy, ułatwiający zorientowanie się w ogólnym wyglądzie oferowanej nieruchomości.

Niniejsze ogłoszenie wraz z jego elementami jest własnością Północ Nieruchomości Sp z o.o. lub podmiotu współpracującego. Wszelkie prawa zastrzeżone. Kopiowanie, rozpowszechnianie oraz korzystanie z niniejszych materiałów w jakikolwiek inny sposób wykraczający poza dozwolony użytek określony przepisami ustawy z 4 lutego 1994 r. o prawie autorskim i prawach pokrewnych (Dz. U. 1994, nr 24 poz. 83 z późn. zm.) bez pisemnej zgody Północ Nieruchomości Sp z o.o. lub podmiotów współpracujących jest zabronione i może stanowić podstawę odpowiedzialności cywilnej oraz karnej.

Niniejsze materiały stanowią tajemnicę przedsiębiorstwa PÓŁNOC NIERUCHOMOŚCI Sp. z o.o. w rozumieniu ustawy z dnia 16 kwietnia 1993 r. o zwalczaniu nieuczciwej konkurencji (Dz. U. z 2003 r., Nr 153, poz. 1503 z późn. zm.).

Mapa

Zapytaj o tę ofertę

Lub zadzwoń