Opis
Mam dla Ciebie nieruchomość o dużym potencjale w miejscowości Czuchleby, gm. Łosice, powiat łosicki, woj. mazowieckie - zaledwie kilka minut od centrum Łosic.
Nieruchomość obejmuje dwie działki:
1. Działka nr 262 – 4 000m²
• Przeznaczenie: MN – zabudowa mieszkaniowa jednorodzinna
• Zabudowana budynkiem mieszkalnym oraz budynkami gospodarczymi
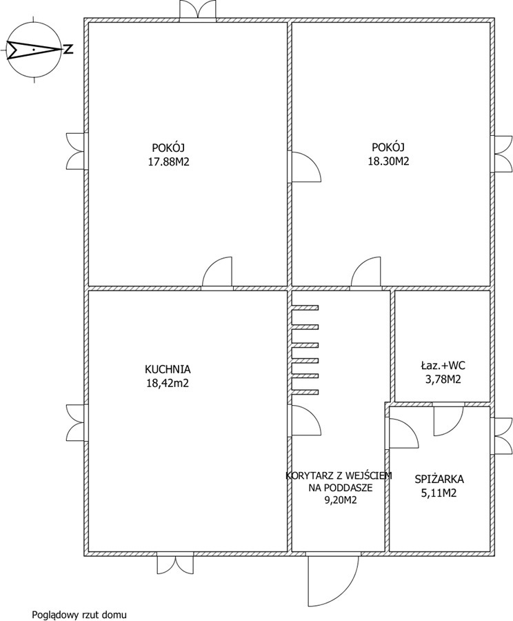
• Dom o powierzchni użytkowej 80m², składający się z:
– 2 pokoi
– kuchni
– łazienki
– korytarza
– spiżarki
– poddasza nieużytkowego, na którym urządzono mały pokój z wyjściem na balkon
Pomieszczenia w domu mają charakter przechodni. Budynek jest użytkowany sezonowo, ostatni raz zamieszkały w grudniu 2024 roku. Obecnie nadaje się do remontu, ale z możliwością zamieszkania po odświeżeniu.
Stan techniczny i media:
• Budynek wybudowany z cegły, nieocieplony (tylko: cegła-kanał-cegła)
• Ogrzewanie: piec na węgiel i drewno
• Podgrzewanie wody: bojler + terma elektryczna (lato)
• Dach: deskowany, pokryty blachą
• Okna: PCV
• Podłogi: na legarach (pokoje i kuchnia)
• Media: wodociąg, prąd (w tym siła), światłowód, studnia, szambo
Zabudowania gospodarcze na działce nr 262:
– stodoła
– garaż
– spichlerz
– kurnik
– letnia kuchnia
2. Działka nr 263 – 12 000m²
• Przeznaczenie: RP – tereny rolne
• Na działce znajduje się dodatkowy budynek gospodarczy
Łączna powierzchnia nieruchomości: 16 000 m²
Nieruchomość graniczy z otwartą przestrzenią i terenami zielonymi – idealna dla osób poszukujących spokoju, prywatności i potencjału do rozwoju. W pobliżu rzeka Toczna.
Dlaczego warto?
* Aż 1,6 ha gruntu – w tym teren budowlany i rolny
* Możliwość zamieszkania lub przekształcenia na gospodarstwo, agroturystykę lub dom letniskowy
* Dostęp do mediów – w tym światłowód i siła
* Tradycyjna zabudowa wiejska z charakterem
* Cicha okolica, a jednocześnie świetny dojazd do Łosic trasą nr 19
Skontaktuj się, aby poznać więcej szczegółów i umówić prezentację!
Nieruchomość warta uwagi – nie czekaj!
Bezpłatnie pomagamy w formalnościach związanych z uzyskaniem kredytu na zakup nieruchomości. Nasz doradca kredytowy bezpłatnie sprawdzi Twoją zdolność kredytową i przedstawi najlepsze oferty z ponad 10 banków.
Posiadasz podobną nieruchomość? Skorzystaj z bezpłatnej konsultacji – odpowiemy na pytania dotyczące ceny, procesu sprzedaży oraz możliwości poprawy atrakcyjności oferty.
Oferujemy również:
• Pośrednictwo w kupnie, sprzedaży oraz najmie nieruchomości
• Pomoc w sprzedaży nieruchomości o skomplikowanej sytuacji prawnej
• Rzetelne oceny wartości nieruchomości
• Uzyskanie świadectwa energetycznego
Doradca ds. nieruchomości
tel. 885 851 158
e-mail: ebancerz@polnoc.pl
Północ Nieruchomości oddział Biała Podlaska
Niniejsze ogłoszenie nie stanowi oferty w rozumieniu Kodeksu Cywilnego, lecz ma charakter informacyjny.
Przedstawione wizualizacje i grafiki mają charakter wyłącznie poglądowy i stanowią wyłącznie materiał pomocniczy, ułatwiający zorientowanie się w ogólnym wyglądzie oferowanej nieruchomości.
Niniejsze ogłoszenie wraz z jego elementami jest własnością Północ Nieruchomości Sp z o.o. lub podmiotu współpracującego. Wszelkie prawa zastrzeżone. Kopiowanie, rozpowszechnianie oraz korzystanie z niniejszych materiałów w jakikolwiek inny sposób wykraczający poza dozwolony użytek określony przepisami ustawy z 4 lutego 1994 r. o prawie autorskim i prawach pokrewnych (Dz. U. 1994, nr 24 poz. 83 z późn. zm.) bez pisemnej zgody Północ Nieruchomości Sp z o.o. lub podmiotów współpracujących jest zabronione i może stanowić podstawę odpowiedzialności cywilnej oraz karnej.
Niniejsze materiały stanowią tajemnicę przedsiębiorstwa PÓŁNOC NIERUCHOMOŚCI Sp. z o.o. w rozumieniu ustawy z dnia 16 kwietnia 1993 r. o zwalczaniu nieuczciwej konkurencji (Dz. U. z 2003 r., Nr 153, poz. 1503 z późn. zm.).