Kontakt
Nr oferty: 42715/3877/ODS

Dom Niegowonice

Niegowonice, ul. Zagórczańska zobacz na mapie

765 000 PLN

Szczegóły oferty

Cena:
765 000,00 zł
Powierzchnia:
179,00 m2
Cena za m2:
437,39 zł
Powierzchnia użytkowa:
163,90 m2
Powierzchnia działki:
812,00 m2
Rok budowy:
2014
Liczba pięter:
1
Liczba pokoi:
5
Stan budynku:
Bardzo dobry
Typ domu:
Wolnostojący
Ciepła woda:
tak
Id oferty:
42715/3877/ODS

Opis


Domu – Niegowonice, ul. Zagórczańska
REZERWACJA
Lokalizacja:
Przestronny dom wolnostojący o powierzchni użytkowej około 164 m², zlokalizowany w cichej i spokojnej miejscowości Niegowonice na ogrodzonej działce 812 m² przy ulicy Zagórczańskiej. Idealne miejsce dla osób szukających spokoju z dala od miejskiego zgiełku, otoczone pięknymi terenami zielonymi z jednoczesną dobrą komunikacją do innych miast regionu.

Opis nieruchomości:
Dom składa się z dwóch kondygnacji i jest w doskonałym stanie technicznym oraz wizualnym, nie wymagający dodatkowych nakładów finansowych. Oferuje komfortowe i przestronne wnętrza, częściowo umeblowane, z wbudowanym garażem.

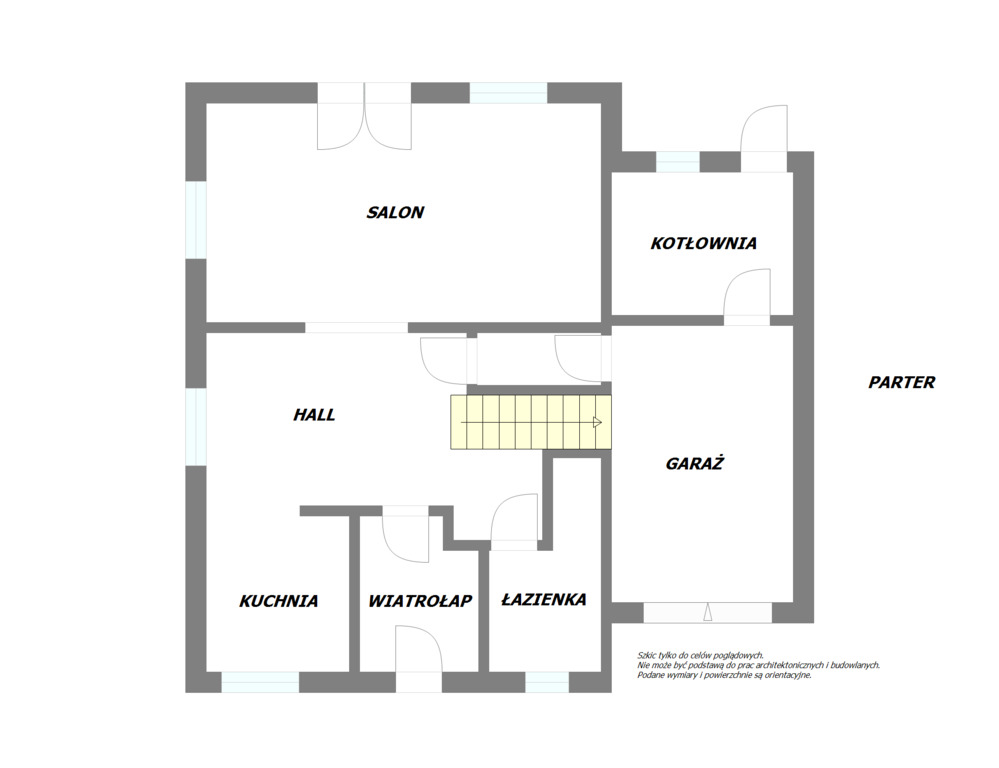
Parter zawiera:
 - Salon z wyjściem na taras, połączony z aneksem kuchennym
 - Łazienka
 - Wiatrołap
 - Kotłownia
 - Duży pokój na półpiętrze z balkonem

Piętro:
 - Trzy sypialnie
 - Pomieszczenie z możliwością zaadaptowania na pralnię
 - Duża łazienka

Specyfikacja techniczna:

- Rok budowy: 2014
 - Pustak ceramiczny, ocieplenie styropianem 10 cm
 - Dachówka ceramiczna, tynki gipsowe
 - Ogrzewanie podłogowe na parterze
 - Szambo, okna PCV, antywłamaniowe drzwi zewnętrzne
 - Kominek, instalacja elektryczna 400 V
 - Elektrycznie sterowana brama, wjazd z kostki brukowej

Doskonała lokalizacja:

 - 750 m do przystanku autobusowego
 - W promieniu 1 km: sklep, szkoła, kościół, restauracja
 - Bliskość Katowic (40 min) i innych głównych miast regionu, 35 min do lotniska Pyrzowice

Chcesz bliżej poznać się z tym domem zapraszam na spacer wirtualny. https://evryplace.com/embed/zkklvu

Bezpieczeństwo transakcji:

Ochrona transakcji polisą OC. Pełna obsługa od prezentacji po przekazanie kluczy. Pomoc w formalnościach związanych z kredytem.

Kontakt:
Dariusz Mońka
Tel: 533 390 640
Licencja nr: 24152
PÓŁNOC Nieruchomości

Opis sporządzono na podstawie informacji od właściciela i może być uaktualniany.

Niniejsze ogłoszenie nie stanowi oferty w rozumieniu Kodeksu Cywilnego, lecz ma charakter informacyjny.

Przedstawione wizualizacje i grafiki mają charakter wyłącznie poglądowy i stanowią wyłącznie materiał pomocniczy, ułatwiający zorientowanie się w ogólnym wyglądzie oferowanej nieruchomości.

Niniejsze ogłoszenie wraz z jego elementami jest własnością Północ Nieruchomości Sp z o.o. lub podmiotu współpracującego. Wszelkie prawa zastrzeżone. Kopiowanie, rozpowszechnianie oraz korzystanie z niniejszych materiałów w jakikolwiek inny sposób wykraczający poza dozwolony użytek określony przepisami ustawy z 4 lutego 1994 r. o prawie autorskim i prawach pokrewnych (Dz. U. 1994, nr 24 poz. 83 z późn. zm.) bez pisemnej zgody Północ Nieruchomości Sp z o.o. lub podmiotów współpracujących jest zabronione i może stanowić podstawę odpowiedzialności cywilnej oraz karnej.

Niniejsze materiały stanowią tajemnicę przedsiębiorstwa PÓŁNOC NIERUCHOMOŚCI Sp. z o.o. w rozumieniu ustawy z dnia 16 kwietnia 1993 r. o zwalczaniu nieuczciwej konkurencji (Dz. U. z 2003 r., Nr 153, poz. 1503 z późn. zm.).

Mapa

Zapytaj o tę ofertę

Lub zadzwoń