Kontakt
Nr oferty: 42849/3877/ODS

Dom – Radwanice / 4 pokoje z ogródkiem

Radwanice, Spacerowa zobacz na mapie

785 000 PLN

Szczegóły oferty

Cena:
785 000,00 zł
Powierzchnia:
95,00 m2
Cena za m2:
8 263,16 zł
Powierzchnia użytkowa:
78,76 m2
Rok budowy:
2024
Liczba pięter:
1
Liczba pokoi:
4
Stan budynku:
Stan deweloperski
Typ domu:
Szeregowy
Ciepła woda:
tak
Id oferty:
42849/3877/ODS

Opis

CO SPRZEDAJEMY?
Piętrowy dom w zabudowie szeregowej o powierzchni 95 m2 z ogródkiem w podwrocławskich Radwanicach. 


BEZ PROWIZJI OD KLIENTA KUPUJĄCEGO!

GDZIE ZNAJDUJE SIĘ DOM?
Położony jest w Radwanicach na osiedlu domów szeregowych Spacerowa Residence w bliskiej odległości od ul. Wrocławskiej (DK 94), z którego dojazd do ścisłego centrum Wrocławia nie zajmuje więcej niż 25 minut. Dom jest częścią kameralnej inwestycji w cichej i spokojnej okolicy, otoczony nowoczesną architekturą. W bliskiej okolicy zjadują się tereny zielone - Park Radwanicki.

JAKI JEST STANDARD?
Dom sprzedawany jest w standardzie deweloperskim.
Do apartamentu przynależy ogródek o pow. 24 m2, do którego prowadzą drzwi z salonu.
Każdy apartmaent posiada jednostanowskowy garaż z bramą segmentową oraz podjazd przed budynkiem.
Dom znajduje się w zabudowie szeregowej wraz z pozostałymi 25 domami na ogrodzonym terenie zamkniętym.

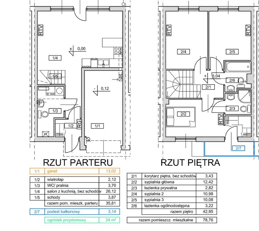
Z JAKICH POMIESZCZEŃ SIĘ SKŁADA?

PARTER
- salonu z aneksem kuchennym i wyjściem do ogródka (26,12 m2)
- wiatrołap (2,12 m2)
- WC/pralnia (3,70 m2)
- schody (3,87 m2)
- garaż (13,02 m2)
- podest balkonowy (3,14 m2) 

I PIĘTRO
- korytarz (3,43 m2)
- łazienka prywatna (2,82 m2)
- 3 pokoje (12,42 m2/10,98 m2/10,08 m2)
- łazienka (3,22 m2)

- ogródek (24 m2)


Zapraszam na prezentację.

BEZPŁATNIE pomagamy w uzyskaniu najkorzystniejszego kredytu na zakup nieruchomości.

Ogłoszeniodawcą jest pośrednik w obrocie nieruchomościami posługujący się numerem NIP 6912344985
działający w oparciu o umowę pośrednictwa z Deweloperem.

Adam Wnuk
PÓŁNOC Nieruchomości Wrocław Armii Krajowej
50-541 Wrocław, Aleja Armii Krajowej 6b lokal 5
tel: +48 603 562 281
e-mail: awnuk@polnoc.pl

Niniejsze ogłoszenie nie stanowi oferty w rozumieniu Kodeksu Cywilnego, lecz ma charakter informacyjny.

Przedstawione wizualizacje i grafiki mają charakter wyłącznie poglądowy i stanowią wyłącznie materiał pomocniczy, ułatwiający zorientowanie się w ogólnym wyglądzie oferowanej nieruchomości.

Niniejsze ogłoszenie wraz z jego elementami jest własnością Północ Nieruchomości Sp z o.o. lub podmiotu współpracującego. Wszelkie prawa zastrzeżone. Kopiowanie, rozpowszechnianie oraz korzystanie z niniejszych materiałów w jakikolwiek inny sposób wykraczający poza dozwolony użytek określony przepisami ustawy z 4 lutego 1994 r. o prawie autorskim i prawach pokrewnych (Dz. U. 1994, nr 24 poz. 83 z późn. zm.) bez pisemnej zgody Północ Nieruchomości Sp z o.o. lub podmiotów współpracujących jest zabronione i może stanowić podstawę odpowiedzialności cywilnej oraz karnej.

Niniejsze materiały stanowią tajemnicę przedsiębiorstwa PÓŁNOC NIERUCHOMOŚCI Sp. z o.o. w rozumieniu ustawy z dnia 16 kwietnia 1993 r. o zwalczaniu nieuczciwej konkurencji (Dz. U. z 2003 r., Nr 153, poz. 1503 z późn. zm.).

Mapa

Zapytaj o tę ofertę

Lub zadzwoń