Kontakt
Nr oferty: 123336/3877/OMS

Mieszkanie / kawalerka / 41,88 m2 / Inwestycja

Wrocław, Pabianicka zobacz na mapie

731 500 PLN

Szczegóły oferty

Cena:
731 499,83 zł
Powierzchnia:
41,88 m2
Cena za m2:
17 466,57 zł
Rok budowy:
2025
Liczba pięter:
10
Piętro:
2
Garaż/Miejsca parkingowe:
tak
Rynek:
Pierwotny
Rodzaj budynku:
Budynek apartamentowy
Liczba pokoi:
1
Typ kuchni:
Aneks
Id oferty:
123336/3877/OMS

Opis

CO SPRZEDAJEMY?
Funkcjonalne mieszkanie - kawalerkę zlokalizowaną na drugim piętrze w nowopowstającym dziesięciopiętrowym apartamantowym budyku.

BEZ PROWIZJI OD KLIENTA KUPUJĄCEGO!

GDZIE ZNAJDUJE SIĘ MIESZKANIE?
Położone jest w doskonale skomunikowanej części miasta przy ul. Pabianickiej, która zapewnia bardzo prosty doajzd do centrum Wocławia jak i poza miasto w kierunku Bielan Wrocławskich. Inwestycja powstaje bezpośrednio przy skrzyżowaniu ul. Pabianickiej ze Ślężną w sąseidztwie Aqua Parku od wschodu i Skytowera od zachodu. Dzięki tej lokalizacji w bliskiej okolicy znajdują się liczne sklepy, szkoły, przychodnia, apteka oraz różnorodne usługi, a także tereny zielone i miejsca rekreacji - Park gen. Andersa.

JAKI JEST STANDARD?
Mieszkanie jest sprzedawane w stanie deweloperskim. 
Do mieszkania przynależy balkon o powierzchni ok. 4,50 m2. 
Cała inwestycja jest nowoczesna, zrealizowana w wysokim standardzie wykończenia wraz z zastosowaniem rozwiązań smart home. 
W budynku będą łącznie 194 mieszkania na 10 piętrach o powierzchni od 30,53 do 163,73 m2.
Do dyspozycji mieszkańców będą miejsca w garażu podziemnym.

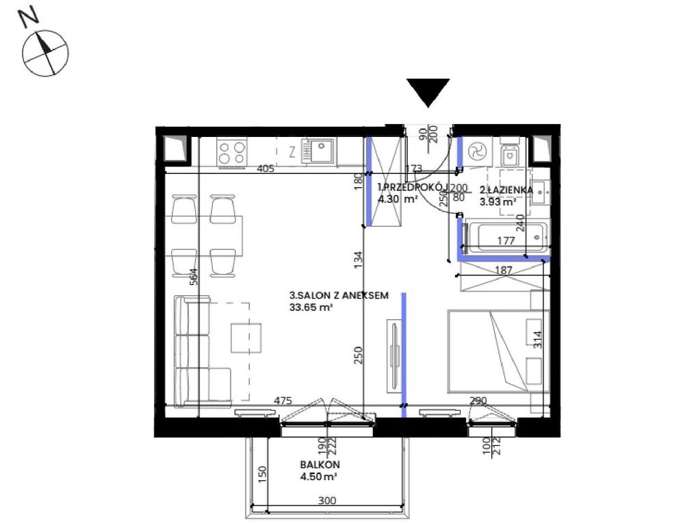
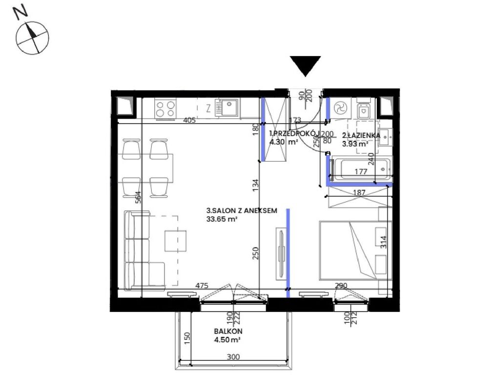
Z JAKICH POMIESZCZEŃ SIĘ SKŁADA?
- pokój dzienny z aneksem kuchennym i częścią do spania (33,65 m2)
- przedpokój (4,30 m2)
- łazienka z WC (3,93 m2)

- balkon o pow. ok. 4,50 m2


CO ZNAJDUJE SIĘ W NAJBLIŻSZYM OTOCZENIU?
- przystanki tramwajowe (2, 3, 4, 5, 6, 7,9, 10, 11, 12, 13, 14, 15, 16, 17, 20, 22, 23, 78) oraz autobusowe (241, 259) 
- Rynek Wrocławia (3500 m)
- Bielany Wrocławskie (7000 m)
- Sky Tower (700 m)
- Dworzec Wrocław Główny (1500 m)
- Kaufland przy Ślęźnej (500 m)

Oddanie inwestycji do użytku planowane jest na IV kw. 2025 r. 

Zapraszam na prezentację.


BEZPŁATNIE pomagamy w uzyskaniu najkorzystniejszego kredytu na zakup nieruchomości.


Adam Wnuk
PÓŁNOC Nieruchomości Wrocław Armii Krajowej
50-541 Wrocław, Aleja Armii Krajowej 6b lokal 5
tel: +48 603 562 281
e-mail: awnuk@polnoc.pl

Niniejsze ogłoszenie nie stanowi oferty w rozumieniu Kodeksu Cywilnego, lecz ma charakter informacyjny.

Przedstawione wizualizacje i grafiki mają charakter wyłącznie poglądowy i stanowią wyłącznie materiał pomocniczy, ułatwiający zorientowanie się w ogólnym wyglądzie oferowanej nieruchomości.

Niniejsze ogłoszenie wraz z jego elementami jest własnością Północ Nieruchomości Sp z o.o. lub podmiotu współpracującego. Wszelkie prawa zastrzeżone. Kopiowanie, rozpowszechnianie oraz korzystanie z niniejszych materiałów w jakikolwiek inny sposób wykraczający poza dozwolony użytek określony przepisami ustawy z 4 lutego 1994 r. o prawie autorskim i prawach pokrewnych (Dz. U. 1994, nr 24 poz. 83 z późn. zm.) bez pisemnej zgody Północ Nieruchomości Sp z o.o. lub podmiotów współpracujących jest zabronione i może stanowić podstawę odpowiedzialności cywilnej oraz karnej.

Niniejsze materiały stanowią tajemnicę przedsiębiorstwa PÓŁNOC NIERUCHOMOŚCI Sp. z o.o. w rozumieniu ustawy z dnia 16 kwietnia 1993 r. o zwalczaniu nieuczciwej konkurencji (Dz. U. z 2003 r., Nr 153, poz. 1503 z późn. zm.).

Mapa

Zapytaj o tę ofertę

Lub zadzwoń