Kontakt
Nr oferty: 44797/3877/ODS

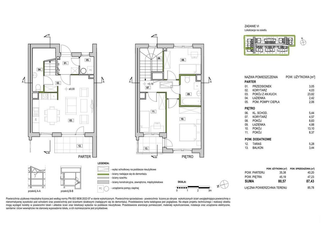
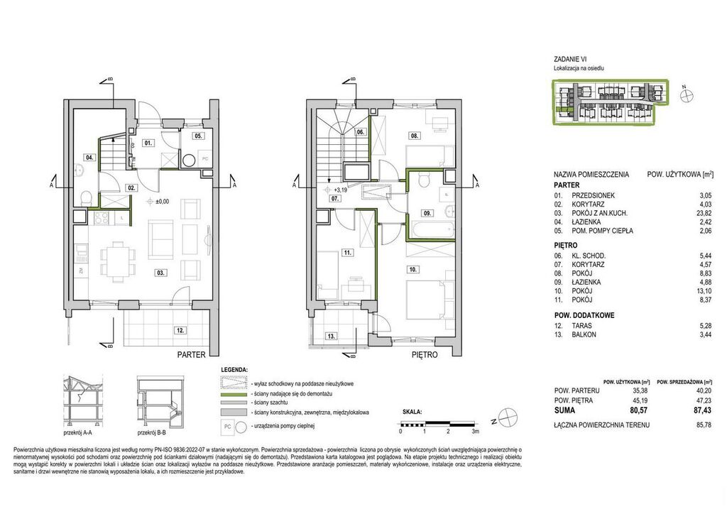
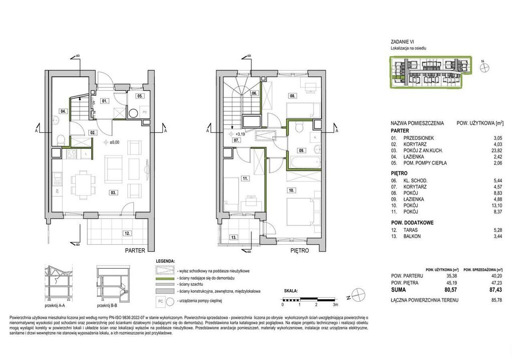
Dom 92.03m2 w zabudowie szeregowej / ogród 132,64m

Słomin zobacz na mapie

960 479 PLN

Szczegóły oferty

Cena:
960 478,50 zł
Powierzchnia:
92,03 m2
Cena za m2:
10 436,58 zł
Powierzchnia działki:
132,64 m2
Rok budowy:
2027
Liczba pokoi:
4
Typ domu:
Szeregowy
Id oferty:
44797/3877/ODS

Opis

Nowoczesne, starannie zaprojektowane osiedle z domami w zabudowie szeregowej
Domy zaprojektowane z myślą o zróżnicowanych potrzebach rodziny tak, aby zapewnić komfortowe i funkcjonalne wnętrza.
Osiedle charakteryzuje się starannie zaprojektowaną częścią wspólną, która sprzyja integracji mieszkańców i zapewnia bezpieczeństwo dla najmłodszych. Kameralne sąsiedztwo i przyjemne zielone otoczenie tworzą idealne warunki do życia.
Lokalizacja:
  • 25 minut od centrum Warszawy
Terminy oddania:
  • 2027r.

Nie czekaj, aż wszystkie zostaną sprzedane. Zacznij działać już teraz. Zadzwoń lub napisz. 
W ofercie domy w różnych metrażach, nawet o powierzchni 136 m2 z ogrodem o pow. 230 m2.

Niniejsze ogłoszenie nie stanowi oferty w rozumieniu Kodeksu Cywilnego, lecz ma charakter informacyjny.

Przedstawione wizualizacje i grafiki mają charakter wyłącznie poglądowy i stanowią wyłącznie materiał pomocniczy, ułatwiający zorientowanie się w ogólnym wyglądzie oferowanej nieruchomości.

Niniejsze ogłoszenie wraz z jego elementami jest własnością Północ Nieruchomości Sp z o.o. lub podmiotu współpracującego. Wszelkie prawa zastrzeżone. Kopiowanie, rozpowszechnianie oraz korzystanie z niniejszych materiałów w jakikolwiek inny sposób wykraczający poza dozwolony użytek określony przepisami ustawy z 4 lutego 1994 r. o prawie autorskim i prawach pokrewnych (Dz. U. 1994, nr 24 poz. 83 z późn. zm.) bez pisemnej zgody Północ Nieruchomości Sp z o.o. lub podmiotów współpracujących jest zabronione i może stanowić podstawę odpowiedzialności cywilnej oraz karnej.

Niniejsze materiały stanowią tajemnicę przedsiębiorstwa PÓŁNOC NIERUCHOMOŚCI Sp. z o.o. w rozumieniu ustawy z dnia 16 kwietnia 1993 r. o zwalczaniu nieuczciwej konkurencji (Dz. U. z 2003 r., Nr 153, poz. 1503 z późn. zm.).

Rafał Suchenek
Prowadzący ofertę

Rafał Suchenek

Mobilny doradca ds. nieruchomości - Warszawa

507 728 398 rsuchenek@polnoc.pl
Mapa

Zapytaj o tę ofertę

Lub zadzwoń